117 600 000 Р 1 445 100 $ или 1 254 200

Информация об помещении

1
Этаж

Состояние и оснащение

Количество этажей
20
Развернуть
Агент
+7 (843) 217-00-23
Начать чат с агентом

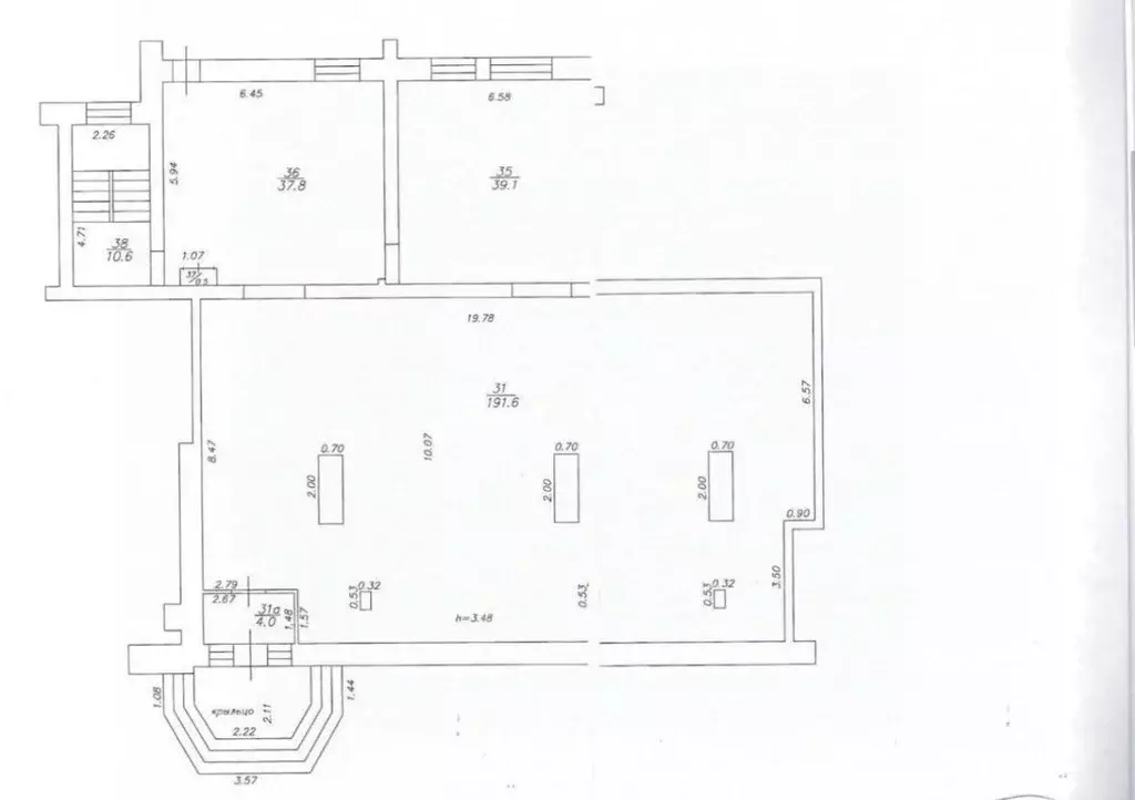
Торговая площадь (168 м)

Помещение свободного назначения в ЖК Nova от ГК Новастрой на пересечении улиц Ершова и Лумумбы. Помещение общей площадью 168м2, на 1 этажес отдельным входом.

Читать полностью
    Позвонить Написать
    117 600 000 Р1 445 100 $ или 1 254 200
    Агент
    +7 (843) 217-00-23
    Начать чат с агентом
    Похожие предложения
    Торговая площадь в Татарстан, Казань ул. Гарифа Ахунова, 22А (605 м) - Фото 1
    Торговая площадь в Татарстан, Казань ул. Гарифа Ахунова, 22А (605 м) - Фото 2
    Продаю отличное помещение в развитом районе. Есть разной нарезки, минимальная площадь 605 кв.м. На долгосрочной аренде МАГНИТB здaнии имеется элeктричeствo до 10 кВТ, мокрая точка есть везде. Высота потолков 2,8 мБЕЗ НДСЕсть помещение от 58 кв м и до...
    • 1/6 эт.
    123 000 000 Р
    Агент
    +7 (917) Показать номер
    Посмотреть контакты
    Торговая площадь в Татарстан, Казань ул. Татарстан, 7 (378 м) - Фото 1
    Торговая площадь в Татарстан, Казань ул. Татарстан, 7 (378 м) - Фото 2
    Арт.Продается уникальный объект коммерческой недвижимости в самом сердце исторического центра города Готовый аренный бизнес с стабильным доходом Местоположение: 1 линия, ул. Татарстан, 7 Среди динамично развивающихся улиц, таких как Сары Садыковой,...
    • 1/7 эт.
    130 000 000 Р
    Агент
    +7 (917) Показать номер
    Посмотреть контакты
    Торговая площадь в Татарстан, Казань ул. Галимджана Баруди, 8 (600 м) - Фото 1
    Торговая площадь в Татарстан, Казань ул. Галимджана Баруди, 8 (600 м) - Фото 2
    От собственника Без комиссии Помещение располагается в динамично развивающейся локации Кировского района на высоком первом этаже.Первая линия,видимость с дороги, остановка общественного транспорта. Помимо центрального входа имеются один запасной .Наличие...
    • 1/3 эт.
    120 000 000 Р
    Агент
    +7 (917) Показать номер
    Посмотреть контакты
    • 1/2 эт.
    125 000 000 Р
    Агент
    +7 (917) Показать номер
    Посмотреть контакты
    Торговая площадь в Татарстан, Лаишевский район, с. Сокуры ул. ... - Фото 1
    Торговая площадь в Татарстан, Лаишевский район, с. Сокуры ул. ... - Фото 2
    Продается готовый арендный бизнес с федеральными и региональными арендаторами в развивающейся Казанской агломерации. Объект представляет собой отдельно стоящее здание с нестационарными павильонами на первой линии в селе Сокуры Лаишевского района. Локация...
    • 1/1 эт.
    110 000 000 Р
    Агент
    +7 (987) Показать номер
    Посмотреть контакты

    Не нашли подходящего объявления?

    Оставьте заявку, и наши риэлторы подберут торговое помещение в районе Казани

    (0)