8 460 000 Р 106 100 $ или 90 420

Информация о квартире

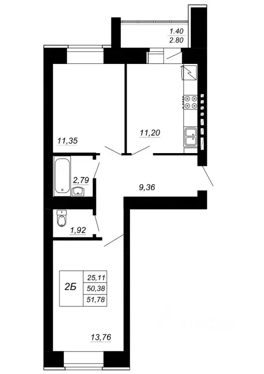
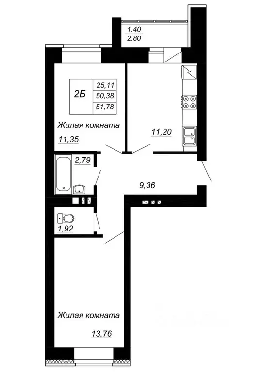
52 м2
Площадь
25 м2
Жилая
11 м2
Кухня
2
Комнаты
10
Этаж
10
Этажность

Дополнительная информация

Тип дома
кирпичный
Развернуть
Агент
+7 (992) 253-15-77
Начать чат с агентом

2-к кв. Татарстан, Зеленодольский район, Осиновское с/пос, с. Осиново ...

Готовые квартиры с ремонтом по выгодной цене. Участвуйте в акциях от застройщика Жилой комплекс на границе с городом, рядом с поселком Залесный, входящим в состав Кировского района Казани.Продаётся 2 комнатная квартира 245 — 52.5 кв. м. Расположена на 10 этаже. Дом построен из силикатного кирпича.ИНФРАСТРУКТУРАЖилой Комплекс удачно расположен на территории Осиновского сельского поселения Зеленодольского района РТ, рядом с поселком Залесный.- два детских сада- школа- в шаговой доступности остановки общественного транспорта (автобус 36, 62,110)- все необходимые магазины.КВАРТИРА С РЕМОНТОМ- чистовой ремонт- натяжные потолки- обои светлых тонов- на полу линолеум- деревянные межкомнатные двери- стальная входная дверьСанузел:- стены и пол санузлов выложены плиткой- оборудован ванной- раковина- смеситель с душем- унитазКухня:Установлены: раковина, краны и смесители.ПРЕИМУЩЕСТВА ЖК Радужный-2 — это жилой комплекс из кирпичных 10-ти этажных домов, объединенных благоустроенным двором. Он отделен от магистрали другими домами и находится в тихом спокойном месте.Мы спроектировали двор для людей. Здесь нет машин, а парковка находится на внешнем контуре. Сам двор оснащен местами отдыха для взрослых, а также детей разных возрастов.В жилом комплексе представлено несколько уникальных планировок. У нас есть и малогабаритные, и просторные квартиры — каждый найдет вариант для себя.Покупай и наслаждайся жизнью в абсолютно готовой квартире.Срок сдачи в эксплуатацию 3 квартал 2027 г.Не упустите свой шанс приобрести эту замечательную квартиру по выгодной цене Возможно, это именно то, что вы искали. Успейте принять участие в наших акциях от надежного застройщика.Варианты оплаты:- сотрудничаем с ведущими банками- наличный расчетПомощь при оформлении ипотеки. Полное юридическое сопровождение. БЕСПЛАТНО Застройщик ООО Спецзастройщик ТСИ

Читать полностью
    Позвонить Написать
    8 460 000 Р106 100 $ или 90 420
    Агент
    +7 (992) 253-15-77
    Начать чат с агентом
    Похожие предложения в Осиново
    2-к кв. Татарстан, Зеленодольский район, Осиновское с/пос, с. Осиново ... - Фото 1
    2-к кв. Татарстан, Зеленодольский район, Осиновское с/пос, с. Осиново ... - Фото 2
    2-комнатная квартира, общая площадь 52м², жилая 27м², кухня 9м²

    Готовые квартиры с ремонтом по выгодной цене. Участвуйте в акциях от застройщика Жилой комплекс на границе с городом, рядом с поселком Залесный, входящим в состав Кировского района Казани.Продаётся 2 комнатная квартира 163 — 52.37 кв. м. Расположена...
    • 52 м²
    • 2-ком
    • 10/10 эт.
    • кирпичный
    8 460 000 Р
    Агент
    +7 (992) Показать номер
    Посмотреть контакты
    2-к кв. Татарстан, Зеленодольский район, Осиновское с/пос, с. Осиново ... - Фото 1
    2-к кв. Татарстан, Зеленодольский район, Осиновское с/пос, с. Осиново ... - Фото 2
    2-комнатная квартира, общая площадь 51м², жилая 25м², кухня 11м²

    Готовые квартиры с ремонтом по выгодной цене. Участвуйте в акциях от застройщика Жилой комплекс на границе с городом, рядом с поселком Залесный, входящим в состав Кировского района Казани.Продаётся 2 комнатная квартира 12 — 51.78 кв. м. Расположена на...
    • 51 м²
    • 2-ком
    • 4/10 эт.
    • кирпичный
    8 510 000 Р
    Агент
    +7 (992) Показать номер
    Посмотреть контакты
    2-к кв. Татарстан, Зеленодольский район, Осиновское с/пос, с. Осиново ... - Фото 1
    2-к кв. Татарстан, Зеленодольский район, Осиновское с/пос, с. Осиново ... - Фото 2
    2-комнатная квартира, общая площадь 51м², жилая 25м², кухня 11м²

    Готовые квартиры с ремонтом по выгодной цене. Участвуйте в акциях от застройщика Жилой комплекс на границе с городом, рядом с поселком Залесный, входящим в состав Кировского района Казани.Продаётся 2 комнатная квартира 215 — 51.78 кв. м. Расположена...
    • 51 м²
    • 2-ком
    • 7/10 эт.
    • кирпичный
    8 510 000 Р
    Агент
    +7 (992) Показать номер
    Посмотреть контакты
    2-к кв. Татарстан, Зеленодольский район, Осиновское с/пос, с. Осиново ... - Фото 1
    2-к кв. Татарстан, Зеленодольский район, Осиновское с/пос, с. Осиново ... - Фото 2
    2-комнатная квартира, общая площадь 51м², жилая 25м², кухня 11м²

    Готовые квартиры с ремонтом по выгодной цене. Участвуйте в акциях от застройщика Жилой комплекс на границе с городом, рядом с поселком Залесный, входящим в состав Кировского района Казани.Продаётся 2 комнатная квартира 16 — 51.78 кв. м. Расположена на...
    • 51 м²
    • 2-ком
    • 5/10 эт.
    • кирпичный
    8 510 000 Р
    Агент
    +7 (992) Показать номер
    Посмотреть контакты
    2-к кв. Татарстан, Зеленодольский район, Осиновское с/пос, с. Осиново ... - Фото 1
    2-к кв. Татарстан, Зеленодольский район, Осиновское с/пос, с. Осиново ... - Фото 2
    2-комнатная квартира, общая площадь 53м², жилая 25м², кухня 11м²

    Готовые квартиры с ремонтом по выгодной цене. Участвуйте в акциях от застройщика Жилой комплекс на границе с городом, рядом с поселком Залесный, входящим в состав Кировского района Казани.Продаётся 2 комнатная квартира 190 — 53.2 кв. м. Расположена на...
    • 53 м²
    • 2-ком
    • 1/10 эт.
    • кирпичный
    8 510 000 Р
    Агент
    +7 (992) Показать номер
    Посмотреть контакты

    Не нашли подходящего объявления?

    Оставьте заявку, и наши риэлторы подберут квартиру в новостройке в районе Осиново

    (0)