6 327 750 Р 82 380 $ или 70 760

Информация о квартире

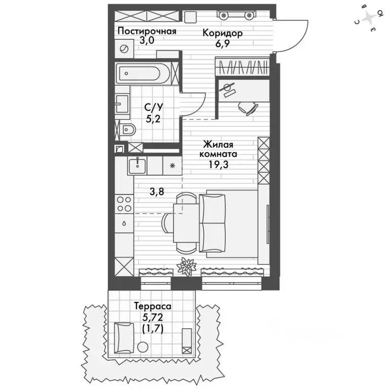
39 м2
Площадь
13 м2
Жилая
12 м2
Кухня
1
Комната
6
Этаж
7
Этажность
Развернуть
Агент
+7 (923) 894-91-29
Начать чат с агентом

1-к кв. Татарстан, Зеленодольский район, Октябрьское с/пос, пос. ...

Прямая продажа от застройщика Жилой Комплекс комфорт-класса. Продаётся 1-к квартира номер 48 общей площадью 39 кв.м. на 6-м этаже 7 этажного здания. Отделка Whitebox. Цена с учётом скидки. Особенности квартиры: - Угловая планировка - больше пространства для ваших идей. - Увеличенное количество окон - дополнительное освещение и свежий воздух. - Лоджия - уютное место для отдыха и тишины. Квартира с предчистовой отделкой (White box). Вам не придется заниматься черновыми и трудоёмкими работы, а чистовую отделку и дизайн - сделайте на свой вкус. Информация о комплексе: Форест - жилой комплекс комфорт-класса, созданный для тех, кто ищет гармонию с природой, не отказываясь от городского ритма. Расположенный в окружении леса и реки, он воплощает мечту о загородной жизни со всеми удобствами города. Здесь можно проживать самые тёплые моменты с близкими, дышать свежим хвойным воздухом, встречать утро на собственной террасе или проводить вечера с друзьями под открытым небом. Благоустроенная территория, прогулочные дорожки и зоны отдыха создают атмосферу уюта и гармонии. Поблизости - лес и Волга, куда можно выбраться на прогулку в любое время, не дожидаясь выходных. Благодаря вечнозелёным растениям и продуманному озеленению, дворы остаются зелёными круглый год. Транспортная доступность: - 4 мин. пушком до автобусной остановки - 5 мин. на машине до школы Внутренняя инфраструктура: Продуманное пространство для жизни, отдыха и развития. На территории комплекса работает собственный детский сад - современное и безопасное пространство, где дети всегда рядом с родителями. Во дворе установлены игровые комплексы для активных прогулок и развития малышей на свежем воздухе. Жителям доступны кафе и магазины, собственный SPA-центр, площадки для прогулок с питомцами, зоны для пикников и барбекю. Для любителей активного образа жизни предусмотрены велодорожки, воркаут-зоны и тропы для хайкинга, а в шаговой доступности находятся планетарий и глэмпинг. Просторный двор без машин и закрытая территория с системой контроля доступа обеспечивают высокий уровень безопасности и приватности. Здесь можно по-настоящему расслабиться и чувствовать себя дома - в окружении природы, комфорта и заботы о каждом дне.

Читать полностью
    Позвонить Написать
    6 327 750 Р82 380 $ или 70 760
    Агент
    +7 (923) 894-91-29
    Начать чат с агентом
    Похожие предложения в Октябрьском
    Студия Татарстан, Зеленодольский район, Октябрьское с/пос, пос. ... - Фото 1
    Студия Татарстан, Зеленодольский район, Октябрьское с/пос, пос. ... - Фото 2
    студия, общая площадь 39м², жилая 18м², кухня 5м²

    Прямая продажа от застройщика Жилой Комплекс комфорт-класса. Продаётся квартира-студия номер 69 общей площадью 39.8 кв.м. на 1-м этаже 6 этажного здания. Отделка Whitebox. Цена с учётом скидки. Особенности квартиры: - Линейная планировка - максимальная...
    • 39 м²
    • студия-ком
    • 1/7 эт.
    6 363 511 Р
    Агент
    +7 (923) Показать номер
    Посмотреть контакты
    1-к кв. Татарстан, Зеленодольский район, Октябрьское с/пос, пос. ... - Фото 1
    1-к кв. Татарстан, Зеленодольский район, Октябрьское с/пос, пос. ... - Фото 2
    1-комнатная квартира, общая площадь 37м², жилая 18м², кухня 12м²

    Прямая продажа от застройщика Жилой Комплекс комфорт-класса. Продаётся 1-к квартира номер 74 общей площадью 37.28 кв.м. на 3-м этаже 4 этажного здания. Отделка Whitebox. Цена с учётом скидки. Особенности квартиры: - Линейная планировка - максимальная...
    • 37 м²
    • 1-ком
    • 3/4 эт.
    6 397 462 Р
    Агент
    +7 (923) Показать номер
    Посмотреть контакты
    1-к кв. Татарстан, Зеленодольский район, Октябрьское с/пос, пос. ... - Фото 1
    1-к кв. Татарстан, Зеленодольский район, Октябрьское с/пос, пос. ... - Фото 2
    1-комнатная квартира, общая площадь 39м², жилая 16м², кухня 13м²

    Прямая продажа от застройщика Жилой Комплекс комфорт-класса. Продаётся 1-к квартира номер 13 общей площадью 40 кв.м. на 2-м этаже 7 этажного здания. Отделка Whitebox. Цена с учётом скидки. Особенности квартиры: - Мастер-зона с гардеробной. Просторное...
    • 39 м²
    • 1-ком
    • 2/7 эт.
    6 373 206 Р
    Агент
    +7 (923) Показать номер
    Посмотреть контакты
    1-к кв. Татарстан, Зеленодольский район, Октябрьское с/пос, пос. ... - Фото 1
    1-к кв. Татарстан, Зеленодольский район, Октябрьское с/пос, пос. ... - Фото 2
    1-комнатная квартира, общая площадь 39м², жилая 16м², кухня 12м²

    Прямая продажа от застройщика Жилой Комплекс комфорт-класса. Продаётся 1-к квартира номер 24 общей площадью 39.6 кв.м. на 3-м этаже 7 этажного здания. Отделка Whitebox. Цена с учётом скидки. Особенности квартиры: - Мастер-зона с гардеробной. Просторное...
    • 39 м²
    • 1-ком
    • 3/7 эт.
    6 344 322 Р
    Агент
    +7 (923) Показать номер
    Посмотреть контакты
    1-к кв. Татарстан, Зеленодольский район, Октябрьское с/пос, пос. ... - Фото 1
    1-к кв. Татарстан, Зеленодольский район, Октябрьское с/пос, пос. ... - Фото 2
    1-комнатная квартира, общая площадь 40м², жилая 16м², кухня 12м²

    Прямая продажа от застройщика Жилой Комплекс комфорт-класса. Продаётся 1-к квартира номер 68 общей площадью 39.2 кв.м. на 7-м этаже 7 этажного здания. Отделка Whitebox. Цена с учётом скидки. Особенности квартиры: - Мастер-зона с гардеробной. Просторное...
    • 40 м²
    • 1-ком
    • 7/7 эт.
    6 383 726 Р
    Агент
    +7 (923) Показать номер
    Посмотреть контакты

    Не нашли подходящего объявления?

    Оставьте заявку, и наши риэлторы подберут квартиру в новостройке в районе Октябрьского

    (0)