2 150 000 Р 27 900 $ или 23 610

Информация о квартире

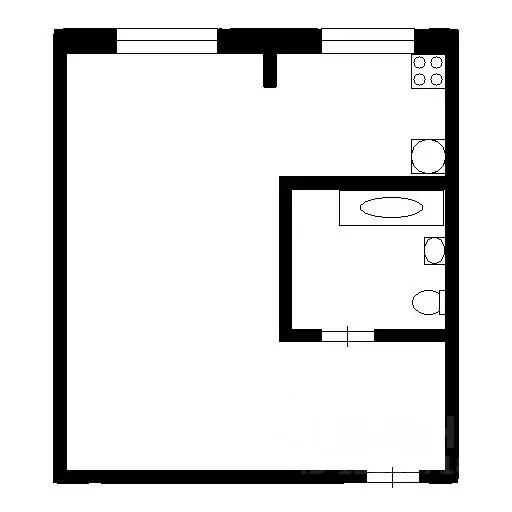
35 м2
Площадь
10 м2
Кухня
2
Комнаты
1
Этаж
9
Этажность

Дополнительная информация

Тип дома
кирпичный
Развернуть
Агент
+7 (917) 862-98-92
Начать чат с агентом

2-к кв. Татарстан, Зеленодольск Северная ул., 5 (35.2 м)

Продаю 2-х комнатную квартиру. В квартире 2 комнаты (одна из комнат (10 кв.м.) - используется как кухня, вторая комната (большая 18 кв.м.) -зал ). Жилое, приличное состояние. Натяжной потолок.Полноценный совмещенный санузел (ванна, унитаз, умещается стиральная машина). На кухне электрическая плита с духовкой. Теплая и светлая квартира. Дом кирпичный. Прошел капремонт внутренних коммуникаций. Высокий 1-й этаж. Взрослые собственники.Отдельная квартира в здании общежития (на 1-м этажеасположены отдельные квартиры)

Читать полностью

    Для того, чтобы купить двухкомнатную квартиру по адресу: Зеленодольск, ул. Северная, 5, позвоните по телефону +7 (917) 862-98-92. Торопитесь! Объявление №30093334709 о продаже двухкомнатной квартиры опубликовано 01 февраля 2026.

    Позвонить Написать
    2 150 000 Р27 900 $ или 23 610
    Агент
    +7 (917) 862-98-92
    Начать чат с агентом
    Похожие предложения
    1-к кв. Татарстан, Зеленодольск ул. Ивана Заикина, 14 (25.0 м) - Фото 1
    1-к кв. Татарстан, Зеленодольск ул. Ивана Заикина, 14 (25.0 м) - Фото 2
    1-комнатная квартира, общая площадь 25м², жилая 16м², кухня 4м²

    Продаем гостинку в центре города. Общая площадь 25 кв.м.Квартира уютная, вместительная. Капитальный ремонт дома сделан. Санузел в квартире. Есть помещение для душевой кабины. Один взрослый собственник. Продажа в связи с переездом в другой город. Арт....
    • 25 м²
    • 1-ком
    • 4/5 эт.
    • кирпичный
    2 200 000 Р
    Агент
    +7 (987) Показать номер
    Посмотреть контакты
    2-к кв. Татарстан, Зеленодольск Украинская ул., 21 (28.9 м) - Фото 1
    2-к кв. Татарстан, Зеленодольск Украинская ул., 21 (28.9 м) - Фото 2
    2-комнатная квартира, общая площадь 28м², жилая 20м², кухня 4м²

    Г.Зеленодольск,Мирный, ул.Украинская,д.21Уютная двухкомнатная квартира на первом этаже двухэтажного кирпичного дома.Квартира в хорошем состоянии, с натяжными потолками, окнами- стеклопакетами, новая метал.входная дверь.Окна выходят на южную сторону, в...
    • 28 м²
    • 2-ком
    • 1/2 эт.
    • кирпичный
    2 100 000 Р
    Агент
    +7 (951) Показать номер
    Посмотреть контакты
    2-к кв. Татарстан, Зеленодольский район, Нижние Вязовые муниципальное ... - Фото 1
    2-к кв. Татарстан, Зеленодольский район, Нижние Вязовые муниципальное ... - Фото 2
    2-комнатная квартира, общая площадь 46м², жилая 31м², кухня 5м²

    Возможен сбой на линии, объект актуальный, звоните или пишите сообщения.Федеральное Агентство недвижимости Полезные люди предлагает Вам приобрести 2 комнатную квартиру общей площадью 46,8 кв.м., с индивидуальным отоплением, установлен 2 контурный котел,...
    • 46 м²
    • 2-ком
    • 2/2 эт.
    • кирпичный
    2 150 000 Р
    Агент
    +7 (987) Показать номер
    Посмотреть контакты
    1-к кв. Татарстан, Пестречинский район, Шигалеевское с/пос, с. Старое ... - Фото 1
    1-к кв. Татарстан, Пестречинский район, Шигалеевское с/пос, с. Старое ... - Фото 2
    1-комнатная квартира, общая площадь 33м², жилая 18м², кухня 5м²

    Продается светлая квартира в пос. Старое Шигалеево (Пестречинский район). Свой двор. До Казани 20 мин.Описание:Продается уютная квартира в тихом и зеленом поселке Старое Шигалеево. Идеальный вариант для тех, кто хочет жить за городом в спокойной обстановке,...
    • 33 м²
    • 1-ком
    • 1/2 эт.
    2 150 000 Р
    Агент
    +7 (986) Показать номер
    Посмотреть контакты
    1-к кв. Татарстан, Нижнекамск просп. Строителей, 6Б (22.4 м) - Фото 1
    1-к кв. Татарстан, Нижнекамск просп. Строителей, 6Б (22.4 м) - Фото 2
    1-комнатная квартира, общая площадь 22м², жилая 9м², кухня 8м²

    Продаётся однокомнатная квартира вторичка на 2 этаже 5-этажного дома площадью 22.40 кв.м. С кухней площадью 8 кв.м., это идеальный экономичный вариант по доступной цене.В квартире сделан стандартный ремонт, поэтому можно сразу приступать к новой жизни....
    • 22 м²
    • 1-ком
    • 2/5 эт.
    • кирпичный
    2 100 000 Р
    Агент
    +7 (986) Показать номер
    Посмотреть контакты

    Не нашли подходящего объявления?

    Оставьте заявку, и наши риэлторы подберут квартиру в районе Зеленодольска

    (0)