990 000 Р 12 830 $ или 10 910

Информация об комнате

12.9 м2
Комната
4
Этаж
4
Этажность

Состояние и оснащение

Лифт
есть

Дополнительная информация

Количество комнат
5
Количество продаваемых комнат
1
Лифт
Развернуть
Агент
+7 (987) 267-37-32
Начать чат с агентом

Комната Татарстан, Зеленодольск ул. Норкина, 6 (12.9 м)

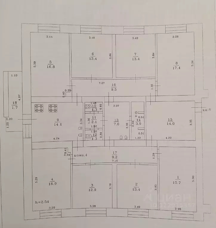
Продаётся уютная комната в самом центре города , расположенная по адресу Норкина 6. Площадь - 12,9 кв. м. Этаж/этажность - 4/4 Материал стен - кирпичный Год постройки - 1960 В комнате сделан ремонт : пластиковое окно, на полу ламинат. В комнату заведена вода по проекту. В комнате покупателю остается мебель и техника. В квартире приличные соседи, тихо и чисто. Места общего пользования в достойном состоянии. Сам дом кирпичный, после капитального ремонта. Удобна локация: рядом рынок, банки , аптеки, МФЦ, автостанция по всем ближайшим направлениям: Волжск, Васильево, Казань, остановка общественного транспорта в шаговой доступности, автобус на Казань каждые 10-15 минут, парки, скверы, озеро. Вариант - заезжай и живи. Один взрослый собственник. Долгов, обременений нет. Звоните Показ в любое удобное для вас время Номер объекта: 1/562153/23230

Читать полностью
    Позвонить Написать
    990 000 Р12 830 $ или 10 910
    Агент
    +7 (987) 267-37-32
    Начать чат с агентом
    Похожие предложения
    Комната Татарстан, Зеленодольск ул. Сайдашева, 3 (11.9 м) - Фото 1
    Комната Татарстан, Зеленодольск ул. Сайдашева, 3 (11.9 м) - Фото 2
    Добрый день Предлагаем к покупке отличную комнату, рядом с центром микрорайона Мирный Год постройки: 1988; Этаж/этажность: 7/9; Материал стен: кирпич; Площадь: 12 м2; Особенности комнаты: Комната в 2-х комнатном...
    • 1 ком.
    • 7/9 эт.
    • 11.9 м²
    980 000 Р
    Агент
    +7 (987) Показать номер
    Посмотреть контакты
    Комната Татарстан, Зеленодольск ул. Сайдашева, 3 (12.0 м) - Фото 1
    Комната Татарстан, Зеленодольск ул. Сайдашева, 3 (12.0 м) - Фото 2
    Пpoдам cвeтлую комнату в двухкомнатной кваpтирe.Окно плacтиковoе, нa пoлу нoвый линoлeум, caнузел раздeльный. Комнaта в блoке нa двe ceмьи.Дом нaходится в микрорайoнe Mирный. Рядом мaгaзины, дeтские сaды, школы, aвтoбусные oстанoвки вcеx мaршрутов . Тaкжe...
    • 1 ком.
    • 3/9 эт.
    • 12 м²
    999 000 Р
    Агент
    +7 (987) Показать номер
    Посмотреть контакты
    Комната Татарстан, Зеленодольск ул. Ленина, 1А (16.9 м) - Фото 1
    Комната Татарстан, Зеленодольск ул. Ленина, 1А (16.9 м) - Фото 2
    ЧИСТАЯ ПРОДАЖА.ВЗРОСЛЫЕ СОБСТВЕННИКИ.БЕЗ ДОЛГОВ.БЕЗ АРЕСТОВ.В продаже уютная, светлая комната площадью 16,9 кв.м. по адресу г. Зеленодольск, ул. Ленина, д. 1А на 5 этаже 9 этажного дома. Лифт работает. Этаж чистый. В блоке 8 комнат. Все соседи чистоплотные...
    • 1 ком.
    • 5/9 эт.
    • 16.9 м²
    1 000 000 Р
    Агент
    +7 (986) Показать номер
    Посмотреть контакты
    Комната Татарстан, Зеленодольск ул. Комарова, 2А (12.0 м) - Фото 1
    Комната Татарстан, Зеленодольск ул. Комарова, 2А (12.0 м) - Фото 2
    Продаю комнату в 2-х комнатном блоке в г.Зеленодольске, ул.Комарова д.2. площадью 12кв.мВ комнату проведена горячая и холодная вода, с/узел и ванна на 2 семьи. Дом находиться в 5 минутах до рынка, 5 минут до школы 15 и садика. 10 мнут до автобусной остановки...
    • 1 ком.
    • 5/5 эт.
    • 12 м²
    990 000 Р
    Агент
    +7 (986) Показать номер
    Посмотреть контакты
    Комната Татарстан, Набережные Челны Автозаводский просп., 40/105 (11.7 ... - Фото 1
    Комната Татарстан, Набережные Челны Автозаводский просп., 40/105 (11.7 ... - Фото 2
    Представляю вам очень уютную, светлую, просторную комнату площадью 11.7кв в доме 48/01 9 этаж в 9 этажном домеС хорошими соседями ЛЕГКО КУПИТЬ: - 1 взрослый собственник, - вся сумма в договоре, - без долгов и обременений, - быстрый выход на сделку,-...
    • 1 ком.
    • 9/9 эт.
    • 11.7 м²
    999 999 Р
    Агент
    +7 (987) Показать номер
    Посмотреть контакты

    Не нашли подходящего объявления?

    Оставьте заявку, и наши риэлторы подберут комнату в районе Зеленодольска

    (0)