13 700 000 Р 168 700 $ или 146 500

Информация о коттедже

176 м2
Площадь
1
Этажность
8 cоток
Участок

Дополнительная информация

Дом продаётся вместе с участком
есть
Развернуть
Агент
+7 (951) 061-75-73
Начать чат с агентом

Дом в Татарстан, Тукаевский район, Азьмушкинское с/пос, пос. Новый ул. ...

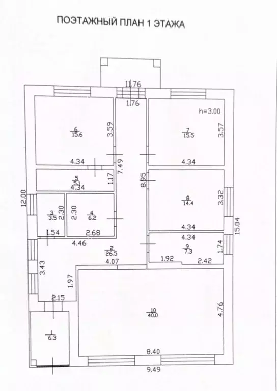
Продаётся уютный дом с баней в Тукаевском районе Республики Татарстан, в деревне Новый. Это идеальное место для тех, кто ценит спокойствие и природу. Дом расположен на участке площадью 9 соток, который уже разработан и благоустроен. Этот одноэтажный дом с дизайнерским ремонтом и площадью 176 квадратных метров имеет три комнат по 17кв.м., а кухня -гостинная занимает 45 кв.м. Очень светлые и просторные комнаты с пластиковыми окнами и отделкой под ключ создадут уютную атмосферу для вашей семьи. Баня с комнатой отдыха,гараж. На участке также есть газовое отопление, локальная канализация и электричество 380 вольт. Дом имеет удобный доступ по бетонной дороге. Не упустите возможность приобрести этот прекрасный дом в живописном месте, где вы сможете наслаждаться жизнью вдали от городской суеты. Звоните прямо сейчас, чтобы узнать больше информации и организовать просмотр этого замечательного объекта недвижимости.

Читать полностью

    Для того, чтобы купить 1-этажный коттедж по адресу: Новый, ул. Центральная, 144, позвоните по телефону +7 (951) 061-75-73. Торопитесь! Объявление №50016532301 о продаже одноэтажного коттеджа опубликовано 2 дня назад.

    Позвонить Написать
    13 700 000 Р168 700 $ или 146 500
    Агент
    +7 (951) 061-75-73
    Начать чат с агентом
    Похожие предложения
    Дом в Татарстан, Тукаевский район, Азьмушкинское с/пос, пос. Новый ул. ... - Фото 1
    Дом в Татарстан, Тукаевский район, Азьмушкинское с/пос, пос. Новый ул. ... - Фото 2
    1 этаж, общая площадь 180м², участок 24 сотки

    Арт.. Ваш идеальный дом для проживания загородом.Поселок Новый в 15 минутах езды от города, удобная транспортная доступность. Поселок городского типа со своей инфраструктурой.Дом 180 м2 на участке 24 сотки с тремя изолированными спальнями + гостевой дом...
    • 1 эт.
    • 180 м²
    • 24 сот.
    15 000 000 Р
    Агент
    +7 (917) Показать номер
    Посмотреть контакты
    Дом в Татарстан, Тукаевский район, Малошильнинское с/пос, Сосновый Бор ... - Фото 1
    Дом в Татарстан, Тукаевский район, Малошильнинское с/пос, Сосновый Бор ... - Фото 2
    2 этажа, общая площадь 155м², участок 15 соток

    Арт.. Продается уютный дом в поселке Сосновый БОР.- Комфортная атмосфера создающая ощущение уюта.- Отличная инфраструктура магазины и все необходимое в шаговой доступности.- Удобно для семей с детьмиядом останавливается школьный автобус.- Рядом спортивный...
    • 2 эт.
    • 155 м²
    • 15 сот.
    14 700 000 Р
    Агент
    +7 (987) Показать номер
    Посмотреть контакты
    Коттедж в Татарстан, Тукаевский район, д. Азьмушкино, Пятый элемент кп ... - Фото 1
    Коттедж в Татарстан, Тукаевский район, д. Азьмушкино, Пятый элемент кп ... - Фото 2
    1 этаж, общая площадь 145м², участок 10 соток

    Арт.. Продаю коттедж в 3-х минутах от города Просторный кирпичный дом для вашей семьи Мечтаете о доме, где хватит места для всех и где можно воплотить любые дизайнерские идеи? Этот кирпичный дом площадью 148,5 кв.м. идеальный холст для создания вашего...
    • 1 эт.
    • 145 м²
    • 10 сот.
    14 999 000 Р
    Агент
    +7 (987) Показать номер
    Посмотреть контакты
    Дом в Татарстан, Тукаевский район, с. Калмаш  (160 м) - Фото 1
    Дом в Татарстан, Тукаевский район, с. Калмаш  (160 м) - Фото 2
    1 этаж, общая площадь 160м², участок 10 соток

    Продаю шикарный новый дом с ЧИСТОВОЙ отделкой ( с ремонтом) в живописном месте (оооочень красиво) с баней и гаражем. В доме интересная планировка: - просторная кухня гостиная 30кв.м с выходом на террасу 12кв.м. - большая мастер- спальня 22 кв.м...
    • 1 эт.
    • 160 м²
    • 10 сот.
    14 600 000 Р
    Агент
    +7 (919) Показать номер
    Посмотреть контакты
    Дом в Татарстан, Тукаевский район, Новотроицкое с/пос, д. Суровка  ... - Фото 1
    Дом в Татарстан, Тукаевский район, Новотроицкое с/пос, д. Суровка  ... - Фото 2
    2 этажа, общая площадь 150м²

    Когда мечты о загородной жизни становятся реальностью Продаю благоустроенный 2х этажный коттедж в пос. Суровка по ул. Юности 150 м2. Это именно тот дом, о котором вы всегда мечтали - просторный и уютный, с площадью участка 15 соток. Расстояние от города...
    • 2 эт.
    • 150 м²
    13 400 000 Р
    Агент
    +7 (986) Показать номер
    Посмотреть контакты

    Не нашли подходящего объявления?

    Оставьте заявку, и наши риэлторы подберут купить дом в районе Нового

    (0)