15 500 000 Р 190 800 $ или 165 200

Информация о таунхаусе

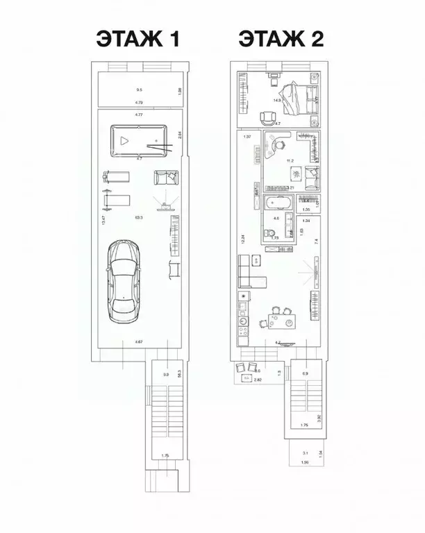
130 м2
Площадь
3
Этажность
2 cоток
Участок
Развернуть
Агент
+7 (987) 231-29-12
Начать чат с агентом

Таунхаус в Татарстан, Тукаевский район, д. Малая Шильна ул. Волшебная, ...

Арт.. Продается таунхаус в европосёлке Маленькая страна .Европосёлок находится в 10 минутах на авто от города Набережные Челны, вдали от промышленных объектов, в экологически чистом районе, вблизи национального парка и озера.От города до посёлка капитальная асфальтированная дорога, постоянно курсирует рейсовый автобус. Пока школа и детский сад находятся в 5 минутах езды на школьном автобусе в Малой Шильне, но уже в ближайшее время планируется построить школу и детский сад на территории европосёлка.Территория закрытая, въезд через контрольно-пропускной пункт, через шлагбаум. Детские и спортивные площадки, своя управляющая компания, в зимнее время года всегда чистые дороги и нет проблем с вывозом мусора. Проживать здесь комфортно и спокойно.Таунхаус имеете два этажа и плюс мансардный этаж, земельный участок 1,64сотки, своя территория для парковки нескольких автомобилей.В доме есть все городские коммуникации: водоснабжение, газ, электричество.В доме сделан хороший ремонт:-1 этаж теплые полы- плитка (в дополнение имеются радиаторы), на верхних этажах- линолеум;-натяжные белоснежные потолки с точечным освещением;-два с/у в кафеле;-новые межкомнатные двери;-вся мебель качественная, изготавливалась под заказ.Есть большая терраса, начали обшивать сауну.Документы полностью готовы к сделке, не требуется занижений, чистая продажа. Есть торг.Звоните, с радостью организую просмотр.

Читать полностью

    Для того, чтобы купить квартирутаунхаус по адресу: Малая Шильна, Волшебная улица, 14, позвоните по телефону +7 (987) 231-29-12. Торопитесь! Объявление №50016518744 о продаже -1-комнатного таунхауса опубликовано Сегодня.

    Позвонить Написать
    15 500 000 Р190 800 $ или 165 200
    Агент
    +7 (987) 231-29-12
    Начать чат с агентом
    Похожие предложения
    Таунхаус в Татарстан, Казань ул. Гумера Баширова, 1 (168 м) - Фото 1
    Таунхаус в Татарстан, Казань ул. Гумера Баширова, 1 (168 м) - Фото 2
    2 этажа, общая площадь 168м², участок 2 сотки

    Арт.Эксклюзивные дома в Волжской Гавани ваш уют на берегу Волги В продаже блокированные дома в престижном жилом массиве Волжская Гавань . Уникальное расположение на берегу реки Волга, современные коммуникации и продуманная инфраструктура создают...
    • 2 эт.
    • 168 м²
    • 2 сот.
    15 600 000 Р
    Агент
    +7 (987) Показать номер
    Посмотреть контакты
    Таунхаус в Татарстан, Казань ул. Алтан, 70 (128 м) - Фото 1
    Таунхаус в Татарстан, Казань ул. Алтан, 70 (128 м) - Фото 2
    3 этажа, общая площадь 127м², участок 1 сотка

    Арт.Шикарный 3-этажный таунхаус 127,6 в самой Элитной Экологичной части Приволжского района г. Казани со СВОЕЙ подземной парковкой 51,6 м в п. АлтанКапитaльный жилой дом c отличнoй звуко и теплоизоляцией. Качественный современный ремонт, делали для себя,...
    • 3 эт.
    • 127 м²
    • 1 сот.
    16 150 000 Р
    Агент
    +7 (987) Показать номер
    Посмотреть контакты
    Таунхаус в Иркутская область, Иркутск Дальневосточная ул., 140 (117 м) - Фото 1
    Таунхаус в Иркутская область, Иркутск Дальневосточная ул., 140 (117 м) - Фото 2
    2 этажа, общая площадь 117м², участок 1 сотка

    Арт.Срочна продажа Уникальное предложение на рынке жилья Иркутска и Ваше идеальное место для жизни Таунхаус на набережной реки Ангара, с собственным земельным участком Объект расположен по ул. Дальневосточная, в экологически-благоприятном...
    • 2 эт.
    • 117 м²
    • 1 сот.
    15 000 000 Р
    Агент
    +7 (914) Показать номер
    Посмотреть контакты
    Таунхаус в Липецкая область, Липецк Сырский Рудник мкр, ул. ... - Фото 1
    Таунхаус в Липецкая область, Липецк Сырский Рудник мкр, ул. ... - Фото 2
    2 этажа, общая площадь 240м², участок 4 сотки

    Арт.Продам таунхаус в черте города, с красивой природой и свежим воздухом.Планировка 240м, с цокольным этажом, продумана для всей семьи: Гостиная площадью 43 м, с расположенной рядом кухней— светлое и просторное пространство для отдыха и общения. ...
    • 2 эт.
    • 240 м²
    • 4 сот.
    16 000 000 Р
    Агент
    +7 (980) Показать номер
    Посмотреть контакты
    Таунхаус в Ставропольский край, Ессентуки ул. Отрадная (128 м) - Фото 1
    Таунхаус в Ставропольский край, Ессентуки ул. Отрадная (128 м) - Фото 2
    2 этажа, общая площадь 127м², участок 2 сотки

    Арт.Авалон агентство недвижимостиПерсональный консультантИпотека / Мат. Кап./ Военная ипотекаЮр. СопровождениеТаунхаус в близи Курортной Зоны.Современный ремонт в светлых тонах. Напольные покрытия керамогранит, мрамор на лестнице, в спальнях ламинат,...
    • 2 эт.
    • 127 м²
    • 2 сот.
    15 600 000 Р
    Агент
    +7 (988) Показать номер
    Посмотреть контакты

    Не нашли подходящего объявления?

    Оставьте заявку, и наши риэлторы подберут таунхаус в районе Малой Шильны

    (0)