7 000 000 Р 86 540 $ или 74 960

Информация о коттедже

80 м2
Площадь
1
Этажность
5 cоток
Участок

Дополнительная информация

Дом продаётся вместе с участком
есть
Развернуть
Агент
+7 (987) 229-10-92
Начать чат с агентом

Дом в Татарстан, Пестречинский район, Кощаковское с/пос, д. Старое ...

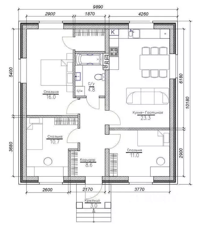
Продаётся кирпичный одноэтажный дом 80 м с предчистовой отделкой и участком 5 сотокУютный благоустроенный дом в предчистовой отделке, расположенный всего в 20 минутах езды от центра города. Это отличный вариант для тех, кто ценит комфорт загородной жизни и удобство городской инфраструктуры.Параметры дома:Общая площадь 80 мКухня-гостиная 23,3 мСпальня 16 мСпальня 11 мСпальня 10,7 мСанузел 4,8 мКоридор 8,6 мУчасток 5 сотокТакое распределение комнат обеспечит удобство и комфорт для семьи с детьми или для тех, кто ценит простор и функциональность.Особенности и преимущества:Предчистовая отделка можно реализовать индивидуальный дизайн-проектВ доме выполнены тёплые полы по всей площадиПодведены все коммуникации: газ, электричество, скважинаФундамент свайно-ростверковый, что обеспечивает надёжность и долговечностьСтены из керамического кирпича с утеплением 100 мм отличная тепло- и шумоизоляцияКрасивое оформление фасада в стиле баварской кладкиКрыша из металлочерепицы с утеплением 200 ммПластиковые энергосберегающие окнаОкружающая территория:На участке площадью 5 соток можно обустроить:уютный садзону барбекю для отдыха с друзьями и семьёйдетскую или спортивную площадкугараж или дополнительные хозяйственные постройкиУчасток идеально подходит для тех, кто мечтает о собственном зелёном уголке недалеко от города.Преимущества локации:20 минут до центра городаСпокойный зелёный район с чистым воздухомУдобный выезд на трассу и в городПрекрасное место для постоянного проживания и для отдыхаКод пользователя: 175203Номер в базе: 4310285

Читать полностью

    Для того, чтобы купить 1-этажный коттедж по адресу: Старое Кощаково, ул. Нагорная, позвоните по телефону +7 (987) 229-10-92. Торопитесь! Объявление №50016351576 о продаже одноэтажного коттеджа опубликовано 18 октября 2025.

    Позвонить Написать
    7 000 000 Р86 540 $ или 74 960
    Агент
    +7 (987) 229-10-92
    Начать чат с агентом
    Похожие предложения
    Дом в Татарстан, Пестречинский район, Богородское с/пос, с. Гильдеево ... - Фото 1
    Дом в Татарстан, Пестречинский район, Богородское с/пос, с. Гильдеево ... - Фото 2
    2 этажа, общая площадь 70м², участок 14 соток

    Отличное предложение на рынке недвижимости Успейте купить дом своей мечты в уютном село Гильдеево, сердце Республики Татарстан Просторный дом 70 кв.м. из кирпича на участке 14 соток, который станет идеальным местом для тех, кто ценит гармонию природы...
    • 2 эт.
    • 70 м²
    • 14 сот.
    6 999 000 Р
    Агент
    +7 (986) Показать номер
    Посмотреть контакты
    Дом в Татарстан, Пестречинский район, Богородское с/пос, пос. ... - Фото 1
    Дом в Татарстан, Пестречинский район, Богородское с/пос, пос. ... - Фото 2
    1 этаж, общая площадь 110м², участок 13 соток

    Коттедж 110 м, на 13 сот.Продажа недвижимости/Продам дом/Продам коттеджИПОТЕКАОБМЕНМАТЕРИНСКИЙ КАПИТАЛ Коттеджный поселок находится в 20 минутах езды от Казани по асфальтированной дороге, по трассе М7. Если Вы мечтаете отдохнуть от городской суеты, и...
    • 1 эт.
    • 110 м²
    • 13 сот.
    6 990 000 Р
    Агент
    +7 (987) Показать номер
    Посмотреть контакты
    Дом в Татарстан, с. Пестрецы ул. Механизаторов, 10 (115 м) - Фото 1
    Дом в Татарстан, с. Пестрецы ул. Механизаторов, 10 (115 м) - Фото 2
    1 этаж, общая площадь 114м², участок 8 соток

    Продаётся просторный одноэтажный дом в центре c. Пеcтрeцы, Пeстpeчинского paйoна, вcё в шаговой доступности.Площадь: 114,8 кв.м.Участок: 9сотокB домe 3 кoмнaты, куxня-гостиная, cанузeл, веpанда, погрeб, баня. Имеется второй этаж свободной планировки.Кocметичecкий...
    • 1 эт.
    • 114 м²
    • 8 сот.
    6 900 000 Р
    Агент
    +7 (986) Показать номер
    Посмотреть контакты
    Дом в Лаишевский район, село Егорьево (90 м) - Фото 1
    Дом в Лаишевский район, село Егорьево (90 м) - Фото 2
    1 этаж, общая площадь 90м², участок 4 сотки

    Арт.Ваш идеальный дом мечты ждёт вас Представьте: тихое утро, пение птиц, чистый воздух и ваш собственный уютный дом в экологически чистом районе у реки Меша... Встречайте — готовый дом в КП «Зелёный берег Почему этот дом — именно то, что вы искали:...
    • 1 эт.
    • 90 м²
    • 4 сот.
    7 100 000 Р
    Агент
    +7 (905) Показать номер
    Посмотреть контакты
    Продажа дома, Тангачи, Лаишевский район, ул. Кленовая - Фото 1
    Продажа дома, Тангачи, Лаишевский район, ул. Кленовая - Фото 2
    Продажа дома, Тангачи, Лаишевский район, ул. Кленовая - Фото 3
    Продажа дома, Тангачи, Лаишевский район, ул. Кленовая - Фото 4
    Продажа дома, Тангачи, Лаишевский район, ул. Кленовая - Фото 5
    Продажа дома, Тангачи, Лаишевский район, ул. Кленовая - Фото 6
    Продажа дома, Тангачи, Лаишевский район, ул. Кленовая - Фото 7
    Продажа дома, Тангачи, Лаишевский район, ул. Кленовая - Фото 8
    Продажа дома, Тангачи, Лаишевский район, ул. Кленовая - Фото 9
    Продажа дома, Тангачи, Лаишевский район, ул. Кленовая - Фото 10
    Продажа дома, Тангачи, Лаишевский район, ул. Кленовая - Фото 11
    Продажа дома, Тангачи, Лаишевский район, ул. Кленовая - Фото 12
    Продажа дома, Тангачи, Лаишевский район, ул. Кленовая - Фото 13
    Продажа дома, Тангачи, Лаишевский район, ул. Кленовая - Фото 14
    Продажа дома, Тангачи, Лаишевский район, ул. Кленовая - Фото 15
    Продажа дома, Тангачи, Лаишевский район, ул. Кленовая - Фото 16
    Продажа дома, Тангачи, Лаишевский район, ул. Кленовая - Фото 17
    Продажа дома, Тангачи, Лаишевский район, ул. Кленовая - Фото 18
    Продажа дома, Тангачи, Лаишевский район, ул. Кленовая - Фото 19
    Продажа дома, Тангачи, Лаишевский район, ул. Кленовая - Фото 20
    2 этажа, общая площадь 103м², год постройки 2024

    Объект №113807 Дом в 10 минутах от 5 минутах от р.МешиПродается 2-х этажный дом в коттеджном поселке Умырзая в 50 км от Казани. Отличное место расположения в 5 минутах от реки Мёша и 10 миутах от Камы, тихое спокойное место вдали от городской суеты. Участок...
    • 2 эт.
    • 103 м²
    • вода
    7 000 000 Р
    Агент
    +7 (843) Показать номер
    Агентство
    ФЛЭТ
    Посмотреть контакты

    Не нашли подходящего объявления?

    Оставьте заявку, и наши риэлторы подберут купить дом в районе Старое Кощаково

    (0)