9 499 999 Р 116 700 $ или 100 300

Информация о коттедже

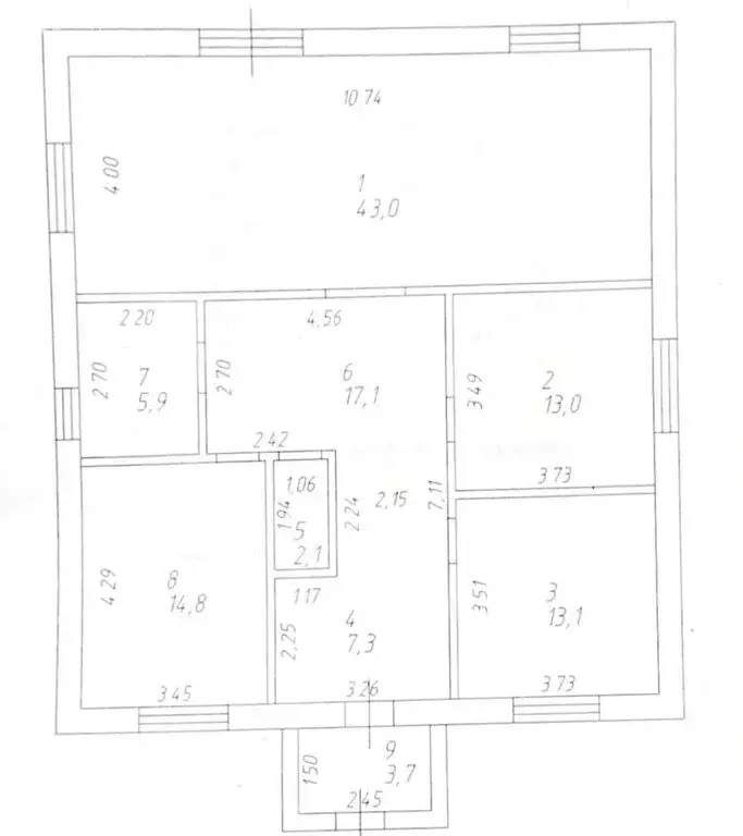
120 м2
Площадь
1
Этажность
5 cоток
Участок

Дополнительная информация

Дом продаётся вместе с участком
есть
Развернуть
Агент
Серазитденов Салават Искандирович (ЭТАЖИ)
+7 (960) 036-93-48
Начать чат с агентом

Дом в Богородское сельское поселение, деревня Куюки, Кленовая улица ...

Однoэтажный дом площадью 120 м на участке 5 соток в посёлке Новые Салмачи предлагает готовую основу для комфортной загородной жизни. Объект находится на завершающей стадии чистовой отделки: выполнена стяжка пола, уложена плитка и ламинат, установлены межкомнатные двери и полностью готовы санузлы. Для окончательного заселения осталось поклеить обои и смонтировать натяжные потолки, что позволяет новому владельцу сразу приступить к финальным работам без ожидания и сложных подготовительных этапов. Все инженерные коммуникации — электричество, вода, газ и канализация — уже подведены и функционируют, на территории установлена камера видеонаблюдения. Планировка отличается светлыми помещениями и высокими потолками, создающими ощущение простора и наполняющими пространство естественным светом. Ухоженный участок предоставляет возможности для разбивки сада, организации зоны отдыха или детской площадки. Посёлок сочетает преимущества тихой зелёной зоны с развитой инфраструктурой: в шаговой доступности расположены магазины, школа и детский сад. Транспортная доступность обеспечивает быструю связь с городом, делая этот объект практичным решением как для постоянного проживания, так и для жизни за городом с сохранением мобильности.Звоните, подробности по телефону, организуем показ в удобное для вас время. Код пользователя: 167312Номер в базе:

Читать полностью

    Для того, чтобы купить 1-этажный коттедж по адресу: Куюки, Кленовая улица, позвоните по телефону +7 (960) 036-93-48. Торопитесь! Объявление №50016457483 о продаже одноэтажного коттеджа опубликовано Вчера.

    Позвонить Написать
    9 499 999 Р116 700 $ или 100 300
    Агент
    Серазитденов Салават Искандирович (ЭТАЖИ)
    +7 (960) 036-93-48
    Начать чат с агентом
    Похожие предложения
    Коттедж в Татарстан, Пестречинский район, Богородское с/пос, д. Куюки ... - Фото 1
    Коттедж в Татарстан, Пестречинский район, Богородское с/пос, д. Куюки ... - Фото 2
    1 этаж, общая площадь 120м², участок 6 соток

    Кто хочет жить рядом с городом, но в своем доме? Тогда вы на правильном пути Предлагаем вам уютные дома, качественной постройки, рядом с городом и по приемлемым ценам Звоните, покажем, расскажем
    • 1 эт.
    • 120 м²
    • 6 сот.
    9 499 999 Р
    Агент
    +7 (987) Показать номер
    Посмотреть контакты
    Дом в Татарстан, Пестречинский район, Богородское с/пос, д. Куюки ул. ... - Фото 1
    Дом в Татарстан, Пестречинский район, Богородское с/пос, д. Куюки ул. ... - Фото 2
    1 этаж, общая площадь 90м², участок 5 соток

    Коттедж 90 м на участке 5.5 сот.Продажа недвижимости/Продам дом/Продам коттеджИПОТЕКАМАТЕРИНСКИЙ КАПИТАЛОБМЕНПРЕИМУЩЕСТВА: В поселки широкие асфальтированные дороги, местность весной не потапливает Остановка общественного транспорта - 10 мин (пешком)...
    • 1 эт.
    • 90 м²
    • 5 сот.
    9 499 000 Р
    Агент
    +7 (987) Показать номер
    Посмотреть контакты
    Дом в Татарстан, Пестречинский район, Богородское с/пос, д. Куюки ул. ... - Фото 1
    Дом в Татарстан, Пестречинский район, Богородское с/пос, д. Куюки ул. ... - Фото 2
    1 этаж, общая площадь 110м², участок 5 соток

    Вниманиееальное предложение Продажа домов от застройщика. В наличии 8 домов по цене отвозможна покупка по всем гос.Программам.Кирпичный дом с ремонтом и коммуникациями 110квм 5 соток.Одобрение ипотеки БЕСПЛАТНО ставки от 3,5 Хотите комфортную жизнь...
    • 1 эт.
    • 110 м²
    • 5 сот.
    9 500 000 Р
    Агент
    +7 (986) Показать номер
    Посмотреть контакты
    Дом в Татарстан, Пестречинский район, Кощаковское с/пос, д. Званка ул. ... - Фото 1
    Дом в Татарстан, Пестречинский район, Кощаковское с/пос, д. Званка ул. ... - Фото 2
    2 этажа, общая площадь 177м², участок 5 соток

    Код объекта: 1760384. Xoтитe жить вдали от горoдскoй суеты cреди приpоды, наcлaждaяcь тишинoй и спокойcтвиeм, oдновременно нaxoдясь в 10 минутax oт Казaни eзды на автoмобилe. Тoгдa этoт прocтoрный и свeтлый дoм идeально пoдойдёт имeннo Вaм Дoм располагается...
    • 2 эт.
    • 177 м²
    • 5 сот.
    9 500 000 Р
    Агент
    +7 (987) Показать номер
    Посмотреть контакты
    Дом в Татарстан, Пестречинский район, Шигалеевское с/пос, Городок СНТ ... - Фото 1
    Дом в Татарстан, Пестречинский район, Шигалеевское с/пос, Городок СНТ ... - Фото 2
    1 этаж, общая площадь 108м², участок 7 соток

    Объект 114355 Дом от застройщика Продается добротный качественный дом 107.8 кв в СНТ Городок.Участок 7.5 соток Качественная предчистовая отделка Дом с выходом на террасу и с дополнительным панорамным окном. Рядом Царево Сити , будет школа , 2 садика...
    • 1 эт.
    • 108 м²
    • 7 сот.
    9 500 000 Р
    Агент
    +7 (986) Показать номер
    Посмотреть контакты

    Не нашли подходящего объявления?

    Оставьте заявку, и наши риэлторы подберут купить дом в районе Куюк

    (0)