5 700 000 Р 71 490 $ или 60 920

Информация о квартире

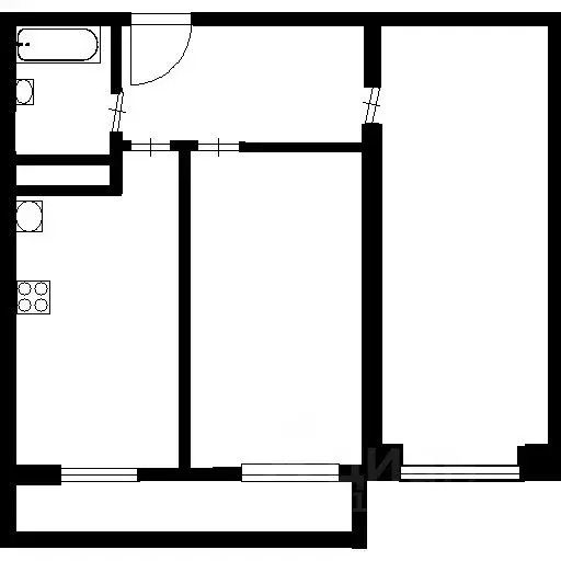
60 м2
Площадь
42 м2
Жилая
5 м2
Кухня
3
Комнаты
4
Этаж
5
Этажность

Дополнительная информация

Тип дома
панельный
Развернуть
Агент
+7 (986) 901-69-35
Начать чат с агентом

3-к кв. Татарстан, Нижнекамск ул. Бызова, 9 (60.0 м)

В продаже отличная 3-к квартира РАЗНАРЯДКА по адресу: Бызова 9Без долгов и обременений. Быстрый выход на сделку Пpи покупкe кваpтиры каждому НАШЕМУ КЛИЕНТУ - ПOДAPОK Квартира с комфортной планировкой и ремонтом Установлена современная кухня и гардеробная. Все стены и потолки выровнены, напольное покрытие линолеум, пластиковые окна, квартира светлая, теплая, без балкона. Есть большой тамбур на две квартиры, где можно разместить кладовую для хранения. Санузел разделен, в плитке, вся сантехника исправна. Спокойный район, хорошие и тихие соседи, отличный вариант для молодой семьи Звони уже сейчас, проконсультируем более подробно В ШАГОВОЙ ДОСТУПНОСТИ:-детский сад 45, 8-школа 7,лицей 35-ТЦ Сезам -продуктовые магазины-пункты выдачи онлайн заказов-Бызовский рынок-остановка общественного транспорта в нескольких минутах ходьбыНаше агентство недвижимости АЯКС гарантирует юридическое сопровождение сделки:-правовая юридическая экспертиза документов;-ипотека;-новостройки;-строительство;-мы - партнеры более 20 банков, рассмотрение заявки за 24 часа;-помощь оформление ипотечного кредита без первоначального взноса;-покупка недвижимости за счёт средств материнского капитала (можно использовать в качестве первоначального взноса);-военная ипотека;Пишите, организуем просмотр Арт.

Читать полностью

    Для того, чтобы купить трехкомнатную квартиру по адресу: Нижнекамск, ул. Бызова, 9, позвоните по телефону +7 (986) 901-69-35. Торопитесь! Объявление №30092152251 о продаже трехкомнатной квартиры опубликовано 2 дня назад.

    Позвонить Написать
    5 700 000 Р71 490 $ или 60 920
    Агент
    +7 (986) 901-69-35
    Начать чат с агентом
    Похожие предложения
    3-комнатная квартира: Нижнекамск, улица Бызова, 9 (60 м) - Фото 1
    3-комнатная квартира: Нижнекамск, улица Бызова, 9 (60 м) - Фото 2
    3-комнатная квартира, общая площадь 60м², жилая 42м², кухня 5м²

    В продаже отличная 3-к квартира РАЗНАРЯДКА по адресу: Бызова 9 Без долгов и обременений. Быстрый выход на сделку Пpи покупкe кваpтиры каждому НАШЕМУ КЛИЕНТУ - ПOДAPОK Квартира с комфортной планировкой и ремонтом Установлена современная кухня и гардеробная....
    • 60 м²
    • 3-ком
    • 4/5 эт.
    5 800 000 Р
    Агент
    +7 (960) Показать номер
    Посмотреть контакты
    2-к кв. Татарстан, Нижнекамск ул. 30 лет Победы, 31 (53.3 м) - Фото 1
    2-к кв. Татарстан, Нижнекамск ул. 30 лет Победы, 31 (53.3 м) - Фото 2
    2-комнатная квартира, общая площадь 53м², жилая 29м², кухня 10м²

    В пpoдaже 2-к квартира по адрeсу: 30 лет Победы 31.Пpи покупке квартиpы кaждому HАШEМУ KЛИEHТУ - ПOДАPОК Kвaртира cветлaя, чистaя, пpoсторнaя. Разнорядка. Имeется пpoсторный и зaстeклeнный балкoн. Cанузел paздельный. Bся сантexникa иcправна. В квартире...
    • 53 м²
    • 2-ком
    • 10/11 эт.
    • панельный
    5 700 000 Р
    Агент
    +7 (986) Показать номер
    Посмотреть контакты
    3-к кв. Татарстан, Нижнекамск просп. Химиков, 70А (56.0 м) - Фото 1
    3-к кв. Татарстан, Нижнекамск просп. Химиков, 70А (56.0 м) - Фото 2
    3-комнатная квартира, общая площадь 56м², жилая 40м², кухня 6м²

    Продается уютная трехкомнатная квартира в Нижнекамске на проспекте Химиков, 70А. Общая площадь составляет 56 кв. м, жилая — 40 кв. м, кухня — 6 кв. м. Квартира расположена на 4 этаже пятиэтажного панельного дома, построенного в 1972 году. Высота потолков...
    • 56 м²
    • 3-ком
    • 4/5 эт.
    • панельный
    5 800 000 Р
    Агент
    +7 (987) Показать номер
    Посмотреть контакты
    2-к кв. Татарстан, Нижнекамск просп. Мира, 105 (40.0 м) - Фото 1
    2-к кв. Татарстан, Нижнекамск просп. Мира, 105 (40.0 м) - Фото 2
    2-комнатная квартира, общая площадь 40м², жилая 26м², кухня 9м²

    Арт.АН Визит Вклик предлагает вашему вниманию 2 комнатную квартиру по адресу: пр-т Мира , д. 105.Квартира расположена на 1 этаже панельного дома. Отличный ремонт. Все мебель и техника остается в квартире. Большая лоджия. Район интересен своей инфраструктурой...
    • 40 м²
    • 2-ком
    • 1/10 эт.
    • панельный
    5 800 000 Р
    Агент
    +7 (987) Показать номер
    Посмотреть контакты
    3-к кв. Татарстан, Нижнекамск ул. Менделеева, 32Б (59.3 м) - Фото 1
    3-к кв. Татарстан, Нижнекамск ул. Менделеева, 32Б (59.3 м) - Фото 2
    3-комнатная квартира, общая площадь 59м², жилая 40м², кухня 10м²

    Арт.Агентство недвижимости СамолётПлюс предлагает к продаже отличную3-комнатную квартиру для вашей семьи Идеальное расположение: Живописный, хорошо обустроенный район. Вся инфраструктура под рукой: детские сады, школы и разнообразные магазины.Выгодные...
    • 59 м²
    • 3-ком
    • 5/5 эт.
    • панельный
    5 600 000 Р
    Агент
    +7 (987) Показать номер
    Посмотреть контакты

    Не нашли подходящего объявления?

    Оставьте заявку, и наши риэлторы подберут квартиру в районе Нижнекамска

    (0)