3 500 000 Р 43 270 $ или 37 480

Информация о квартире

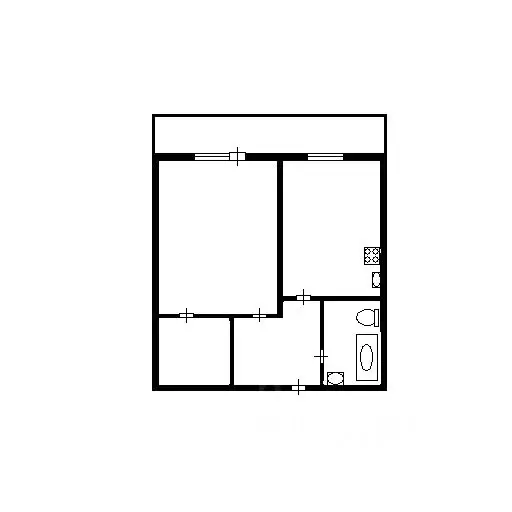
44 м2
Площадь
26 м2
Жилая
6 м2
Кухня
2
Комнаты
1
Этаж
5
Этажность

Дополнительная информация

Тип дома
панельный
Развернуть
Агент
+7 (987) 066-13-18
Начать чат с агентом

2-к кв. Татарстан, Нижнекамск просп. Химиков, 76Г (44.0 м)

Продается уютная 2-комнатная квартира площадью 44 кв. м в тихом и зеленом районе. Квартира расположена на 1 этаже 5-этажного панельного дом. Это отличный вариант для молодой семьи или для тех, кто ищет комфортное жилье по доступной цене.В квартире сделан косметический ремонт, который позволяет сразу заселяться и жить без дополнительных вложений. В комнатах и на кухне установлены пластиковые окна, выходящие как на улицу, так и во двор, поэтому всегда будет достаточно света и свежего воздуха. Санузел отдельный, что удобно для проживания нескольких человек. Планировка квартиры продумана до мелочей, чтобы каждый метр был использован с пользой.Дом находится в хорошем состоянии, подъезд чистый, а соседи дружелюбные. В шаговой доступности от дома есть всё необходимое для комфортной жизни: школы, детские сады и магазины. До ближайших остановок общественного транспорта можно дойти пешком всего за несколько минут, что позволяет быстро добраться до любой точки города.Продажа квартиры осуществляется по договору купли-продажи. Обременений нет, поэтому оформление сделки пройдет быстро и без проблем. Подходит под ипотеку, и мы готовы помочь с её оформлением, если потребуется.Приглашаем вас записаться на просмотр и убедиться в преимуществах этой квартиры лично. Это может стать вашим новым уютным домом, где вы будете чувствовать себя комфортно и счастливо. Не упустите возможность сделать выгодное приобретение

Читать полностью

    Для того, чтобы купить двухкомнатную квартиру по адресу: Нижнекамск, Химиков пр-кт., 76Г, позвоните по телефону +7 (987) 066-13-18. Торопитесь! Объявление №30091546154 о продаже двухкомнатной квартиры опубликовано Вчера.

    Позвонить Написать
    3 500 000 Р43 270 $ или 37 480
    Агент
    +7 (987) 066-13-18
    Начать чат с агентом
    Похожие предложения
    2-к кв. Татарстан, Нижнекамск Чабьинская ул., 5 (47.7 м) - Фото 1
    2-к кв. Татарстан, Нижнекамск Чабьинская ул., 5 (47.7 м) - Фото 2
    2-комнатная квартира, общая площадь 47м², жилая 28м², кухня 7м²

    В продаже 2-х комнатная квартира по адресу : ул. Чабьинская 5. БЕЗ ДОЛГОВ И ОБРЕМЕНЕНИЙ, быстрый выход на сделку Пpи покупкe кваpтиры каждому НАШЕМУ КЛИЕНТУ - ПOДAPОK Дом кирпичный. Квартира разнорядка, светлая, чистая, удобная планировка. Напольное...
    • 47 м²
    • 2-ком
    • 2/5 эт.
    • кирпичный
    3 500 000 Р
    Агент
    +7 (986) Показать номер
    Посмотреть контакты
    2-к кв. Татарстан, Нижнекамск Студенческая ул., 17 (34.6 м) - Фото 1
    2-к кв. Татарстан, Нижнекамск Студенческая ул., 17 (34.6 м) - Фото 2
    2-комнатная квартира, общая площадь 34м², жилая 22м², кухня 6м²

    Продается двухкомнатная квартира вторичного жилья на 8 этаже 9-этажного дома. Общая площадь составляет 34.60 кв.м., из которых на кухню приходится 6 кв.м. Это очень экономичный вариант, который подойдет как для молодых семей с детьми, так и для студентов,...
    • 34 м²
    • 2-ком
    • 8/9 эт.
    • панельный
    3 500 000 Р
    Агент
    +7 (917) Показать номер
    Посмотреть контакты
    2-к кв. Татарстан, Нижнекамск просп. Строителей, 1А (42.0 м) - Фото 1
    2-к кв. Татарстан, Нижнекамск просп. Строителей, 1А (42.0 м) - Фото 2
    2-комнатная квартира, общая площадь 42м², жилая 31м², кухня 6м²

    Арт.Продаётся 2-комнатная квартира разнарядка в Нижнекамске, ул. Строителей, д. 1АКвартира с удобной планировкойаздельные комнаты и кухня, что обеспечивает комфортное проживание всей семьи. Характеристики:•Этаж: пятыйХороший вид из окна•Планировка: разнарядка...
    • 42 м²
    • 2-ком
    • 5/5 эт.
    • кирпичный
    3 500 000 Р
    Агент
    +7 (919) Показать номер
    Посмотреть контакты
    1-к кв. Татарстан, Нижнекамск Спортивная ул., 15 (35.6 м) - Фото 1
    1-к кв. Татарстан, Нижнекамск Спортивная ул., 15 (35.6 м) - Фото 2
    1-комнатная квартира, общая площадь 35м², жилая 20м², кухня 8м²

    Арт.Продаётся уютная однокомнатная квартира площадью 35.6 квадратных метров на одиннадцатом этаже двенадцатиэтажного панельного дома, расположенного по адресу: город Нижнекамск, Спортивная улица, дом 15. Жилая площадь составляет комфортные 20 квадратных...
    • 35 м²
    • 1-ком
    • 11/12 эт.
    • панельный
    3 450 000 Р
    Агент
    +7 (919) Показать номер
    Посмотреть контакты
    1-к кв. Татарстан, Нижнекамск Студенческая ул., 63 (29.1 м) - Фото 1
    1-к кв. Татарстан, Нижнекамск Студенческая ул., 63 (29.1 м) - Фото 2
    1-комнатная квартира, общая площадь 29м², жилая 16м², кухня 7м²

    Арт.Агентство Самолет Плюс предлагает вам отличный вариант однокомнатной квартиры с чистым ремонтом, Главное преимущество- большой балкон и просторная кухня. Здесь можно поставить даже диван, будет еще одно спальное место. Данный вариант подойдет как...
    • 29 м²
    • 1-ком
    • 9/10 эт.
    • панельный
    3 500 000 Р
    Агент
    +7 (987) Показать номер
    Посмотреть контакты

    Не нашли подходящего объявления?

    Оставьте заявку, и наши риэлторы подберут квартиру в районе Нижнекамска

    (0)