900 000 Р 11 730 $ или 9 970

Информация об комнате

11.9 м2
Комната
5
Этаж
5
Этажность

Состояние и оснащение

Лифт
есть

Дополнительная информация

Количество комнат
2
Количество продаваемых комнат
1
Лифт
Развернуть
Агент
+7 (919) 647-42-28
Начать чат с агентом

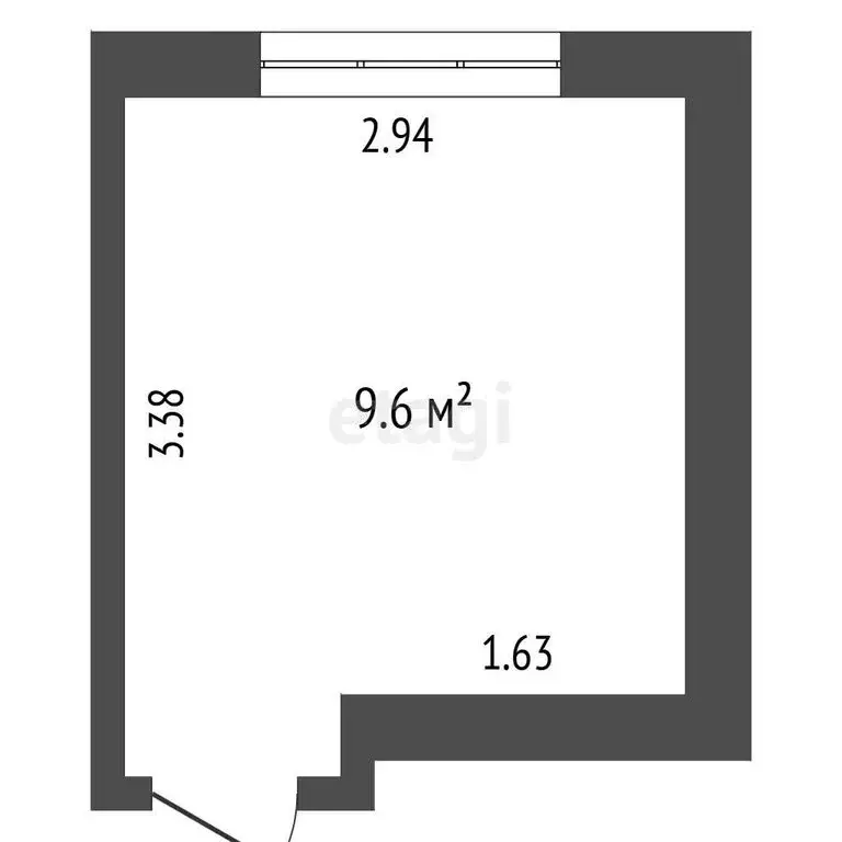
Комната Татарстан, Нижнекамск Студенческая ул., 27А (11.9 м)

Арт.Продается уютная комната в теплом кирпичном доме по адресу Студенческая 27А. Дом в отдалении от проезжей части. В шаговой доступности ТЦ Якорь.11.9м квадратура комнаты. Общая кухня и санузел на 2 семьи. Комната рядом с балконом. В комнате выполнен косметический ремонт. Натяжные потолки, пластикове окно. В планах заменить линолеум.Взрослые собственники. Без долгов и обременений.

Читать полностью
    Позвонить Написать
    900 000 Р11 730 $ или 9 970
    Агент
    +7 (919) 647-42-28
    Начать чат с агентом
    Похожие предложения
    Комната Татарстан, Нижнекамск Студенческая ул., 3 (13.0 м) - Фото 1
    Комната Татарстан, Нижнекамск Студенческая ул., 3 (13.0 м) - Фото 2
    Продается уютная комната в 5-этажном доме на 5 этаже, площадью 13.80 кв.м. Этот экономичный вариант идеально подойдет как для молодых пар, так и для студентов.В комнате выполнен стандартный ремонт, а также проведена вода в комнату, что позволит вам сразу...
    • 1 ком.
    • 5/5 эт.
    • 13 м²
    900 000 Р
    Агент
    +7 (987) Показать номер
    Посмотреть контакты
    Комната Татарстан, Нижнекамск Корабельная ул., 36 (18.0 м) - Фото 1
    Комната Татарстан, Нижнекамск Корабельная ул., 36 (18.0 м) - Фото 2
    Продажа,1 комнаты в общежитии на 3 этаже 9-этажного дома площадью 18.00 кв.м. Это очень экономичный вариант, который сейчас требует небольшого ремонта. Мебель уже есть и остается: Шкаф,диван, кресло,.Очень чистоплотные соседи. Это идеальный вариант для...
    • 1 ком.
    • 3/9 эт.
    • 18 м²
    900 000 Р
    Агент
    +7 (987) Показать номер
    Посмотреть контакты
    Комната Татарстан, Зеленодольск ул. Ленина, 1А (16.9 м) - Фото 1
    Комната Татарстан, Зеленодольск ул. Ленина, 1А (16.9 м) - Фото 2
    Объект 13499 Хороший вариантПродается чистая, светлая, комфортная комната- гостинка 16,9 м2 в кирпичном доме, расположенном в спальном районе города Зеленодольска. Рядом с домом расположены река, магазины, остановка, стадион им. Колотова, парк Родина...
    • 1 ком.
    • 9/9 эт.
    • 16.9 м²
    910 000 Р
    Агент
    +7 (986) Показать номер
    Посмотреть контакты
    Продажа комнаты, Зеленодольск, Зеленодольский район, ул. Ленина - Фото 1
    Продажа комнаты, Зеленодольск, Зеленодольский район, ул. Ленина - Фото 2
    Продажа комнаты, Зеленодольск, Зеленодольский район, ул. Ленина - Фото 3
    Продажа комнаты, Зеленодольск, Зеленодольский район, ул. Ленина - Фото 4
    Продажа комнаты, Зеленодольск, Зеленодольский район, ул. Ленина - Фото 5
    Продажа комнаты, Зеленодольск, Зеленодольский район, ул. Ленина - Фото 6
    Продажа комнаты, Зеленодольск, Зеленодольский район, ул. Ленина - Фото 7
    Продажа комнаты, Зеленодольск, Зеленодольский район, ул. Ленина - Фото 8
    Продажа комнаты, Зеленодольск, Зеленодольский район, ул. Ленина - Фото 9
    Продажа комнаты, Зеленодольск, Зеленодольский район, ул. Ленина - Фото 10
    Продажа комнаты, Зеленодольск, Зеленодольский район, ул. Ленина - Фото 11
    Продажа комнаты, Зеленодольск, Зеленодольский район, ул. Ленина - Фото 12
    Продажа комнаты, Зеленодольск, Зеленодольский район, ул. Ленина - Фото 13
    Продажа комнаты, Зеленодольск, Зеленодольский район, ул. Ленина - Фото 14
    Продажа комнаты, Зеленодольск, Зеленодольский район, ул. Ленина - Фото 15
    Продажа комнаты, Зеленодольск, Зеленодольский район, ул. Ленина - Фото 16
    Продажа комнаты, Зеленодольск, Зеленодольский район, ул. Ленина - Фото 17
    Продажа комнаты, Зеленодольск, Зеленодольский район, ул. Ленина - Фото 18
    Продажа комнаты, Зеленодольск, Зеленодольский район, ул. Ленина - Фото 19
    Продажа комнаты, Зеленодольск, Зеленодольский район, ул. Ленина - Фото 20
    общая площадь 16.9м², кухня 4м²

    Объект №13499 Хороший вариантПродается чистая, светлая, комфортная комната- гостинка 16,9 м2 в кирпичном доме, расположенном в спальном районе города Зеленодольска. Рядом с домом расположены река, магазины, остановка, стадион им. Колотова, парк "Родина"....
    • 1 ком.
    • 9/9 эт.
    910 000 Р
    Агент
    +7 (843) Показать номер
    Агентство
    ФЛЭТ
    Посмотреть контакты
    Комната Татарстан, Зеленодольск ул. Татарстан, 25 (17.5 м) - Фото 1
    Комната Татарстан, Зеленодольск ул. Татарстан, 25 (17.5 м) - Фото 2
    Продам хорошую большую комнату со статусом квартиры( согласие соседей не требуется) , площадью 17.5кв. В комнату есть возможность провести воду и установить раковину и душевую с сан узлом.Очень хорошие соседи, документы на продажу готовы. Без долгов...
    • 1 ком.
    • 3/4 эт.
    • 17.5 м²
    899 999 Р
    Агент
    +7 (987) Показать номер
    Посмотреть контакты

    Не нашли подходящего объявления?

    Оставьте заявку, и наши риэлторы подберут комнату в районе Нижнекамска

    (0)