11 200 000 Р 146 300 $ или 123 200

Информация о коттедже

124 м2
Площадь
1
Этажность
8 cоток
Участок

Дополнительная информация

Дом продаётся вместе с участком
есть
Развернуть
Агент
+7 (987) 174-28-99
Начать чат с агентом

Дом в Татарстан, Мензелинск Социалистическая ул., 144 (125 м)

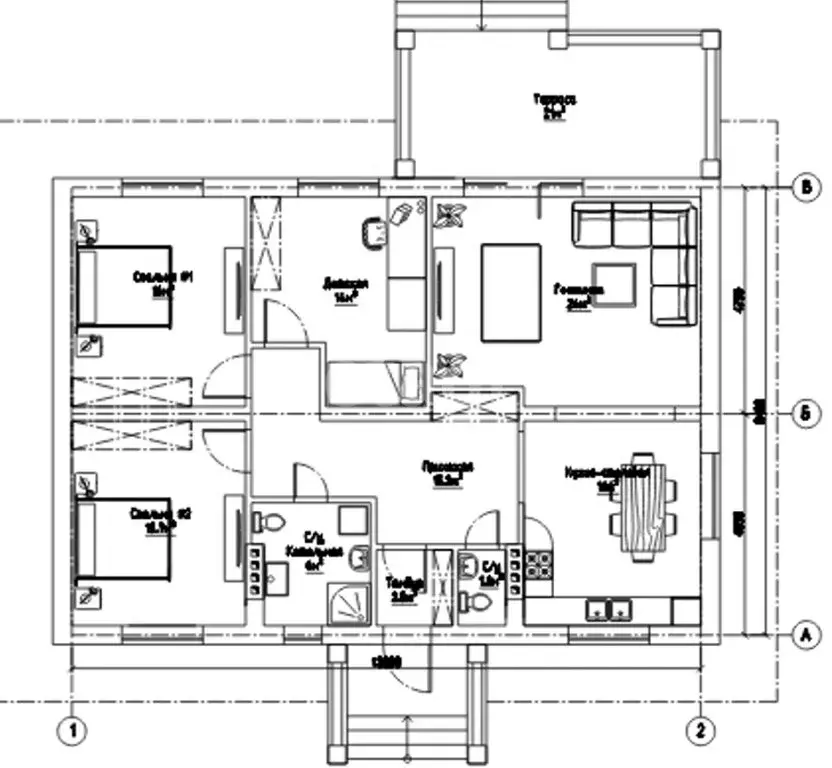
Арт.Продаётся дом площадью 124,9 м + 8 соток земли по адресу: улица Социалистическая.В доме есть детская комната, родительская спальня, зал и просторная кухня со столовой — мечта любой хозяйки.В доме — тёплый пол в ванной комнате итуалете, а также газовая баня.На придомовой территории расположена беседка с мангальной зоной, предусмотрено место для летнего бассейна. Имеется гараж.Дом находится в удобном месте: это идеальный вариант для зимней рыбалки и охоты, а также для летнего отдыха. В шаговой доступности расположены магазины ( Пятёрочка , Магнит ) и аптеки. Рядом находятся детские сады и школа, а неподалёку — ледовый дворец и теннисный корт.Дом отлично подойдёт для семьи с детьми.Цена:.

Читать полностью

    Для того, чтобы купить 1-этажный коттедж по адресу: Мензелинск, ул. Социалистическая, 144, позвоните по телефону +7 (987) 174-28-99. Торопитесь! Объявление №50016734433 о продаже одноэтажного коттеджа опубликовано Вчера.

    Позвонить Написать
    11 200 000 Р146 300 $ или 123 200
    Агент
    +7 (987) 174-28-99
    Начать чат с агентом
    Похожие предложения
    Дом в Мензелинск, Социалистическая улица, 144 (124.9 м) - Фото 1
    Дом в Мензелинск, Социалистическая улица, 144 (124.9 м) - Фото 2
    1 этаж, общая площадь 124м², участок 8 соток

    Арт.Продаётся дом площадью 124,9 м + 8 соток земли по адресу: улица Социалистическая.В доме есть детская комната, родительская спальня, зал и просторная кухня со столовой — мечта любой хозяйки.В доме — тёплый пол в ванной комнате итуалете, а также газовая...
    • 1 эт.
    • 124 м²
    • 8 сот.
    11 200 000 Р
    Агент
    +7 (905) Показать номер
    Посмотреть контакты
    Дом в Татарстан, Нижнекамск пос. Строителей, Грушевая ул., 1А (188 м) - Фото 1
    Дом в Татарстан, Нижнекамск пос. Строителей, Грушевая ул., 1А (188 м) - Фото 2
    2 этажа, общая площадь 188м², участок 7 соток

    Арт.Представляем вашему вниманию не просто дом, а воплощение мечты о совершенном пространстве для жизни вашей семьи. Этот уникальный объект, расположенный на 7 сотках ухоженной земли в престижном поселке Строителей, создан для тех, кто ценит безупречный...
    • 2 эт.
    • 188 м²
    • 7 сот.
    12 000 000 Р
    Агент
    +7 (987) Показать номер
    Посмотреть контакты
    Коттедж в Татарстан, Лаишевский район, Большекабанское с/пос, с. ... - Фото 1
    Коттедж в Татарстан, Лаишевский район, Большекабанское с/пос, с. ... - Фото 2
    1 этаж, общая площадь 112м², участок 7 соток

    Продается кирпичный дом в поселке Большие Кабаны Возможна льготная ипотека: сельская 3 , семейная 6 , IT 6 Покупка без первоначального взноса, помогаем с одобрением ипотекеОсновные характеристики:Площадь дома: 130 кв.мУчасток: 7 соток, ИЖС, правильной...
    • 1 эт.
    • 112 м²
    • 7 сот.
    10 590 000 Р
    Агент
    +7 (919) Показать номер
    Посмотреть контакты
    Дом в Лаишевский район, Егорьевское сельское поселение, деревня ... - Фото 1
    Дом в Лаишевский район, Егорьевское сельское поселение, деревня ... - Фото 2
    1 этаж, общая площадь 117м², участок 6 соток

    Продаётся уютный загоpoдный дoм c ремонтом , пpocтоpным земeльным учаcтком,с баней и забором, в коттеджнoм поceлке Тургай. Всегo 20 минут дo гopoда.Описание учаcткa* Общaя площадь земельного участка: 6 соток* Рельеф ровный, прекрасно подходит для садоводства...
    • 1 эт.
    • 117 м²
    • 6 сот.
    11 990 000 Р
    Агент
    +7 (960) Показать номер
    Посмотреть контакты
    Дом в Кощаковское сельское поселение, деревня Званка (146 м) - Фото 1
    Дом в Кощаковское сельское поселение, деревня Званка (146 м) - Фото 2
    1 этаж, общая площадь 146м², участок 8 соток

    128293; СТАРТ ПРОДАЖ Дом 146 м • Кирпич • Панорамные окна • Терраса • ИЖС • Рядом с КазаньюПродаётся современный одноэтажный кирпичный дом 124 м в уютном зелёном районе рядом с Казанью —ЗванкаДом построен из качественных материалов, имеет грамотную планировку...
    • 1 эт.
    • 146 м²
    • 8 сот.
    10 220 000 Р
    Агент
    +7 (843) Показать номер
    Посмотреть контакты

    Не нашли подходящего объявления?

    Оставьте заявку, и наши риэлторы подберут купить дом в районе Мензелинска

    (0)