Узнать последнюю цену

Реализация объекта недвижимости приостановлена

Информация о коттедже

200 м2
Площадь
2024
Построен
2
Этажность

Состояние и оснащение

Год постройки
2024

Коммуникации

Водоснабжение
центральное
Канализация
есть
Развернуть

Продажа дома, Лаишевский район, ул. Славная

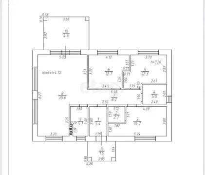
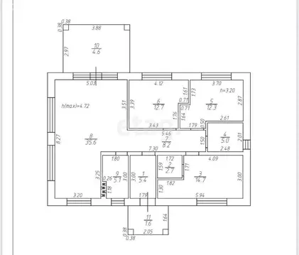
Объект №109230 Роскошный дом со вторым светом. Лаишевский район, коттеджный поселок Новые Сокуры, Оренбургский тракт. Проходит по программам семейная ипотека, господдержка, IT-ипотека. Отличное месторасположение, новый развивающийся поселок, в котором будут школа и дет сад. Кирпичный дом, современный облицовочный кирпич, 200 кв.м., 10 соток земли, ИЖС. Общая квадратура включает в себя: по первому этажу 123,1 кв.м, кухня-гостиная 41 кв.м., спальни 15,5 кв.м., 16,4 кв.м., 15,5 кв.м., санузел, котельная, высота потолков 3 метра, на втором этаже жилая комната 47,9 кв.м. с мансардными окнами и веранда. Очень современная планировка, с кухни-гостиной выход на шикарную веранду, с панорамными окнами в пол и вторым светом, в пике потолки 6 метров. Дом продается в предчистовой отделке, которая включает себя заведенные коммуникации, теплый пол, радиаторы, газовый котел. В постройке дома используются исключительного качества материалы, с соблюдением всех норм строительства. Новые Сокуры - это поселок, который динамично развивается, активно застраивается. Живописное и комфортное для проживания место! Экологически чистый, свежий воздух. В поселке организовано транспортное сообщение, каждый час ходит транспорт до ст.м. проспект Победы. Своя развитая инфраструктура, все находится рядом. Альтернатива: Бима, Зимняя Горка, Тургай, Усады, Кабаны, Сокуры, Столбище, Габишево.

Читать полностью
    Узнать последнюю цену

    Реализация объекта недвижимости приостановлена

    Не нашли подходящего объявления?

    Оставьте заявку, и наши риэлторы подберут купить дом в районе Лаишевского района

    (0)