10 397 010 Р 127 800 $ или 110 900

Информация о квартире

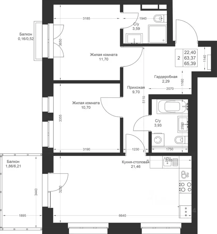
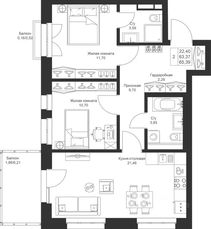
65 м2
Площадь
22 м2
Жилая
21 м2
Кухня
2
Комнаты
3
Этаж
4
Этажность
Развернуть
Агент
+7 (962) 468-10-37
Начать чат с агентом

2-к кв. Татарстан, Лаишевский район, Столбищенское с/пос, с. Усады ул. ...

Продается 2 Евро-комнатная квартира 148 площадью 65,39 кв.м на 3 этаже в строящемся доме проекта Новый свет компании Ак Барс Дом . ЖК НОВЫЙ СВЕТ это современный малоэтажный жилой комплекс в Лаишевском районе. ПРЕИМУЩЕСТВА: 4-этажный монолитно-кирпичный дом; для отдыха шезлонги и гамаки; игровые зоны для детей разных возрастов и зона для спорта; закрытый двор и плоскостной наземный паркинг; проектом предусмотрено создание семейного игрового парка, площадью 1,2 га, а также строительство 10 детских садов и 3 школ. УДОБНАЯ ПЛАНИРОВКА:Уютная 2-комнатная квартира с кухней-гостиной и отдельной спальней. На балконе можно обустроить дополнительное место для отдыха или работы. Продуманное зонирование: кухонная зона находится в нише, чтобы скрыть рабочие процессы.Удачные пропорции жилых комнат и высокие потолки позволят выгодно использовать пространство при расстановке мебели.ПРИОБРЕСТИ КВАРТИРУ МОЖНО: • наличным и безналичным расчётом по 100 оплате и рассрочке; • с использованием маткапитала; • с использованием жилищных сертификатов; • с привлечением ипотечных средств (ипотека с господдержкой, ипотека для семей с детьми, военная ипотека, IT-ипотека). ПОДБОР КВАРТИРЫ:Подбор квартиры, полное юридическое сопровождение сделки — БЕСПЛАТНО.Наши специалисты помогут вам в решении вопроса приобретения недвижимости с момента консультации до момента передачи ключа от квартиры.

Читать полностью
    Позвонить Написать
    10 397 010 Р127 800 $ или 110 900
    Агент
    +7 (962) 468-10-37
    Начать чат с агентом
    Похожие предложения
    3-к кв. Татарстан, Лаишевский район, Столбищенское с/пос, с. Усады ул. ... - Фото 1
    3-к кв. Татарстан, Лаишевский район, Столбищенское с/пос, с. Усады ул. ... - Фото 2
    3-комнатная квартира, общая площадь 72м², жилая 45м²

    Уникальные предложения для 4 очереди ЖК Южный парк:1. Скидка с каждого квадратного метра при 100 оплате.2. Выгода до на квартиры с дизайнерским ремонтом. ЖК Южный парк — это масштабный жилой микрорайон на земельном участке 36 га, расположенный всего...
    • 72 м²
    • 3-ком
    • 1/19 эт.
    10 032 000 Р
    Агент
    +7 (986) Показать номер
    Посмотреть контакты
    2-к кв. Татарстан, Лаишевский район, Столбищенское с/пос, с. Усады ул. ... - Фото 1
    2-к кв. Татарстан, Лаишевский район, Столбищенское с/пос, с. Усады ул. ... - Фото 2
    2-комнатная квартира, общая площадь 65м², жилая 22м², кухня 21м²

    Продается 2 Евро-комнатная квартира 167 площадью 65,39 кв.м на 3 этаже в строящемся доме проекта Новый свет компании Ак Барс Дом . ЖК НОВЫЙ СВЕТ это современный малоэтажный жилой комплекс в Лаишевском районе. ПРЕИМУЩЕСТВА: 4-этажный монолитно-кирпичный...
    • 65 м²
    • 2-ком
    • 3/4 эт.
    10 397 010 Р
    Агент
    +7 (962) Показать номер
    Посмотреть контакты
    2-к кв. Татарстан, Лаишевский район, Столбищенское с/пос, с. Усады ул. ... - Фото 1
    2-к кв. Татарстан, Лаишевский район, Столбищенское с/пос, с. Усады ул. ... - Фото 2
    2-комнатная квартира, общая площадь 64м², жилая 22м², кухня 21м²

    Продается 2 Евро-комнатная квартира 160 площадью 64,88 кв.м на 2 этаже в строящемся доме проекта Новый свет компании Ак Барс Дом . ЖК НОВЫЙ СВЕТ это современный малоэтажный жилой комплекс в Лаишевском районе. ПРЕИМУЩЕСТВА: 4-этажный монолитно-кирпичный...
    • 64 м²
    • 2-ком
    • 2/4 эт.
    10 315 920 Р
    Агент
    +7 (962) Показать номер
    Посмотреть контакты
    2-к кв. Татарстан, Лаишевский район, Столбищенское с/пос, с. Усады ул. ... - Фото 1
    2-к кв. Татарстан, Лаишевский район, Столбищенское с/пос, с. Усады ул. ... - Фото 2
    2-комнатная квартира, общая площадь 63м², жилая 27м², кухня 13м²

    Продается 2-комнатная квартира 104 площадью 63,8 кв.м на 1 этаже в строящемся доме проекта Новый свет компании Ак Барс Дом . ЖК НОВЫЙ СВЕТ это современный малоэтажный жилой комплекс в Лаишевском районе. ПРЕИМУЩЕСТВА: 4-этажный монолитно-кирпичный...
    • 63 м²
    • 2-ком
    • 1/4 эт.
    9 889 000 Р
    Агент
    +7 (962) Показать номер
    Посмотреть контакты
    2-к кв. Татарстан, Лаишевский район, Столбищенское с/пос, с. Усады ул. ... - Фото 1
    2-к кв. Татарстан, Лаишевский район, Столбищенское с/пос, с. Усады ул. ... - Фото 2
    2-комнатная квартира, общая площадь 67м², жилая 22м², кухня 21м²

    Продается 2 Евро-комнатная квартира 138 площадью 67,66 кв.м на 1 этаже в строящемся доме проекта Новый свет компании Ак Барс Дом . ЖК НОВЫЙ СВЕТ это современный малоэтажный жилой комплекс в Лаишевском районе. ПРЕИМУЩЕСТВА: 4-этажный монолитно-кирпичный...
    • 67 м²
    • 2-ком
    • 1/4 эт.
    10 351 980 Р
    Агент
    +7 (962) Показать номер
    Посмотреть контакты

    Не нашли подходящего объявления?

    Оставьте заявку, и наши риэлторы подберут квартиру в новостройке в районе

    (0)