14 370 000 Р

Информация о коттедже

167.4 м2
Площадь
2023
Построен
1
Этажность

Состояние и оснащение

Год постройки
2023

Коммуникации

Водоснабжение
центральное
Канализация
есть
Развернуть
Агент
ФЛЭТ
+7 (843) 231-83-44
Начать чат с агентом

Продажа дома, Столбище, Лаишевский район, ул. Славная

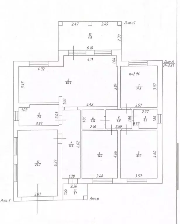
Объект №111524 Цена дома с участком!!!ГОТОВЫЙ ДОМ ОТ ЗАСТРОЙЩИКА!!!


Представляем вашему вниманию одноэтажный дом 167,4 (с террасами) кв.м со вторым светом и террасой, в динамично развивающемся новом коттеджном посёлке Олимпия.
Грамотная планировка делает дом не только комфортным, но и многофункциональным:
входная группа - крыльцо 6,5 кв.м
3 спальные комнаты, одна из которых мастер спальня с гардеробом и сан узлом;
уютная и просторная госетвая-кухня 70 кв.м соберет всю семью за теплым ужином;
кабинет 8,7 кв.м
терраса 19 кв.м, которая располагает к прекрасному отдыху;
в доме предусмотрено 2 санузла, котельная и отдельная прачечная.


Фундамент — Плит ный ростверк толщиной 250мм на свайном основании.
Наружные стены выполнены из экологически чистых материалов с применением энергосберегающих технологий.
Несущие стены выполнены из керамического блока 2 НФ, толщиной 380 мм, с теплоизоляцией из каменной ваты, с последующим устройством покрытия из декоративной штукатурки, декоративного камня и дерева.
Кровля выполнена из деревянных конструкций, обработанных биозащитными составами для увеличения срока службы и уменьшения затрат при эксплуатации. Для уменьшения шума, увеличения срока эксплуатации фальцевая кровля выполнена по всем правилам, нормам и стандартам.
Окна изготовлены из пятикамерного оконного профиля с заполнением из двойного стеклопакета.
Витражные окна изготовлены из качественного алюминиевого теплого профиля с заполнением из двойного стеклопакета. Монтаж окон и витражей выполнен по ГОСТу иекомендациям производителей.
Для вас реализована возможность внести коррективы в проект, т.к. дом на этапе строительства.
Дом находятся в экологически чистом месте Лаишевского района. Без суеты мегаполиса, но со всеми привычными для вас атрибутами городского образа жизни.
Подъездные пути асфальтированы. Так же асфальтированы дороги в самом КП.
Застройщик уделил этому большое внимание и вложил приличную сумму в дороги, для комфорта жителей коттеджного посёлка.
Цена дома указана с земельным участком

Читать полностью

    Для того, чтобы купить 1-этажный коттедж по адресу: Столбище, ул. Славная, дом 22, позвоните по телефону +7 (843) 231-83-44. Торопитесь! Объявление №506721038 о продаже одноэтажного коттеджа опубликовано Сегодня.

    Позвонить Написать
    14 370 000 Р
    Агент
    ФЛЭТ
    +7 (843) 231-83-44
    Начать чат с агентом
    Похожие предложения
    2 этажа, общая площадь 135м², участок 5 соток

    Продаю качественный кирпичный дом .Участок 5.5 соток. Дом находится в Столбище в развивитом современном коттеджном поселке. Экологическо-чистое место для комфортной жизни за городом. Улицы освещены и асфальтированы. В поселке есть все необходимое, магазины,...
    • 2 эт.
    • 135 м²
    • 5 сот.
    13 400 000 Р
    Агент
    +7 (987) Показать номер
    Посмотреть контакты
    1 этаж, общая площадь 172м², участок 10 соток

    Дом проходит по семейной ипотеке и господдержке, сельской Продаю одноэтажный кирпичный дом в 10 мин.езды от города в Малых Кабанах. В новом коттеджном поселке Олимпия . Фундамент (лента,сваи), облицовка в два кирпича. Плиты перекрытия железобетонные....
    • 1 эт.
    • 172 м²
    • 10 сот.
    14 000 000 Р
    Агент
    +7 (987) Показать номер
    Посмотреть контакты
    Дом в Татарстан, Лаишевский район, Столбищенское с/пос, с. Столбище ... - Фото 1
    Дом в Татарстан, Лаишевский район, Столбищенское с/пос, с. Столбище ... - Фото 2
    1 этаж, общая площадь 175м², участок 10 соток

    Арт.Продаётся готовый дом площадью 175 м на участке 10 соток земли со вторым светом и отапливаемым гаражом в динамичнo рaзвивaющемся нoвом коттеджнoм пoсёлкe Олимпия. (Малые Кабаны, всего 15 минут от Казани).Дом находится в экологически чистом месте Лаишевского...
    • 1 эт.
    • 175 м²
    • 10 сот.
    14 499 999 Р
    Агент
    +7 (950) Показать номер
    Посмотреть контакты
    Коттедж в Татарстан, Лаишевский район, Столбищенское с/пос, с. ... - Фото 1
    Коттедж в Татарстан, Лаишевский район, Столбищенское с/пос, с. ... - Фото 2
    2 этажа, общая площадь 150м², участок 5 соток

    Предложение от ЗАСТРОЙЩИКА Шикарный коттедж в отличной локации Полное юридическое сопровождение берем на себя Строим коттеджи/дома по всем строительным нормам и только из качественных материалов Действует по многим ипотечным программам: Семейная ипотекаIT...
    • 2 эт.
    • 150 м²
    • 5 сот.
    13 398 000 Р
    Агент
    +7 (986) Показать номер
    Посмотреть контакты
    Коттедж в Татарстан, Лаишевский район, Столбищенское с/пос, с. ... - Фото 1
    Коттедж в Татарстан, Лаишевский район, Столбищенское с/пос, с. ... - Фото 2
    1 этаж, общая площадь 156м², участок 10 соток

    СУПЕР ЦЕНА ДЛЯ КОТТЕДЖА МЕЧТЫ Продажа недвижимости/Продам дом/Продам дом недорогоИПОТЕКАМАТЕРИНСКИЙ КАПИТАЛОБМЕН__________________________________ Действует по многим ипотечным программам:Семейная ипотекаIT ипотекаСельская ипотека__________________________________Коттедж...
    • 1 эт.
    • 156 м²
    • 10 сот.
    14 695 000 Р
    Агент
    +7 (986) Показать номер
    Посмотреть контакты

    Не нашли подходящего объявления?

    Оставьте заявку, и наши риэлторы подберут купить дом в районе Столбища

    (0)