12 940 000 Р

Информация о коттедже

138.8 м2
Площадь
2024
Построен
1
Этажность

Состояние и оснащение

Год постройки
2024

Коммуникации

Водоснабжение
центральное
Канализация
есть
Развернуть
Агент
ФЛЭТ
+7 (843) 231-83-44
Начать чат с агентом

Продажа дома, Столбище, Лаишевский район, ул. Славная

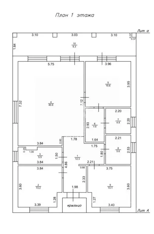
Объект №110701 ГОТОВЫЙ ДОМ ОТ ЗАСТРОЙЩИКА!!!Представляем вашему вниманию одноэтажный дом 138,8 кв.м (с террасой) со вторым светом и террасой, в динамично развивающемся новом коттеджном посёлке Олимпия.
Грамотная планировка делает дом не только комфортным, но и многофункциональным:
входная группа - крыльцо 6,5 кв.м
3 спальные комнаты, одна из которых мастер спальня с гардеробом и сан узлом;
уютная и просторная госетвая-кухня 37 кв.м соберет всю семью за теплым ужином;
терраса 27 кв.м, которая располагает к прекрасному отдыху;
в доме предусмотрено 2 санузла, котельная и отдельная прачечная.


Фундамент — Плитный ростверк толщиной 250мм на свайном основании.
Наружные стены выполнены из экологически чистых материалов с применением энергосберегающих технологий.
Несущие стены выполнены из керамического блока 2 НФ, толщиной 380 мм, с теплоизоляцией из каменной ваты, с последующим устройством покрытия из декоративной штукатурки, декоративного камня и дерева.
Кровля выполнена из деревянных конструкций, обработанных биозащитными составами для увеличения срока службы и уменьшения затрат при эксплуатации. Для уменьшения шума, увеличения срока эксплуатации фальцевая кровля выполнена по всем правилам, нормам и стандартам.
Окна изготовлены из пятикамерного оконного профиля с заполнением из двойного стеклопакета.
Витражные окна изготовлены из качественного алюминиевого теплого профиля с заполнением из двойного стеклопакета. Монтаж окон и витражей выполнен по ГОСТу и рекомендациям производителей.
Для вас реализована возможность внести коррективы в проект, т.к. дом на этапе строительства.
Дом находятся в экологически чистом месте Лаишевского района. Без суеты мегаполиса, но со всеми привычными для вас атрибутами городского образа жизни.
Подъездные пути асфальтированы. Так же асфальтированы дороги в самом КП.
Застройщик уделил этому большое внимание и вложил приличную сумму в дороги, для комфорта жителей коттеджного посёлка.
Построим вам такой же на вашем участке.

Читать полностью

    Для того, чтобы купить 1-этажный коттедж по адресу: Столбище, ул. Славная, позвоните по телефону +7 (843) 231-83-44. Торопитесь! Объявление №506717771 о продаже одноэтажного коттеджа опубликовано Вчера.

    Позвонить Написать
    12 940 000 Р
    Агент
    ФЛЭТ
    +7 (843) 231-83-44
    Начать чат с агентом
    Похожие предложения в Столбище
    Дом в Татарстан, Лаишевский район, Столбищенское с/пос, с. Столбище ... - Фото 1
    Дом в Татарстан, Лаишевский район, Столбищенское с/пос, с. Столбище ... - Фото 2
    1 этаж, общая площадь 135м², участок 10 соток

    Кирпичный дом 135 м с террасой, котельной, гардеробной и 2 мя санузлами, на участке ИЖС 10 сот. С готовыми отмостками.Указана реальная цена за дом с участком.Продажа недвижимости/Продам дом/ Продам коттедж Ипотека сельская семейная и IT МАТЕРИНСКИЙ...
    • 1 эт.
    • 135 м²
    • 10 сот.
    12 200 000 Р
    Агент
    +7 (951) Показать номер
    Посмотреть контакты
    Дом в Татарстан, Лаишевский район, Столбищенское с/пос, с. Столбище ... - Фото 1
    Дом в Татарстан, Лаишевский район, Столбищенское с/пос, с. Столбище ... - Фото 2
    1 этаж, общая площадь 145м², участок 10 соток

    Предложение от ЗАСТРОЙЩИКА Без комиссий и переплат Полное юридическое сопровождение берем на себя Строим коттеджи/дома по всем строительным нормам и только из качественных материаловПри покупке/строительстве недвижимости от нашей Компании Вы получаете:...
    • 1 эт.
    • 145 м²
    • 10 сот.
    12 995 000 Р
    Агент
    +7 (986) Показать номер
    Посмотреть контакты
    Коттедж в Татарстан, Лаишевский район, Столбищенское с/пос, с. ... - Фото 1
    Коттедж в Татарстан, Лаишевский район, Столбищенское с/пос, с. ... - Фото 2
    2 этажа, общая площадь 150м², участок 5 соток

    Предложение от ЗАСТРОЙЩИКА Шикарный коттедж в отличной локации Полное юридическое сопровождение берем на себя Строим коттеджи/дома по всем строительным нормам и только из качественных материалов Действует по многим ипотечным программам: Семейная ипотекаIT...
    • 2 эт.
    • 150 м²
    • 5 сот.
    13 398 000 Р
    Агент
    +7 (986) Показать номер
    Посмотреть контакты
    Коттедж в Татарстан, Лаишевский район, Столбищенское с/пос, с. ... - Фото 1
    Коттедж в Татарстан, Лаишевский район, Столбищенское с/пос, с. ... - Фото 2
    1 этаж, общая площадь 140м², участок 10 соток

    Кирпичный дом площадь 140 м с мастер -спальней на участке 10 сот. ИЖСПродажа напрямую от застройщика. Прямой договор без комиссий. Выполнен по надежному проекту с расчетом всех нагрузок (есть фото и видео всех этапов строительства)Продам новый одноэтажный...
    • 1 эт.
    • 140 м²
    • 10 сот.
    12 300 000 Р
    Агент
    +7 (951) Показать номер
    Посмотреть контакты
    Дом в Столбище, улица Маяковского, 6 (123.7 м) - Фото 1
    Дом в Столбище, улица Маяковского, 6 (123.7 м) - Фото 2
    1 этаж, общая площадь 123м²

    Объект №116325 Дом у озера Проходит по семейной и it-ипотеке.Отделка предчистовая.Газ, электричество, канализация - все коммуникации подключены.
    • 1 эт.
    • 123 м²
    13 100 000 Р
    Агент
    +7 (919) Показать номер
    Посмотреть контакты

    Не нашли подходящего объявления?

    Оставьте заявку, и наши риэлторы подберут купить дом в районе Столбища

    (0)