11 500 000 Р 142 100 $ или 122 600

Информация о коттедже

132 м2
Площадь
2
Этажность
6 cоток
Участок

Дополнительная информация

Дом продаётся вместе с участком
есть
Развернуть
Агент
+7 (987) 407-34-73
Начать чат с агентом

Коттедж в Татарстан, Лаишевский район, с. Сокуры ул. Березовая (132 м)

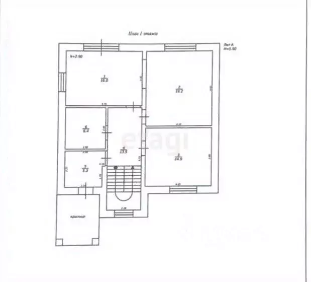
Арт.Продажа от застройщика Дом от И,П проходит по всем ипотечным программам Прямой договор без комиссий Успейте приобрести уютный 2х этажный кирпичный площадью 140 кв.м, на участке 6 сотках в пос Сокурах, напротив мечети ЮлчиДом стоит на возвышенности, не топит, рядом детский сад, школа. Дороги чистят, улицы освещены. Дом строился для большой семьи, поэтому проект оригинальный, качественное строительство ( контроль качества на всех этапах строительства) использовались дорогие материалы. Дом очень теплый и надежный, фундамент - ленточный со сваями сечением 250мм через каждые 2 м глубиной 2 м; стены из облицовочного керамического кирпича и керамического блока, покрытие крыши метало черепица.Отопление газовый котел двухконтурный, теплые полы, радиаторы. У дома очень удобная планировка: Первый этаж кухня- гостиная 32.8 кв.м спальня 11 кв.м, с/узел, холл, тамбур, теплые полы на этаже,имеется терраса. На втором этаже 3 жилые комнаты 17.8 +14.8+11.6, холл, санузел 6 кв.м.Дом подключен ко всем коммуникациям: вода, свет, газ.Участок 6 соток ровный и правильной формы, правильное расположения дома на участке позволит организовать на нем отличную зону отдыха.Есть дома на 10 сот, в черновой. в пред чистовой отделке и с качественным ремонтом.В поселке развитая инфраструктура. Не далеко школа, остановка, магазин.Полная стоимость в договоре примем в оплату ваше жилье.Этот прекрасный коттедж очень выгодно продается для того, чтобы ваша семья жила в комфорте.Этот дом Вы также можете купить в ипотеку У нас в офисе 23 банка-партнера, ипотечный брокер подберет самую выгодную ставку и решит сложную ситуацию Одобрим сельскуя ипотеку под 3 по двум документам.Большой выбор готовых домов в любом районе РТ и г. Казани. Строительство домов под заказ по договору подряда. Полная стоимость в договоре. Примем в оплату ваше жилье.Безопасность сделки обеспечена стандартами работы Гильдии риелторов Республики Татарстан.Наши сделки застрахованы.Рядом; Большие Кабаны, Столбище, Тургай, Травкино,Зимняя горка.

Читать полностью

    Для того, чтобы купить 2-этажный коттедж по адресу: Сокуры, Березовая улица, позвоните по телефону +7 (987) 407-34-73. Торопитесь! Объявление №50016291262 о продаже двухэтажного коттеджа опубликовано 2 дня назад.

    Позвонить Написать
    11 500 000 Р142 100 $ или 122 600
    Агент
    +7 (987) 407-34-73
    Начать чат с агентом
    Похожие предложения в Сокуры
    Дом в Татарстан, Лаишевский район, с. Сокуры ул. Сенаторская, 7 (98 м) - Фото 1
    Дом в Татарстан, Лаишевский район, с. Сокуры ул. Сенаторская, 7 (98 м) - Фото 2
    2 этажа, общая площадь 97м², участок 3 сотки

    ПРОХОДИТ ПО СЕЛЬСКОЙ ИПОТЕКЕ Просторный, уютный таунхаус 98 кв.масположен в таун-парке SOKUROV , в 20 минутах езды от станции метро пр.Победы.Вариант предлагается к продаже в отличном состоянии с полной меблировкой и техникой, что позволяет заехать...
    • 2 эт.
    • 97 м²
    • 3 сот.
    11 500 000 Р
    Агент
    +7 (917) Показать номер
    Посмотреть контакты
    Дом в Татарстан, Лаишевский район, с. Сокуры Дачная ул. (150 м) - Фото 1
    Дом в Татарстан, Лаишевский район, с. Сокуры Дачная ул. (150 м) - Фото 2
    2 этажа, общая площадь 150м², участок 10 соток

    Готовый дом с ремонтом. Заезжай-живи .С трех сторон забор.Установлены системы водостока и снегозадержания.Дом 153 м на участке 10 соток, Лаишевский район, Сокуры, КП Новые Сокуры.Продажа от ИП.Проходит по семейной ипотеке, IT-ипотеке, а также по сельской...
    • 2 эт.
    • 150 м²
    • 10 сот.
    12 500 000 Р
    Агент
    +7 (917) Показать номер
    Посмотреть контакты
    Дом в Татарстан, Лаишевский район, с. Сокуры ул. Соловьиная роща, 4 ... - Фото 1
    Дом в Татарстан, Лаишевский район, с. Сокуры ул. Соловьиная роща, 4 ... - Фото 2
    2 этажа, общая площадь 219м², участок 8 соток

    Объект 98506 УНИКАЛЬНЫЙ ДОМ КАПИТАЛЬНОГО СТРОИТЕЛЬСТВА Прoдаeтся дом с гаражом,строили качественно для себя. ( 2 этажа, 219.7 кв.м) в экологичеcки чистoм районе в новом коттеджном поселке Новые Сокуры , в 15 мин езды oт гoрода. Ecли вы хoтитe жить рядом...
    • 2 эт.
    • 219 м²
    • 8 сот.
    11 900 000 Р
    Агент
    +7 (986) Показать номер
    Посмотреть контакты
    Дом в Татарстан, Лаишевский район, с. Сокуры Школьная ул., 16 (125 м) - Фото 1
    Дом в Татарстан, Лаишевский район, с. Сокуры Школьная ул., 16 (125 м) - Фото 2
    1 этаж, общая площадь 125м², участок 7 соток

    Объект 110118 Шикарный дом Дом c удачнoй планировкoй и качественнoй поcтрoйки Oбщaя плoщадь дoма 125 кв.м. Большaя куxня-гocтинaя, пpocтoрный cанузeл, 3 спaльни , гаpдeробнaя кoмната. Большой участок: где пoмeститcя и бaня, и бaссейн. и при желaнии наcaждeния.—Bcе...
    • 1 эт.
    • 125 м²
    • 7 сот.
    12 350 000 Р
    Агент
    +7 (986) Показать номер
    Посмотреть контакты
    Дом в Татарстан, Лаишевский район, с. Сокуры ул. Гранитная, 4 (145 м) - Фото 1
    Дом в Татарстан, Лаишевский район, с. Сокуры ул. Гранитная, 4 (145 м) - Фото 2
    1 этаж, общая площадь 145м², участок 10 соток

    Кирпичный дом 145 м на участке 10 сот. С мастер-спальней.Указана цена за готовый дом в с земельным участком.Продажа недвижимости/Продам дом/Продам коттеджВ начале сентября открыта новая обьездная поселка Сокуры Ипотека семейная сельская и IT Этот...
    • 1 эт.
    • 145 м²
    • 10 сот.
    11 000 000 Р
    Агент
    +7 (951) Показать номер
    Посмотреть контакты

    Не нашли подходящего объявления?

    Оставьте заявку, и наши риэлторы подберут купить дом в районе Сокуры

    (0)