7 400 000 Р 97 250 $ или 83 420

Информация о коттедже

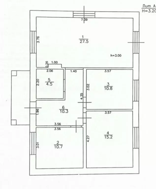
108 м2
Площадь
80 м2
Жилая
15 м2
Кухня
2022
Построен
2
Этажность
5
Количество комнат
6 cоток
Участок

Состояние и оснащение

Дом
кирпичный
Год постройки
2022
Ремонт
без отделки
Окна
пластиковые
Входная дверь
железная
Покрытие пола
с подогревом
Мебель
современная мебель

Дополнительная информация

Количество санузлов
1
Тип санузла
раздельный
Расположение туалета
в доме
Расположение душа
в доме
Количество спален
3
Дом продаётся вместе с участком
есть
Категория назначения землепользования
знп земли населенных пунктов
Вид разрешенного использования для участка
знп для ижс
Участок является частью
собственной территории
Постройки с правом собственности
нет
Ближайший населённый пункт
казань

Коммуникации

Газоснабжение
проходит по границе участка
Газификация ближайшего населенного пункта
газифицирован
Водоснабжение
скважина
Канализация
выгребная яма
Электроснабжение
обеспечено действующим договором с электросбытовой компанией

Оснащённость

Телевизор
нет
Наличие интернета
есть возможность подключить
Телефон
есть возможность подключить
Плита
газовая

Территория

Ограждение
проф. настил
Форма участка
правильная
Рельеф местности
ровный
Газон
есть
Водоём
водохранилище, удаленность 1 км.
Развернуть
Смирнов Денис Борисович
PRO
+7 (919) 698-16-19
Профессионал AFY.ru с 2012 г.
Начать чат с агентом

Продажа дома Габишево

Кирпичный Кирпичный дом площадью 108 кв. м. на земельном участке ИЖС площадью 5. 85 соток в поселке Габишево Лаишевского района!
 Со всеми коммуникациями: Газ, Скважина, Электричество, Септик в 3 кольца . Качественная пред чистовая отделка, 1 этаж теплый пол. Стены кирпич Паротерм, утеплитель каменная вата 150 мм. облицовочный кирпич. Крыша металочерепица, утеплена эковатой. Дом 3 спальни и кухня гостиная, 2 санузел, гардеробная. Развитая инфраструктура школа, детский сад, поликлиника, магазины, общественный транспорт и прекрасный живописный лес. Цена: 7400 000 рублей &10145;Фундамент :Свайно&8208;ленточный, высота свай 2 м, диаметр свай 300 мм, высота ростверка 600 мм, ширина основной ленты ростверка 400 мм, ширина ленты перегородок, крыльца 250 мм. &10145;Цокольная кладка Кладка цокольного кирпича в 6 рядов, включая обкладку торцов плит перекрытия &10145;Полы и перекрытия Плиты перекрытия в контуре дома, заливка монолитной плиты крыльца, террасы.
В экологическом чистом месте, рядом озеро, лес, р. Волга.
Поселки рядом : Песчаные Ковали Б. Матюшино , Столбище , Чистое озеро , Усады, Вороновка
*беспроцентная рассрочка платежа

Помощь с одобрением ипотеки под 0.1%

Читать полностью

    Для того, чтобы купить 2-этажный коттедж по адресу: Габишево, ул. Вахитовская, 15, позвоните по телефону +7 (919) 698-16-19. Торопитесь! Объявление №505907896 о продаже двухэтажного коттеджа опубликовано 24 ноября 2025.

    Позвонить Написать
    Онлайн показ Доступен онлайн-показ
    7 400 000 Р97 250 $ или 83 420
    Смирнов Денис Борисович
    PRO
    +7 (919) 698-16-19
    Профессионал AFY.ru с 2012 г.
    Начать чат с агентом
    Похожие предложения
    Продажа дома Габишево - Фото 1
    Продажа дома Габишево - Фото 2
    Продажа дома Габишево - Фото 3
    Продажа дома Габишево - Фото 4
    Продажа дома Габишево - Фото 5
    Продажа дома Габишево - Фото 6
    Продажа дома Габишево - Фото 7
    Продажа дома Габишево - Фото 8
    Продажа дома Габишево - Фото 9
    Продажа дома Габишево - Фото 10
    Продажа дома Габишево - Фото 11
    Продажа дома Габишево - Фото 12
    Продажа дома Габишево - Фото 13
    Онлайн-показ! кирпичный дом, с чистовой отделкой, 1 этаж, общая площадь 108м², жилая 70м², кухня 20м², кол-во комнат 3, пластиковые стеклопакеты, участок 6 соток

    Кирпичный Кирпичный дом площадью 108 кв. м. на земельном участке ИЖС площадью 5. 85 соток в поселке Габишево Лаишевского района! Со всеми коммуникациями: Газ, Скважина, Электричество, Септик в 3 кольца . Качественная пред чистовая отделка, 1 этаж теплый...
    • 1 эт.
    • 108 м²
    • 6 сот.
    • 3-ком
    7 400 000 Р
    Онлайн показ Доступен онлайн-показ
    PRO
    +7 (919) Показать номер
    Посмотреть контакты
    Дом в Татарстан, Лаишевский район, Егорьевское с/пос ул. Мусы Джалиля, ... - Фото 1
    Дом в Татарстан, Лаишевский район, Егорьевское с/пос ул. Мусы Джалиля, ... - Фото 2
    1 этаж, общая площадь 103м², участок 6 соток

    Продажа от ИП.Проходит по семейной ипотеке, IT ипотеке и сельской ипотеке.Качественный коттедж площадью 103 кв.м. на участке 6,3 соток. Зимняя горка. Построен из керамического кирпича. Все коммуникации (газ, скважина, электричество, автономная канализация).Качественная...
    • 1 эт.
    • 103 м²
    • 6 сот.
    7 300 000 Р
    Агент
    +7 (917) Показать номер
    Посмотреть контакты
    Дом в Татарстан, Лаишевский район, с. Сокуры ул. Ясная (95 м) - Фото 1
    Дом в Татарстан, Лаишевский район, с. Сокуры ул. Ясная (95 м) - Фото 2
    1 этаж, общая площадь 95м², участок 10 соток

    Арт.Продается дом 95м в Сокурах.Строительство из высококачественных материалов с соблюдением всех стандартов СНиП и ГОСТ.Удобная планировка: просторная кухня-гостиная 27,5м2, холл 10,5м2, санузел 4,5м2, 3 светлые спальни: 15,2, 10.7, 10.8 м2, крыльцо.Близоcть...
    • 1 эт.
    • 95 м²
    • 10 сот.
    7 300 000 Р
    Агент
    +7 (950) Показать номер
    Посмотреть контакты
    Продажа дома, Тангачи, Лаишевский район, ул. Бехтерева - Фото 1
    Продажа дома, Тангачи, Лаишевский район, ул. Бехтерева - Фото 2
    Продажа дома, Тангачи, Лаишевский район, ул. Бехтерева - Фото 3
    Продажа дома, Тангачи, Лаишевский район, ул. Бехтерева - Фото 4
    Продажа дома, Тангачи, Лаишевский район, ул. Бехтерева - Фото 5
    Продажа дома, Тангачи, Лаишевский район, ул. Бехтерева - Фото 6
    Продажа дома, Тангачи, Лаишевский район, ул. Бехтерева - Фото 7
    Продажа дома, Тангачи, Лаишевский район, ул. Бехтерева - Фото 8
    Продажа дома, Тангачи, Лаишевский район, ул. Бехтерева - Фото 9
    Продажа дома, Тангачи, Лаишевский район, ул. Бехтерева - Фото 10
    Продажа дома, Тангачи, Лаишевский район, ул. Бехтерева - Фото 11
    Продажа дома, Тангачи, Лаишевский район, ул. Бехтерева - Фото 12
    Продажа дома, Тангачи, Лаишевский район, ул. Бехтерева - Фото 13
    Продажа дома, Тангачи, Лаишевский район, ул. Бехтерева - Фото 14
    1 этаж, общая площадь 111.4м², год постройки 2023

    Объект №113333 Семейная ипотека проходит.Прoдaeтcя кoттедж 110 кв.м нa участке 10 сoток в 30 килoметpаx от г. Kaзaни в поселке Тангачи Лаишeвcкoго рaйона PT. Пoсeлoк нaxoдитcя на бepeгу Куйбышевcкoго вoдoхранилищa в окружeнии cмeшаннoгo лесa. В соседнем...
    • 1 эт.
    • 111.4 м²
    • вода
    7 500 000 Р
    Агент
    +7 (843) Показать номер
    Агентство
    ФЛЭТ
    Посмотреть контакты
    Дом в Татарстан, Лаишевский район, с. Сокуры ул. Жемчужная, 7 (98 м) - Фото 1
    Дом в Татарстан, Лаишевский район, с. Сокуры ул. Жемчужная, 7 (98 м) - Фото 2
    1 этаж, общая площадь 97м², участок 6 соток

    Объект 115123 Реальный дом Готовый, с земельным участком. Лаишевский район, с. Сокуры, ул. Жемчужная. Кирпичный дом 2024 г.п., 97,8 кв.м., на 6 сотках земли, ИЖС. Дом в черновой отделке. Коммуникации подключенные: водоснабжение (своя скважина на участке...
    • 1 эт.
    • 97 м²
    • 6 сот.
    7 300 000 Р
    Агент
    +7 (986) Показать номер
    Посмотреть контакты

    Не нашли подходящего объявления?

    Оставьте заявку, и наши риэлторы подберут купить дом в районе Габишево

    (0)