300 000 Р 3 950 $ или 3 370

Информация об помещении

2
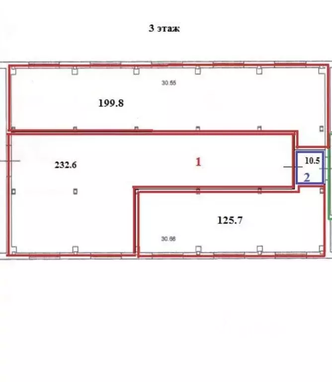
Этаж

Состояние и оснащение

Количество этажей
2
Развернуть
Агент
+7 (987) 403-04-64
Начать чат с агентом

Склад в Татарстан, Казань ул. Лебедева, 1к8 (627 м)

Предлагается в аренду готовое производственно складское помещение 627 м2 по ул.Лебедева в Приволжском районе. Расположено на втором этаже трехэтажного производственно-складского здания.Внутри тепло до 25 градусов Зимой.В помещении центральные коммуникации: отопление, электричество, водоснабжение и канализация.Есть отдельный блок внутри помещения: Туалет, кухня и раздевалка, офисТакже имеется парковка для автомобилей. Помещение имеет открытую планировку и чистовую отделку.Идеально подходит для производства и склада. Высота потолка 3.2 м.Освещение светодиодное и есть естественное освещение. Ровные антипылевые полы в топинге с нагрузкой 800кг/м2.Грузовой лифт на 3 тонны.Оборудован погрузочной рампой, высота 1.2 метраСтоимость за кв.м без НДС, отопление в цене. Номер в базе: J9175

Читать полностью
    Позвонить Написать
    300 000 Р3 950 $ или 3 370
    Агент
    +7 (987) 403-04-64
    Начать чат с агентом
    Похожие предложения
    Склад в Татарстан, Казань Поперечно-Кукушкинская ул., 1 (650 м) - Фото 1
    Склад в Татарстан, Казань Поперечно-Кукушкинская ул., 1 (650 м) - Фото 2
    Характеристики:- Холодный склад- Доступ 24/7- Высота потолков 6 м- Высота ворот 4 м- Напольное покрытие - Бетонный пол (теплый пол на 400 м2)- Максимальная мощность 15 кВт- Подъездные пути под грузовой транспорт, легковой транспорт- Парковка для легкового...
    • 1/1 эт.
    300 000 Р
    Агент
    +7 (917) Показать номер
    Посмотреть контакты
    Склад в Татарстан, Казань ул. Адоратского, 63а (500 м) - Фото 1
    Склад в Татарстан, Казань ул. Адоратского, 63а (500 м) - Фото 2
    Характеристики:- Теплый склад- 2 этаж- Доступ 24/7- ХВС/ГВС- Свой санузел- Центральное отопление- Высота потолков 4 м- Высота ворот 2 м- Напольное покрытие - Бетонный пол- Максимальная мощность 30 кВт- Подъездные пути под грузовой транспорт, легковой...
    • 2/3 эт.
    300 000 Р
    Агент
    +7 (917) Показать номер
    Посмотреть контакты
    Склад в Москва Рябиновая ул., 51АС1 (225 м) - Фото 1
    Склад в Москва Рябиновая ул., 51АС1 (225 м) - Фото 2
    ЛотПредложение от Собственника Сдается в аренду склад с отоплением площадью 225 кв.м. Территориально находится в г. Москва на Рябиновой улице, промзона. Охраняемая и огороженная территория.(круглосуточный, бесплатный въезд) Типовой советский складской...
    • 1/3 эт.
    292 500 Р
    Агент
    +7 (986) Показать номер
    Посмотреть контакты
    Склад в Московская область, Электросталь городской округ, пос. ... - Фото 1
    Склад в Московская область, Электросталь городской округ, пос. ... - Фото 2
    Лот 989249 Предложение от Собственника На территории производственно-складского комплекса вблизи г.Электросталь на Носовихинском шоссе сдается в аренду склад общей площадью 583 кв.м. Склад представляет 1-эт.ОСЗ (утепленный ангар из сэндвич-панелей 10,655...
    • 1/1 эт.
    300 003 Р
    Агент
    +7 (986) Показать номер
    Посмотреть контакты
    Склад в Владимирская область, Ковров ул. Брюсова, 21 (590 м) - Фото 1
    Склад в Владимирская область, Ковров ул. Брюсова, 21 (590 м) - Фото 2
    Предлагаем в аренду производственную базу площадью 589 кв. м. в центре города с удобным подъездом Нежилое здание состоит из двух основных помещений, которые можно арендовать полностью или по отдельности. Так же имеются вспомогательные помещения: кабинеты,...
    • 1/1 эт.
    300 000 Р
    Агент
    +7 (910) Показать номер
    Посмотреть контакты

    Не нашли подходящего объявления?

    Оставьте заявку, и наши риэлторы подберут склад в районе Казани

    (0)