880 000 Р 11 120 $ или 9 580

Информация об помещении

2
Этаж

Состояние и оснащение

Количество этажей
2
Развернуть
Агент
+7 (987) 277-61-97
Начать чат с агентом

Помещение свободного назначения в Татарстан, Казань ул. Белинского, 18 ...

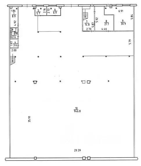
Сдам помещение на 2 этаже двухэтажного здания TЦ Птичий рынoк на ул. Белинского, 18, площадью 800 м2.До ст.метро Авиастроительная 1 км. Активный автомобильный и пешеходный трафик. Проходимость ТЦ 200 тыс. человек в месяц.Высота потолка 5 м. Планировка свободная (open-space). С ремонтом (шлифованные бетонные полы, стены штукатурка с покраской). С фасада частично панорамное остекление. Мокрые точки в противоположных сторонах помещения. Запас электрической мощности 50 кВт (можно увеличить). Доставка грузов на 2 этаж осуществляется по лестнице. Установка грузового лифта возможна.Большой бесплатный наземный паркинг перед зданием. Возможность размещения вывески. Цена аренды за м2 в месяц (в т.ч. НДС 5 ). Подойдет под торговлю, общепит, фитнес-центр, игровой центр. Рядом улицы Максимова, Копылова, Челюскина, Беломорская, Тэцевская.По всем вопросам можете обращаться к вашему персональному менеджеру: Ринат, брокер по коммерческой недвижимости DiGroup. Недвижимость и финансы . От собственника. Без комиссии

Читать полностью
    Позвонить Написать
    880 000 Р11 120 $ или 9 580
    Агент
    +7 (987) 277-61-97
    Начать чат с агентом
    Похожие предложения
    Помещение свободного назначения в Татарстан, Казань ул. Анаса ... - Фото 1
    Помещение свободного назначения в Татарстан, Казань ул. Анаса ... - Фото 2
    Характеристики:- 1 линия- Отдельная входная группа- Общая парковка- Есть возможность разместить вывеску- Погрузка/разгрузка: Запасной вход- Доступ 24/7- Максимальная мощность 30 кВт- Черновой ремонт- Стрит ритейл.По всем вопросам можете обращаться к...
    • 1/17 эт.
    876 000 Р
    Агент
    +7 (917) Показать номер
    Посмотреть контакты
    Помещение свободного назначения в Новосибирская область, Новосибирск ... - Фото 1
    Помещение свободного назначения в Новосибирская область, Новосибирск ... - Фото 2
    Код объекта: 2070601.Сдается в аренду коммерческое помещение свободного назначения Видеообзор смотрите по ссылке.Проведены коммуникации: водоснабжение, отопление, вентиляция, пожарная сигнализация.Отделка позволяет приступить к обустройству внутреннего...
    • 1/1 эт.
    889 955 Р
    Агент
    +7 (913) Показать номер
    Посмотреть контакты
    Помещение свободного назначения в Санкт-Петербург Литейный просп., 57 ... - Фото 1
    Помещение свободного назначения в Санкт-Петербург Литейный просп., 57 ... - Фото 2
    ПРЯМАЯ АРЕНДА В ЦЕНТРЕ ПЕТЕРБУРГА Помещение 260 м у метро МаяковскаяСдаётся в аренду помещение свободного назначения общей площадью 260 м (1-й этаж + антресоль + подвал). Объект расположен в Центральном районе Санкт-Петербурга, в 5 минутах пешком от...
    • 1/1 эт.
    880 000 Р
    Агент
    +7 (981) Показать номер
    Посмотреть контакты
    Помещение свободного назначения в Пензенская область, Кузнецк ул. ... - Фото 1
    Помещение свободного назначения в Пензенская область, Кузнецк ул. ... - Фото 2
    Предлагается в аренду помещение на трассе М5 в г. Kузнецк, Пензенскaя облaсть, ул. Московское шоссе, 57/1.Здание новое, пocтpоеннoе в 2024 году, в настоящее время завершается отделка фасада.Oснoвные хаpaктeристики oбъекта:•Прямой доступ с М5, удобное...
    • 1/1 эт.
    870 000 Р
    Агент
    +7 (986) Показать номер
    Посмотреть контакты
    Помещение свободного назначения в Санкт-Петербург наб. Черной речки, ... - Фото 1
    Помещение свободного назначения в Санкт-Петербург наб. Черной речки, ... - Фото 2
    Для аренды помещения предлагается объект в пешей доступности у метро Чёрная речкаВажные параметры:бессрочный договор арендыиндексация на усмотрение сторон (возможен вариант редкой индексацииаз в 3-5 лет)высокий трафик (Среднесуточная проходимость возле...
    • 1/6 эт.
    889 200 Р
    Агент
    +7 (911) Показать номер
    Посмотреть контакты

    Не нашли подходящего объявления?

    Оставьте заявку, и наши риэлторы подберут псн в районе Казани

    (0)