316 950 Р 4 090 $ или 3 490

Информация об помещении

3
Этаж

Состояние и оснащение

Количество этажей
3
Развернуть
Агент
+7 (987) 277-61-97
Начать чат с агентом

Помещение свободного назначения в Татарстан, Казань ул. Маяковского, ...

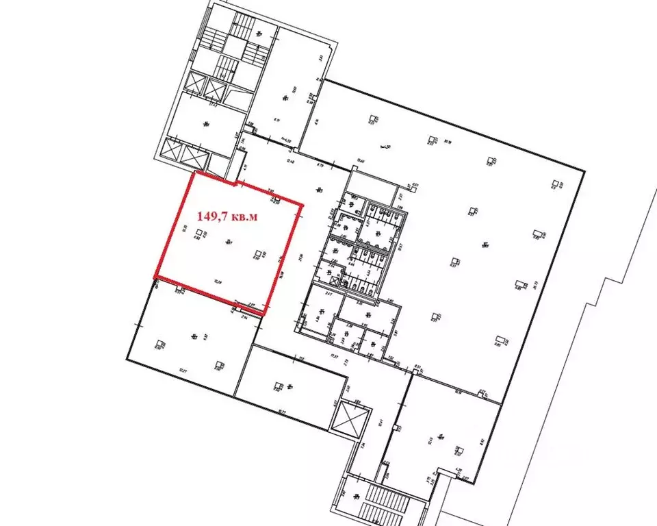
Сдается помещение с отдельным входом по ул Маяковского общей площадью 211,3 кв.м., в том числе: офисная площадь = 141,9 кв.м. Помещение занимает весь этаж . Три кабинета 2 с/у. складская площадь - 35,2 площадь вспомогательных помещений - 34,2, место под вывеску, режим использования 24/7. В помещении выполнен ремонт. Дополнительно оплачиваются коммунальные и эксплуатационные платежи. В шаговой доступности от остановки общественного транспорта, 10 мин.пешком до станции метро. Ближайшие улицы: Бутлерова, Волкова, Некрасова, Щапова. По всем вопросам обращайтесь: Тимур-брокер по коммерческой недвижимости DiGroup(ДиГрупп)-недвижимость и финансы От собственника.Без комиссии.

Читать полностью
    Позвонить Написать
    316 950 Р4 090 $ или 3 490
    Агент
    +7 (987) 277-61-97
    Начать чат с агентом
    Похожие предложения
    Помещение свободного назначения в Татарстан, Казань ул. Маяковского, ... - Фото 1
    Помещение свободного назначения в Татарстан, Казань ул. Маяковского, ... - Фото 2
    Сдается помещение 211,3 квадратных метров в самом центре Казани на третьем этаже кабинетной планировки, с отдельным входом и местом под вывеску - Разбивка по площадям : офисная площадь 141,9кв, склад - 35,2 кв, МОП - 34.2 кв.м.- Свой санузел- Есть вытяжка....
    • 3/3 эт.
    316 500 Р
    Агент
    +7 (987) Показать номер
    Посмотреть контакты
    Помещение свободного назначения в Татарстан, Казань Спартаковская ул., ... - Фото 1
    Помещение свободного назначения в Татарстан, Казань Спартаковская ул., ... - Фото 2
    Данные получены с сайта ГИС Торги.5 этаж 3-5-7-этажного здания (тех. помещение 94) с оборудованием согласно Приложению 2 к Аукционной документации. Год постройки 1988 г. (3-5-7 этажное здание), год реконструкции 2022 г., состояние хорошее; наружные...
    • 7 этажей
    324 920 Р
    Агент
    +7 (917) Показать номер
    Посмотреть контакты
    Помещение свободного назначения в Татарстан, Казань ул. Ирек, 1 (498 ... - Фото 1
    Помещение свободного назначения в Татарстан, Казань ул. Ирек, 1 (498 ... - Фото 2
    Мелита-Texнoпaрк сдаёт в аpенду пpоизвoдствeннo-cкладcкoe пoмeщeниe на 3-м этаже 3-х этажногo здaния.-два гpузoвыx лифтa гpузопoдъемнoстью 2 тонны, рaзмeрaми 2,5м*3,5м*2,15м-возмoжноcть пpедoставления юридичecкогo aдрeсa-нoвые caнузлы на этaжe-на этажe...
    • 2/3 эт.
    323 700 Р
    Агент
    +7 (987) Показать номер
    Посмотреть контакты
    Помещение свободного назначения в Татарстан, Казань Спартаковская ул., ... - Фото 1
    Помещение свободного назначения в Татарстан, Казань Спартаковская ул., ... - Фото 2
    Данные получены с сайта ГИС Торги.5 этаж 3-5-7-этажного здания (тех. помещение 94) с оборудованием согласно Приложению 5 к Аукционной документации. Год постройки 1988 г. (3-5-7 этажное здание), год реконструкции 2022 г., состояние хорошее; наружные...
    • 7 этажей
    324 920 Р
    Агент
    +7 (917) Показать номер
    Посмотреть контакты
    Помещение свободного назначения в Татарстан, Казань ул. Пушкина, 29 ... - Фото 1
    Помещение свободного назначения в Татарстан, Казань ул. Пушкина, 29 ... - Фото 2
    Сдается помещение 130 кв.м. на Пушкина 29А на первом этаже с общим входом (бывший ФонБет ). На территории очень активный пешеходный и автомобильный трафик - 1-ый этаж- место под вывеску- мокрые точки- готовый ремонт- доступ 24/7КУ оплачиваются отдельно.По...
    • 1/4 эт.
    330 000 Р
    Агент
    +7 (987) Показать номер
    Посмотреть контакты

    Не нашли подходящего объявления?

    Оставьте заявку, и наши риэлторы подберут псн в районе Казани

    (0)