31 400 Р 410 $ или 345

Информация об помещении

2
Этаж

Состояние и оснащение

Количество этажей
3
Развернуть
Агент
+7 (903) 388-15-13
Начать чат с агентом

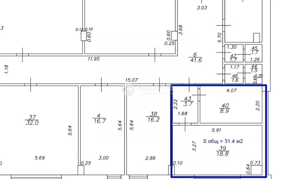
Помещение свободного назначения (31.4 м)

Код объекта: 1994796.Сдаётся помещение свободного назначения по адресу ул.Восстания 100к2060 (Химград)Основные параметры:- Общая площадь 31.4 м2 (18.8 м2 + 8.9 м2 + 3.7 м2);- Евроремонт;- Наличие мокрой точки;- 2-й этаж с высотой потолков h = 4.9 метра;- Функциональная планировка;- С/у на этаже;- Доступ 24/7, вход по пропускам;- Возможность подключения к двум провайдерам для доступа в интернет;- Тёплое здание, в котором обновили все коммуникации;- Асфальтированная парковка вдоль здания, с своевременной “уборкой снега”Локация:- г. Казань, Московский район, ул. Восстания 100к2060 (по Яндекс картам), территория технополиса “Химград”;- Удобный подъездной путь, расположено у въезда на территорию;- До остановки “Васильченко” всего 250 метров;- Безопасность обеспечивается с въезда через КПП в технополис до видеонаблюдения в здании и по его периметру;- Удачное соседство с многими участниками рынка в различных отрасляхБОНУС:- В наличии так же есть помещения разных площадей на 1-м и 3-м этажах, детали и фото по запросу;- При заезде в помещения, есть возможность взять офисную мебель на весь срок аренды, детали по запросуПрекрасно подойдёт под склад, производство, офис, мастерскую, СПА салон и т.п.НДС в размере 5 отдельно от стоимости арендыЗвоните сейчас, станьте обладателем лучшего предложения

Читать полностью
    Позвонить Написать
    31 400 Р410 $ или 345
    Агент
    +7 (903) 388-15-13
    Начать чат с агентом
    Похожие предложения
    Помещение свободного назначения в Татарстан, Казань ул. Восстания, ... - Фото 1
    Помещение свободного назначения в Татарстан, Казань ул. Восстания, ... - Фото 2
    Код объекта: 1994796.Сдаётся помещение свободного назначения по адресу ул.Восстания 100к2060 (Химград)Основные параметры:- Общая площадь 31.4 м2 (18.8 м2 + 8.9 м2 + 3.7 м2);- Евроремонт;- Наличие мокрой точки;- 2-й этаж с высотой потолков h = 4.9 метра;-...
    • 2/3 эт.
    31 400 Р
    Агент
    +7 (987) Показать номер
    Посмотреть контакты
    Помещение свободного назначения в Татарстан, Казань ул. Дементьева, ... - Фото 1
    Помещение свободного назначения в Татарстан, Казань ул. Дементьева, ... - Фото 2
    Сдам павильон на рынке Карачаево, 2 этажа (1 этаж торговый зал, 2 этаж склад, сан узел) Бывшая аптека, клиенты до сих пор приходят и ищут аптеку сан узел, щитовая, охранная сигнализация, панорамное остекление Рядом магазин Чижик, магазин Магнит, пекарня,...
    • 1/2 эт.
    30 000 Р
    Агент
    +7 (986) Показать номер
    Посмотреть контакты
    Помещение свободного назначения в Татарстан, Казань ул. Академика ... - Фото 1
    Помещение свободного назначения в Татарстан, Казань ул. Академика ... - Фото 2
    Характеристики:- 1 линия- Общая входная группа- Парковка отсутствует- Есть возможность разместить вывеску- Погрузка/разгрузка: Главный вход- Доступ 24/7- Свой санузел- Есть кондиционер- Максимальная мощность 7 кВт- Чистовой ремонт- Стрит ритейл- Коммунальные...
    • 1/10 эт.
    30 000 Р
    Агент
    +7 (917) Показать номер
    Посмотреть контакты
    Помещение свободного назначения в Татарстан, Казань Техническая ул., ... - Фото 1
    Помещение свободного назначения в Татарстан, Казань Техническая ул., ... - Фото 2
    Характеристики:- 1 линия- Отдельная входная группа- Общая парковка- Доступ 24/7- ХВС/ГВС- Свой санузел- Центральное отопление- Хороший ремонт- Кабинетная планировка- Отдельно стоящее здание- Высота потолков 3 м- Видеонаблюдение- С мебелью- С окнами- Инфраструктура:...
    • 2/2 эт.
    30 000 Р
    Агент
    +7 (917) Показать номер
    Посмотреть контакты
    Помещение свободного назначения в Татарстан, Казань ул. Академика ... - Фото 1
    Помещение свободного назначения в Татарстан, Казань ул. Академика ... - Фото 2
    Сдам помещение под кухню ( доставка, пекарню, пищевое производство и т.д.). Все оборудование остается.Отличное расположение. Отдельный вход. Есть возможность увеличить площадь помещения до 40кв.м.Отдельный вход Также возможна сдача всего кафе с обеденным...
    • 1/5 эт.
    30 000 Р
    Агент
    +7 (917) Показать номер
    Посмотреть контакты

    Не нашли подходящего объявления?

    Оставьте заявку, и наши риэлторы подберут псн в районе Казани

    (0)