370 252 Р 4 730 $ или 4 020

Состояние и оснащение

Количество этажей
7
Развернуть
Агент
+7 (917) 280-23-30
Начать чат с агентом

Помещение свободного назначения в Татарстан, Казань Спартаковская ул., ...

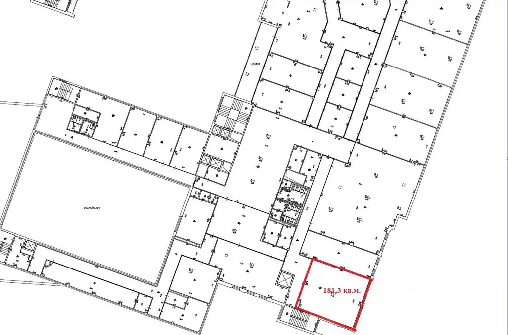
Данные получены с сайта ГИС Торги.3 на отм.+10,800 этаж, 3-5-7-этажного здания (тех. помещения 11-12) с оборудованием согласно Приложению 1 к Аукционной документации. Год постройки 1988 г. (3-5-7 этажное здание), год реконструкции 2022 г., состояние хорошее; наружные стены (материал) стеклофибробетон, ригельный кирпич ручной формовки, композитные панели под имитацию бетона; перегородки (материал) кирпичные, ж/бетонные, стеклянные, ГКЛ; пол плитка, бетон; отделка потолков покраска; вид отопления центральное; система вентиляции и кондиционирования центральная; системы электро-, тепло-, водоснабжения и канализации имеются

Читать полностью
    Позвонить Написать
    370 252 Р4 730 $ или 4 020
    Агент
    +7 (917) 280-23-30
    Начать чат с агентом
    Похожие предложения
    Помещение свободного назначения в Татарстан, Казань Спартаковская ул., ... - Фото 1
    Помещение свободного назначения в Татарстан, Казань Спартаковская ул., ... - Фото 2
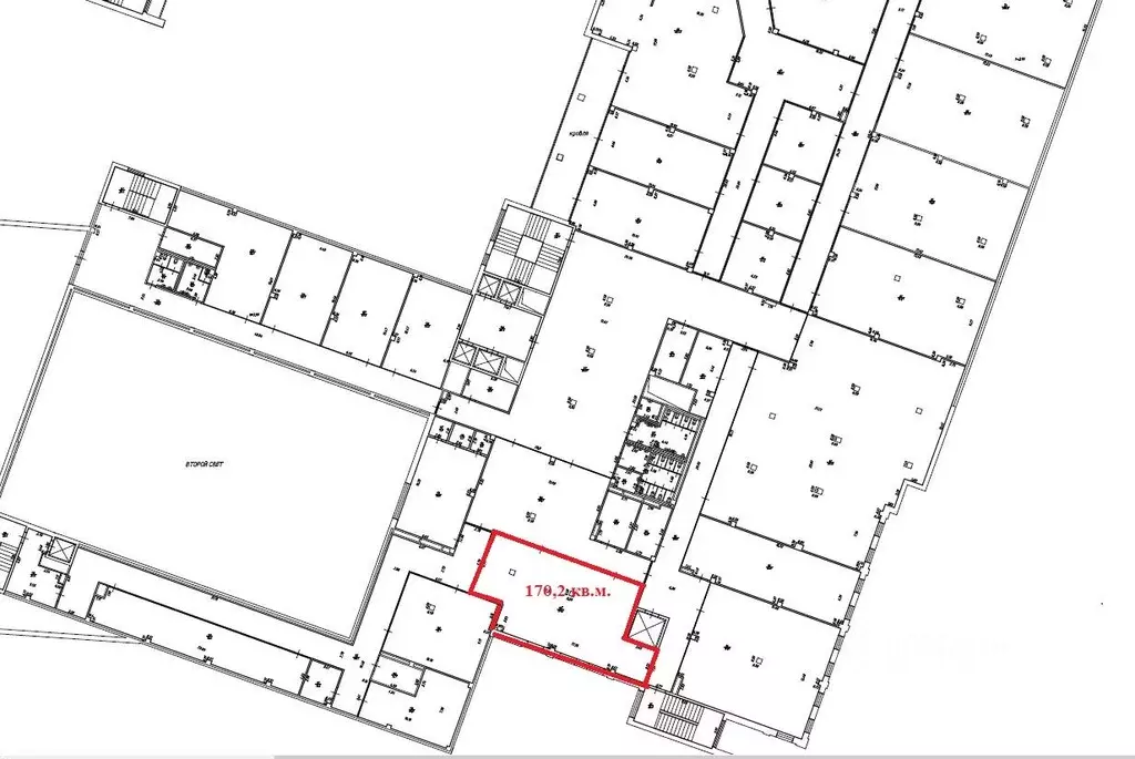
    Данные получены с сайта ГИС Торги.3 этаж 3-5-7-этажного здания (тех. помещение 107) с оборудованием согласно Приложению 2 к Аукционной документации. Год постройки 1988 г. (3-5-7 этажное здание), год реконструкции 2022 г., состояние хорошее; наружные...
    • 7 этажей
    373 581 Р
    Агент
    +7 (917) Показать номер
    Посмотреть контакты
    Помещение свободного назначения в Татарстан, Казань Спартаковская ул., ... - Фото 1
    Помещение свободного назначения в Татарстан, Казань Спартаковская ул., ... - Фото 2
    Данные получены с сайта ГИС Торги.3 этаж 3-5-7-этажного здания (тех. помещение 94) с оборудованием согласно Приложению 1 к Аукционной документации. Год постройки 1988 г. (3-5-7 этажное здание), год реконструкции 2022 г., состояние хорошее; наружные...
    • 7 этажей
    372 932 Р
    Агент
    +7 (917) Показать номер
    Посмотреть контакты
    Помещение свободного назначения в Татарстан, Казань ул. Мазита Гафури, ... - Фото 1
    Помещение свободного назначения в Татарстан, Казань ул. Мазита Гафури, ... - Фото 2
    Сдается помещение в здании Маза Парк, 499 м2, 2-й этаж. Высота потолка 5 м. Подходит под магазин склад, ивент, торговое помещение, кол центр. Рассматриваются любые предложения. Здание имеет свою большую парковку. Место известно горожанам развлекательными...
    • 2/5 эт.
    374 250 Р
    Агент
    +7 (986) Показать номер
    Посмотреть контакты
    Помещение свободного назначения в Татарстан, Казань Астрономическая ... - Фото 1
    Помещение свободного назначения в Татарстан, Казань Астрономическая ... - Фото 2
    Характеристики:- 1 линия- Отдельная входная группа- Своя парковка- Есть возможность разместить вывеску- Погрузка/разгрузка: Главный вход, Запасной вход, Отдельное окно- Доступ 24/7- ХВС/ГВС- Свой санузел- Центральное отопление- Приточно-вытяжная вентиляция-...
    • 2/3 эт.
    375 000 Р
    Агент
    +7 (917) Показать номер
    Посмотреть контакты
    Показ в удобное время. С АГЕНТАМИ РАБОТАЕМ И ПЛАТИМ. Здание расположено в исторической части города. Огороженная территория, въезд во двор через шлагбаум. Близлежащие окружение ТЦ Кольцо, ГУМ, Сувар Плаза, театр кукол Экият. Отличная транспортная доступность...
    • 1/2 эт.
    380 000 Р
    Агент
    +7 (933) Показать номер
    Посмотреть контакты

    Не нашли подходящего объявления?

    Оставьте заявку, и наши риэлторы подберут псн в районе Казани

    (0)