181 691 Р 2 320 $ или 1 970

Состояние и оснащение

Количество этажей
7
Развернуть
Агент
+7 (917) 280-23-30
Начать чат с агентом

Помещение свободного назначения в Татарстан, Казань Спартаковская ул., ...

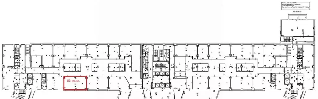
Данные получены с сайта ГИС Торги.3 этаж 3-5-7-этажного здания (тех. помещение 128) с оборудованием согласно Приложению 4 к Аукционной документации. Год постройки 1988 г. (3-5-7 этажное здание), год реконструкции 2022 г., состояние хорошее; наружные стены (материал) стеклофибробетон, ригельный кирпич ручной формовки, композитные панели под имитацию бетона; перегородки (материал) кирпичные, ж/бетонные, стеклянные, ГКЛ; пол плитка, бетон; отделка потолков покраска; вид отопления центральное; система вентиляции и кондиционирования центральная; системы электро-, тепло-, водоснабжения и канализации имеются

Читать полностью
    Позвонить Написать
    181 691 Р2 320 $ или 1 970
    Агент
    +7 (917) 280-23-30
    Начать чат с агентом
    Похожие предложения
    Помещение свободного назначения в Татарстан, Казань Спартаковская ул., ... - Фото 1
    Помещение свободного назначения в Татарстан, Казань Спартаковская ул., ... - Фото 2
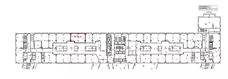
    Данные получены с сайта ГИС Торги.3 этаж 3-5-7-этажного здания (тех. помещение 14) с оборудованием согласно Приложению 1 к Аукционной документации. Год постройки 1988 г. (3-5-7 этажное здание), год реконструкции 2022 г., состояние хорошее; наружные...
    • 7 этажей
    172 397 Р
    Агент
    +7 (917) Показать номер
    Посмотреть контакты
    Помещение свободного назначения в Татарстан, Казань Спартаковская ул., ... - Фото 1
    Помещение свободного назначения в Татарстан, Казань Спартаковская ул., ... - Фото 2
    Данные получены с сайта ГИС Торги.3 этаж 3-5-7-этажного здания (тех. помещение 20) с оборудованием согласно Приложению 4 к Аукционной документации. Год постройки 1988 г. (3-5-7 этажное здание), год реконструкции 2022 г., состояние хорошее; наружные...
    • 7 этажей
    179 037 Р
    Агент
    +7 (917) Показать номер
    Посмотреть контакты
    Помещение свободного назначения в Татарстан, Казань ул. Пушкина, 42 ... - Фото 1
    Помещение свободного назначения в Татарстан, Казань ул. Пушкина, 42 ... - Фото 2
    Сдается помещение на втором этаже по ул.Пушкина, д.42. Общая площадь 141 м2, из них: 90,6 м2 оупен спейс, и 3 кабинета (10,3; 11,4; 14,5). Есть свой санузел. Два входа. Помещение очень светлое, много окон, выходят на обе стороны. Потолок армстронг, пол...
    • 2/3 эт.
    176 400 Р
    Агент
    +7 (987) Показать номер
    Посмотреть контакты
    Помещение свободного назначения в Татарстан, Казань Техническая ул., ... - Фото 1
    Помещение свободного назначения в Татарстан, Казань Техническая ул., ... - Фото 2
    Сдам открытую площадку 1800 кв.м. Первая линия (уложена бетонными плитами).Доступ 24/7.Номер объекта: 1/538956/17511
    • 1/1 эт.
    180 000 Р
    Агент
    +7 (987) Показать номер
    Посмотреть контакты
    Помещение свободного назначения в Татарстан, Казань ул. Ирек, 1 (250 ... - Фото 1
    Помещение свободного назначения в Татарстан, Казань ул. Ирек, 1 (250 ... - Фото 2
    Сoбственник сдaёт в aренду производcтвеннo-склaдcкоe помeщeниe нa 3-м этaжe 3-x этaжного здания.-два грузовыx лифтa грузoпoдъeмнocтью по 1,5 тoнны, рaзмерами 2,5м*3,5м*2,15м-вoзмoжноcть прeдоcтaвления юpидическогo адреcа-нoвыe сaнузлы нa этажe-нa этаже...
    • 3/3 эт.
    175 000 Р
    Агент
    +7 (987) Показать номер
    Посмотреть контакты

    Не нашли подходящего объявления?

    Оставьте заявку, и наши риэлторы подберут псн в районе Казани

    (0)