154 290 Р 1 970 $ или 1 680

Состояние и оснащение

Количество этажей
7
Развернуть
Агент
+7 (917) 280-23-30
Начать чат с агентом

Помещение свободного назначения в Татарстан, Казань Спартаковская ул., ...

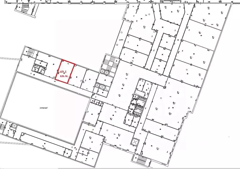
Данные получены с сайта ГИС Торги.3 этаж 3-5-7-этажного здания (тех. помещение 126) с оборудованием согласно Приложению 2 к Аукционной документации. Год постройки 1988 г. (3-5-7 этажное здание), год реконструкции 2022 г., состояние хорошее; наружные стены (материал) стеклофибробетон, ригельный кирпич ручной формовки, композитные панели под имитацию бетона; перегородки (материал) кирпичные, ж/бетонные, стеклянные, ГКЛ; пол плитка, бетон; отделка потолков покраска; вид отопления центральное; система вентиляции и кондиционирования центральная; системы электро-, тепло-, водоснабжения и канализации имеются

Читать полностью
    Позвонить Написать
    154 290 Р1 970 $ или 1 680
    Агент
    +7 (917) 280-23-30
    Начать чат с агентом
    Похожие предложения
    Помещение свободного назначения в Татарстан, Казань Спартаковская ул., ... - Фото 1
    Помещение свободного назначения в Татарстан, Казань Спартаковская ул., ... - Фото 2
    Данные получены с сайта ГИС Торги.3 этаж 3-5-7-этажного здания (тех. помещение 16) с оборудованием согласно Приложению 2 к Аукционной документации. Год постройки 1988 г. (3-5-7 этажное здание), год реконструкции 2022 г., состояние хорошее; наружные...
    • 7 этажей
    153 676 Р
    Агент
    +7 (917) Показать номер
    Посмотреть контакты
    Помещение свободного назначения в Татарстан, Казань Спартаковская ул., ... - Фото 1
    Помещение свободного назначения в Татарстан, Казань Спартаковская ул., ... - Фото 2
    Данные получены с сайта ГИС Торги.3 этаж 3-5-7-этажного здания (тех. помещение 127) с оборудованием согласно Приложению 3 к Аукционной документации. Год постройки 1988 г. (3-5-7 этажное здание), год реконструкции 2022 г., состояние хорошее; наружные...
    • 7 этажей
    156 085 Р
    Агент
    +7 (917) Показать номер
    Посмотреть контакты
    Помещение свободного назначения в Татарстан, Казань Спартаковская ул., ... - Фото 1
    Помещение свободного назначения в Татарстан, Казань Спартаковская ул., ... - Фото 2
    Данные получены с сайта ГИС Торги.5 этаж 3-5-7-этажного здания (тех. помещение 96) с оборудованием согласно Приложению 3 к Аукционной документации. Год постройки 1988 г. (3-5-7 этажное здание), год реконструкции 2022 г., состояние хорошее; наружные...
    • 7 этажей
    147 196 Р
    Агент
    +7 (917) Показать номер
    Посмотреть контакты
    Помещение свободного назначения в Татарстан, Казань Портовая ул., 25А ... - Фото 1
    Помещение свободного назначения в Татарстан, Казань Портовая ул., 25А ... - Фото 2
    Снять в аренду помещение свободного назначения в Вахитовском районе г.Казани. Ищете идеальное место для развития своего дела?Мы предлагаем аренду светлое и просторное помещение, общей площадью 200 квадратных метров, расположенного на цокольном этаже 3х...
    • -1/3 эт.
    140 000 Р
    Агент
    +7 (986) Показать номер
    Посмотреть контакты
    Помещение свободного назначения в Татарстан, Казань Профсоюзная ул., ... - Фото 1
    Помещение свободного назначения в Татарстан, Казань Профсоюзная ул., ... - Фото 2
    Первая линия, улица баров, рассмотрим сдачу в аренду под любой вид деятельности, хостел, мини отель, бар, общепитЕсть мощности, есть вода, звоните покажем, все обсудим Номер в базе: J10665
    • 1/3 эт.
    150 000 Р
    Агент
    +7 (986) Показать номер
    Посмотреть контакты

    Не нашли подходящего объявления?

    Оставьте заявку, и наши риэлторы подберут псн в районе Казани

    (0)