Реализация объекта недвижимости приостановлена

Состояние и оснащение

Количество этажей
7
Развернуть

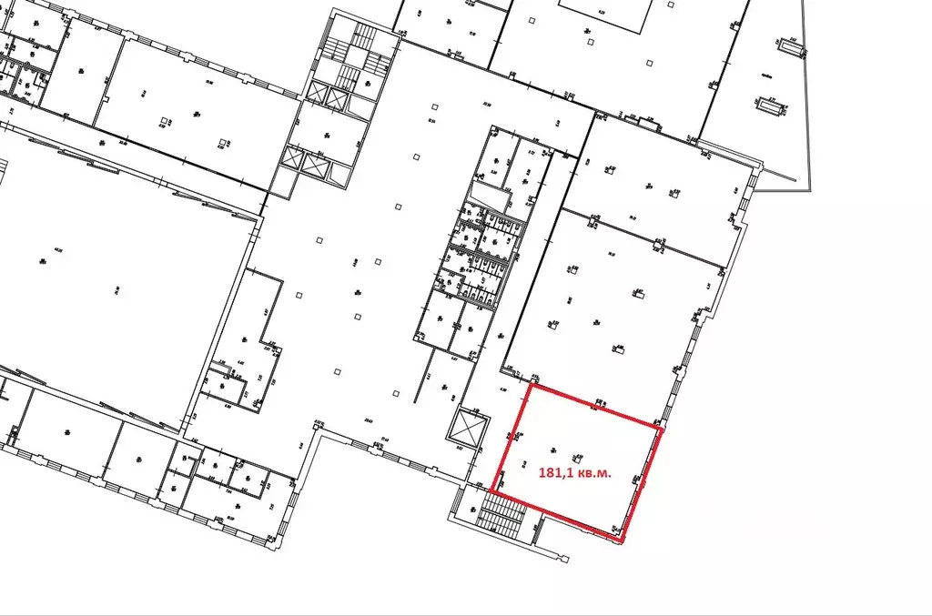
Помещение свободного назначения в Татарстан, Казань Спартаковская ул., ...

Данные получены с сайта ГИС Торги.2 этаж 3-5-7-этажного здания (тех. помещение 79). Год постройки 1988 г. (3-5-7 этажное здание), год реконструкции 2022 г., состояние хорошее; наружные стены (материал) стеклофибробетон, ригельный кирпич ручной формовки, композитные панели под имитацию бетона; перегородки (материал) кирпичные, ж/бетонные, стеклянные, ГКЛ; пол плитка, бетон; отделка потолков покраска; вид отопления центральное; система вентиляции и кондиционирования центральная; системы электро-, тепло-, водоснабжения и канализации имеются

Читать полностью

    Реализация объекта недвижимости приостановлена

    Не нашли подходящего объявления?

    Оставьте заявку, и наши риэлторы подберут псн в районе Казани

    (0)