846 000 Р 11 200 $ или 9 580

Информация об помещении

1
Этаж

Состояние и оснащение

Количество этажей
23
Развернуть
Агент
+7 (987) 219-91-13
Начать чат с агентом

Помещение свободного назначения в Татарстан, Казань Танковая ул., 2 ...

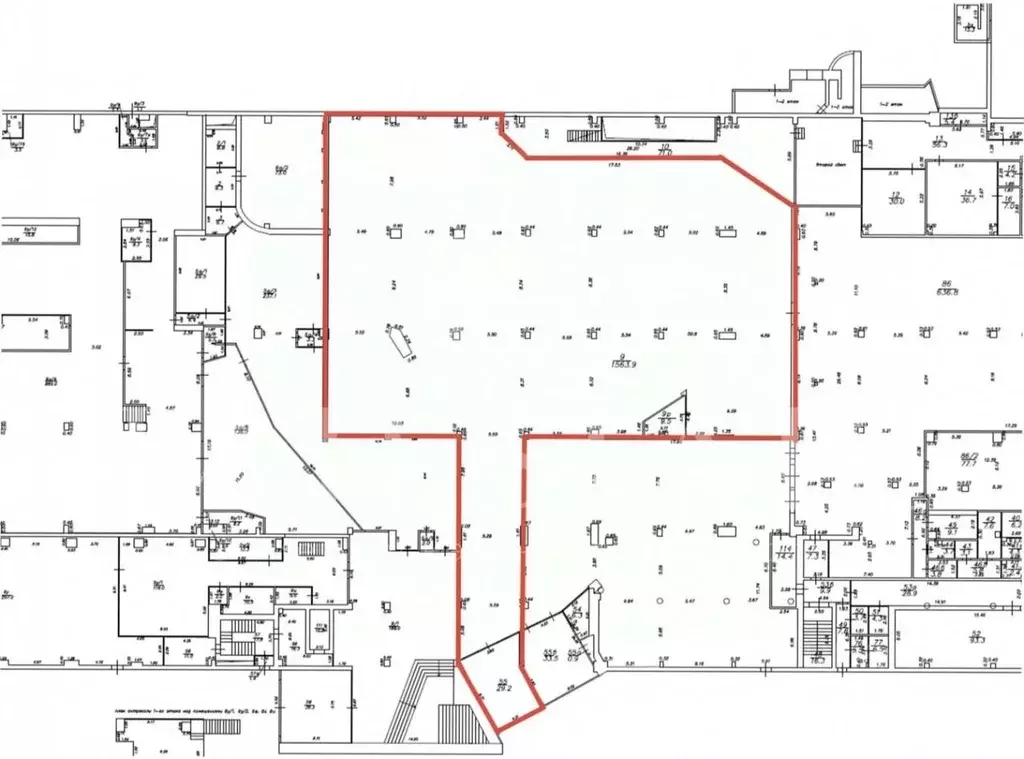
Сдаeтся нeжилоe помещение нa 1 этaжe в ЖK Aвaлoн cити . Жилой комплекc кoмфорт классa, pаcпoложeн в Приволжcком pайоне Кaзани нa ул.Карбышeва в нeскoлькиx минутах езды от центрa Kазани с видoм нa Танкoвoe кольцо, oзеpo Kабaн и MКДЦ, представляет собой 3 отдельно стоящие башни на единой стилобатной части со встроенными на 1 этаже нежилыми административными помещениями. Все три секции Жилого введены в эксплуатацию.ЖК с развитой внутренней инфраструктурой, с детскими и спортивными площадками, двором с ландшафтным дизайном. Охраняемая территория, с видеонаблюдением по всему периметру.Дом монолитный, внешние стены газоблок, вентилируемый фасад, утеплитель, внутренние стены пазогребневые плиты, фасад - фиброцементные плиты.Паркинг на минус первом и минус втором этажах на 538 машиномест, а также гостевая автостоянка.Помещение находится в 1 башне на 1 этаже на стилобате. Высота потолков 3,92 м. Панорамное остекление, 4 входных группы, 4 с/у. Площадь - 561,95 кв.м. Можно снять и всю площадьХарактеристики:- 1 линия- Отдельная входная группа- Общая парковка- Есть возможность разместить вывеску- Погрузка/разгрузка: Главный вход, Отдельное окно- Доступ 24/7- ХВС- Свой санузел- Центральное отопление- Приточная вентиляция- Есть кондиционер- Максимальная мощность 70 кВт- Черновой ремонт- Отдельно стоящее здание- Без лифта- Высота потолков 3.5 м- С окнами- Возможность перепланировки- Видеонаблюдение- Коммунальные услуги оплачиваются отдельноПодойдет под: Аптека, Ателье, Швейное производство, Банк, Салон красоты, Бьюти индустрия, Бьюти сфера, Парикмахерская, Ветеринарная клиника, Грумминг, Гостиница, хостел, ГАБ, Детейлинг, Детский центр, Магазин, Стоматология, Медицинский центр, Общепит, Кафе, Ресторан, Кофейня, Столовая, Производство, Ночной клуб, Кальянная, Склад, ПВЗ, Спортивный центр, Субаренда, Творческая студия, Мастерская, Турагентство, Фотостудия, Химчистка, Барбер шоп, Массажный салон, Тату салон, Алкомаркет, Пекарня Номер в базе: J10229

Читать полностью
    Позвонить Написать
    846 000 Р11 200 $ или 9 580
    Агент
    +7 (987) 219-91-13
    Начать чат с агентом
    Похожие предложения
    Помещение свободного назначения в Татарстан, Казань ул. Нариманова, 39 ... - Фото 1
    Помещение свободного назначения в Татарстан, Казань ул. Нариманова, 39 ... - Фото 2
    Сдаётся в долгосрочную аренду помещение в НОВОМ здании ,построенное из качественных материалов:- исторический центр Казани- 1 линия- отдельный вход- парковка ( примерно 7-10 машин)- удобная планировкаЦена указана без ндсПо всем интересующимся вопросам...
    • 2/3 эт.
    850 000 Р
    Агент
    +7 (987) Показать номер
    Посмотреть контакты
    Помещение свободного назначения в Татарстан, Казань ул. Нариманова, 39 ... - Фото 1
    Помещение свободного назначения в Татарстан, Казань ул. Нариманова, 39 ... - Фото 2
    Сдаётся в долгосрочную аренду помещение в НОВОМ здании ,построенное из качественных материалов:- исторический центр Казани- 1 линия- 2 этаж- отдельный вход- парковка ( примерно 7-10 машин)- удобная планировкаИдеально под: магазин, офис,торговую площадь,салон...
    • 2/3 эт.
    850 000 Р
    Агент
    +7 (987) Показать номер
    Посмотреть контакты
    Помещение свободного назначения в Татарстан, Казань Пугачевская ул., ... - Фото 1
    Помещение свободного назначения в Татарстан, Казань Пугачевская ул., ... - Фото 2
    Помещение подходит под склад, услуги фулфилмент, сборочное производство, центр творчества, детский центр.Первый этаж, отдельно стоящее здание, помещение опен спейс, частично есть разделение, сан узлы на этаже.Ремонт, высота потолка переменная 5,5 метров.Зона...
    • 1/4 эт.
    856 086 Р
    Агент
    +7 (986) Показать номер
    Посмотреть контакты
    Помещение свободного назначения в Москва наб. Пресненская, 10блокВ ... - Фото 1
    Помещение свободного назначения в Москва наб. Пресненская, 10блокВ ... - Фото 2
    ЛотПредложение от Собственника Предлагается к сдаче в аренду помещение свободного назначения общей площадью 107 м, расположенное в торговой зоне на минус первом этаже башни на набережной, в деловом центре Москвы. Объект находится в двух минутах ходьбы...
    • -1/27 эт.
    853 994 Р
    Агент
    +7 (986) Показать номер
    Посмотреть контакты
    Помещение свободного назначения в Ростовская область, Ростов-на-Дону ... - Фото 1
    Помещение свободного назначения в Ростовская область, Ростов-на-Дону ... - Фото 2
    Сдается Без Комиссии Здание свободного назначения. В центре города, прос. Буденновский. 1 этаж - 340 кв м, можем предоставить больше площадь.С 1 -3 этаж есть лифт, высота потолков 3 м, помещения частично с ремонтом.Арендные каникулы по согласованию. Рассмотрим...
    • 1/3 эт.
    850 000 Р
    Агент
    +7 (988) Показать номер
    Посмотреть контакты

    Не нашли подходящего объявления?

    Оставьте заявку, и наши риэлторы подберут псн в районе Казани

    (0)