1 246 000 Р 15 740 $ или 13 570

Информация об помещении

1
Этаж

Состояние и оснащение

Количество этажей
1
Развернуть
Агент
+7 (987) 403-24-75
Начать чат с агентом

Производственное помещение в Татарстан, Казань ул. Дементьева, 2Бк4 ...

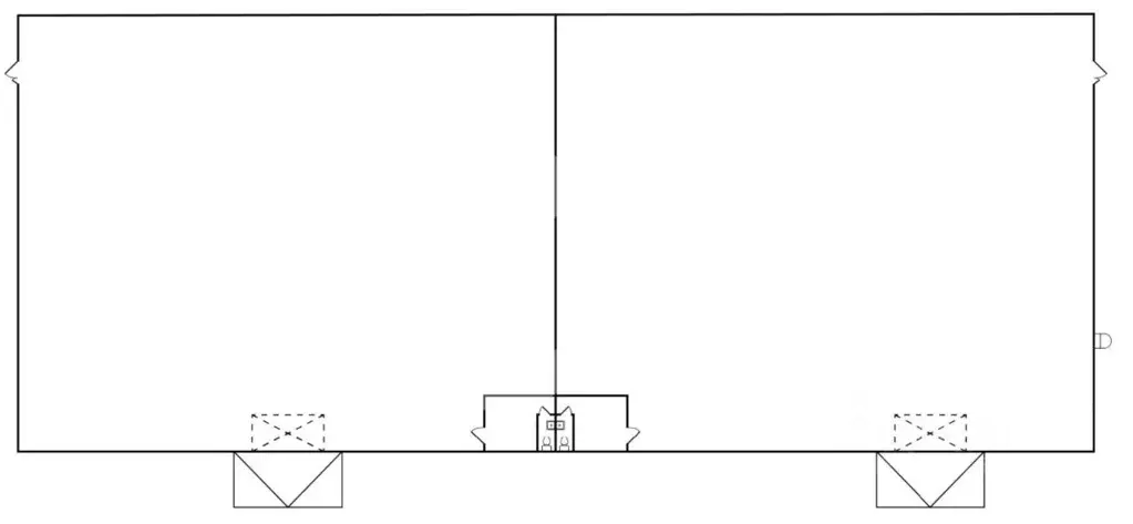
Сдется производственное помещение, оборудованно кран-балкой 3.2т Размеры помещения 36х42 Высота до фермы 9м Двое ворота 4,5х4 м Электроэнергии 75 кВт Охраняемая территория Санузел Раздевалка офисы Место разворота фур, стоянка, охраняемая территория. Система безопасности наружное ограждениеПо договору система расчета НДС 22 включено в ставку.Оплачивается отдельно - Электроэнергия, газ, вода - по счетчику; ТБО, септик, уборка снега, интернет. Договор от 11 месяцев. Номер в базе: J10818

Читать полностью
    Позвонить Написать
    1 246 000 Р15 740 $ или 13 570
    Агент
    +7 (987) 403-24-75
    Начать чат с агентом
    Похожие предложения
    Производственное помещение в Татарстан, Казань Теплично-комбинатская ... - Фото 1
    Производственное помещение в Татарстан, Казань Теплично-комбинатская ... - Фото 2
    Предлагаем в аренду одноэтажное производственное помещение площадью 1440 м в Казани, расположенное в Авиастроительном районе.В том числе НДС Электричество заведено 150 кВт непосредственно к этому складу.Размеры 24х60 мВысота потолков в пике 11 метров,...
    • 1/1 эт.
    1 152 000 Р
    Агент
    +7 (987) Показать номер
    Посмотреть контакты
    Производственное помещение в Татарстан, Казань Архангельская ул., 14 ... - Фото 1
    Производственное помещение в Татарстан, Казань Архангельская ул., 14 ... - Фото 2
    Сдается в аренду отапливаемая производственно-складская база, площадь здания 1500кв.м.,состоящая из основных цехов и подсобных помещений, (план прилагается).Отопление газовое;Вода и канализация центральные;Эл. мощность - 350кВт.2-е ворот на нуле, одни...
    • 1/2 эт.
    1 104 000 Р
    Агент
    +7 (919) Показать номер
    Посмотреть контакты
    Производственное помещение в Московская область, Домодедово Белые ... - Фото 1
    Производственное помещение в Московская область, Домодедово Белые ... - Фото 2
    922881. Предлагается производственно-складское помещение общей площадью 1 500 кв. м. в г. Домодедово, мкр-н Белые Столбы. Преимущества:Отличная транспортная доступность, выезд на федеральную трассу М-4 и ЦКАД. Возможно деление на блоки нужной площади....
    • 1/1 эт.
    1 125 000 Р
    Агент
    +7 (938) Показать номер
    Посмотреть контакты
    Производственное помещение в Московская область, Раменский ... - Фото 1
    Производственное помещение в Московская область, Раменский ... - Фото 2
    958307. Предлагается производственно-складское помещение общей площадью 1440 кв. м. в комплексе Лайт индастриал в с. Зеленая Слобода, гор. Раменское. Преимущества:Выезд на Новорязанское и Володарское шоссе, 20 км от МКАД, 32 км до ЦКАД. Развитая транспортная...
    • 1/1 эт.
    1 296 000 Р
    Агент
    +7 (938) Показать номер
    Посмотреть контакты
    Производственное помещение в Московская область, Балашиха городской ... - Фото 1
    Производственное помещение в Московская область, Балашиха городской ... - Фото 2
    Арт.Предлагается в аренду производственно-складское общей площадью1250 кв м.Рабочая высота потолка-9м.Ворота-2 шт в Ноль.Электричество-150квт.Все коммуникации, удобные подьездные пути, огорожен,охрана, режим работы 24/7Оперативный показ
    • 1/1 эт.
    1 250 000 Р
    Агент
    +7 (915) Показать номер
    Посмотреть контакты

    Не нашли подходящего объявления?

    Оставьте заявку, и наши риэлторы подберут производственное помещение в районе Казани

    (0)