815 850 Р 10 800 $ или 9 240

Информация о помещении и здании

5
Этаж
5
Этажность
Развернуть
Агент
+7 (987) 060-66-38
Начать чат с агентом

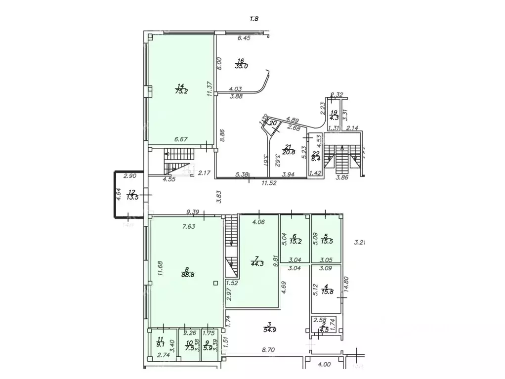
Офис в Татарстан, Казань ул. Баумана, 44/8 (389 м)

Сдается в аренду современное офисное помещение площадью 388.5 кв. м в Центре Досуга и Бизнеса РОДИНА по адресу ул. Баумана, 44/8 на 5 этаже Локация и транспорт:- Транспортная доступность: 7 минут до метро Кремлёвская , 10 минут - до Площади Тукая . Остановки автобусов и троллейбусов в непосредственной близости к ЦДБ РОДИНА .- Парковка для всех: собственная охраняемая подземная парковка и муниципальные стоянки - всегда есть место для Вас, ваших клиентов и партнёров. Всё для продуктивной работы и безопасности:- Современные лифты и эскалаторы.- Система приточно-вытяжной вентиляции и индивидуальное кондиционирование.- Автоматическая система пожаротушения и круглосуточная охрана с видеонаблюдением.- Высокоскоростной интернет (оптоволокно) от ведущих провайдеров.- Два санузла.- Один разгрузочный пандус для удобства логистики.- Чистовая отделка в стильных тонах.- Все коммуникации (водоснабжение, водоотведение) уже подведены.В стоимость аренды включён НДС. Звоните прямо сейчас Запишитесь на индивидуальный просмотр и узнайте все условия аренды.

Читать полностью
    Позвонить Написать
    815 850 Р10 800 $ или 9 240
    Агент
    +7 (987) 060-66-38
    Начать чат с агентом
    Похожие предложения
    Офис в Москва Верейская ул., 29С134 (291 м) - Фото 1
    Офис в Москва Верейская ул., 29С134 (291 м) - Фото 2
    3-й этаж, всего 7 этажей

    Предлагается в аренду офис 291.3 кв.м. Состояние отделки — готово к въезду.Договор аренды заключаете с собственником помещения. Без надбавки к итоговой стоимости аренды.В арендную ставку включено: - эксплуат.расходы,- уборка общих мест,- вывоз мусора,-...
    • 3/7 эт.
    826 725 Р
    Агент
    +7 (932) Показать номер
    Посмотреть контакты
    Офис в Москва Варшавское ш., 26 (390 м) - Фото 1
    Офис в Москва Варшавское ш., 26 (390 м) - Фото 2
    2-й этаж, всего 5 этажей

    Сдается под офис блок 390 кв.м недалеко от метро.Договор аренды заключаете с собственником помещения. Без надбавки к итоговой стоимости аренды.В арендную ставку включено: - НДС,- эксплуат.расходы,- уборка офиса,- уборка общих мест,- вывоз мусора,- охрана...
    • 2/5 эт.
    828 750 Р
    Агент
    +7 (932) Показать номер
    Посмотреть контакты
    Офис в Москва наб. Пресненская, 12 (131 м) - Фото 1
    Офис в Москва наб. Пресненская, 12 (131 м) - Фото 2
    11-й этаж, всего 95 этажей

    ЛотПредложение от Собственника Предлагается в аренду престижное офисное пространство в сердце Делового центра в Башне Федерация Восток с полным ремонтом и мебелью.Башня Федерация -символ статуса и успеха Престиж и расположение: один из самых высоких...
    • 11/95 эт.
    819 998 Р
    Агент
    +7 (986) Показать номер
    Посмотреть контакты
    Офис в Москва ул. Вильгельма Пика, 16 (237 м) - Фото 1
    Офис в Москва ул. Вильгельма Пика, 16 (237 м) - Фото 2
    5-й этаж, всего 22 этажа

    Предлагаем в аренду офис на 20 - 52 сотрудников в бизнес-центре Парк Хуамин .Разработаем планировку под вашу команду бесплатно с неограниченными правками.Площадь: 237 м.Состояние: готов к въезду.Арендная плата:/мес.Ставка:/м/год (включая эксплуатацию).Налогообложение:...
    • 5/22 эт.
    819 583 Р
    Агент
    +7 (980) Показать номер
    Посмотреть контакты
    Офис в Санкт-Петербург Херсонская ул., 39 (262 м) - Фото 1
    Офис в Санкт-Петербург Херсонская ул., 39 (262 м) - Фото 2
    1-й этаж, всего 8 этажей

    Офисное помещение 261.5 кв. м в бизнес-центре Александровский .Район: Центральный. Ближайшие станции метро: Площадь Александра Невского-1, Площадь Александра Невского-2. Характеристики:- Класс: B+; - Арендопригодная площадь: 3000; - Код налоговой: 42;...
    • 1/8 эт.
    810 650 Р
    Агент
    +7 (981) Показать номер
    Посмотреть контакты

    Не нашли подходящего объявления?

    Оставьте заявку, и наши риэлторы подберут офис в районе Казани

    (0)