4 235 000 Р 54 810 $ или 46 390

Информация о помещении и здании

4
Этаж
5
Этажность
Развернуть
Агент
+7 (917) 390-82-81
Начать чат с агентом

Офис в Татарстан, Казань Московская ул., 19/8 (1694 м)

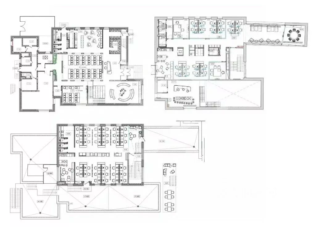
Сдается в аренду целый этаж (4-й) в престижном бизнес-центре класса А Кремлевская Плаза .Характеристики: Площадь: 1694 м (весь этаж) Арендная ставка:/м в месяц Планировка: кабинеты, переговорные комнаты, просторные open space зоныПланировочные решения:Помещение включает как небольшие отдельные кабинеты для руководителей и переговорных, так и открытые пространства для командной работы. Планировка позволяет разместить крупную компанию с разными отделами.Преимущества БЦ класса А: Современная инженерия и коммуникации Круглосуточная охрана и видеонаблюдение Лифты и удобная логистика Парковка для сотрудников и гостей Развитая инфраструктура районаИдеально подходит для:Головного офиса крупной компании, IT-компании, финансовых организаций, представительств. Объект.

Читать полностью
    Позвонить Написать
    4 235 000 Р54 810 $ или 46 390
    Агент
    +7 (917) 390-82-81
    Начать чат с агентом
    Похожие предложения
    Офис в Санкт-Петербург пер. Тучков, 10 (1800 м) - Фото 1
    Офис в Санкт-Петербург пер. Тучков, 10 (1800 м) - Фото 2
    1-й этаж, всего 3 этажа

    Сдаётся в аренду премиальное офисное здание в самом сердце Василеостровского района. Идеально для штаб-квартиры, представительства или размещения крупного отдела.Общая информация:• Общая площадь: 1 800 кв.м.• Ставка:/кв.м.• НДС включён• Отдельно стоящее...
    • 1/3 эт.
    4 140 000 Р
    Агент
    +7 (911) Показать номер
    Посмотреть контакты
    Офис в Москва Космодамианская наб., 52С1 (881 м) - Фото 1
    Офис в Москва Космодамианская наб., 52С1 (881 м) - Фото 2
    2-й этаж, всего 25 этажей

    Предложение в аренду 62441.Парковка: наземная 22800/мес, подземная 27000/мес.Предлагаем в аренду офис в бизнес-центре класса А на Балчуге. До м.Павелецкая 15 минут пешком.. Офис расположен на 2-м этаже, смешанная планировка, свои с/у, отделка за выездом...
    • 2/25 эт.
    4 140 700 Р
    Агент
    +7 (989) Показать номер
    Посмотреть контакты
    Офис в Москва Варшавское ш., 9С1 (1020 м) - Фото 1
    Офис в Москва Варшавское ш., 9С1 (1020 м) - Фото 2
    1-й этаж, всего 6 этажей

    1126438 . Предлагаем в аренду офисное помещение площадью 1019,61 кв. м, расположенное в лофт-квартале Даниловская Мануфактура Преимущества объекта: - Здание класса В+- Шаговая доступность от станции метро Тульская (10 минут пешком)- Этаж: 1-3- Помещение...
    • 1/6 эт.
    4 250 074 Р
    Агент
    +7 (938) Показать номер
    Посмотреть контакты
    Офис в Москва Новослободская ул., 16 (542 м) - Фото 1
    Офис в Москва Новослободская ул., 16 (542 м) - Фото 2
    5-й этаж, всего 8 этажей

    Экономьте время и деньги: отрисуем планировку под вас бесплатно, с любым количеством правок. Предлагаем в аренду Офис в бизнес-центре Новослободская 16 по адресу: Москва, Новослободская улица, 16.Рабочих мест: от 68 до 120*.Площадь: 542 м2.Планировка:...
    • 5/8 эт.
    4 261 988 Р
    Агент
    +7 (980) Показать номер
    Посмотреть контакты
    Офис в Москва Таганская ул., 17-23 (1026 м) - Фото 1
    Офис в Москва Таганская ул., 17-23 (1026 м) - Фото 2
    12-й этаж, всего 12 этажей

    Экономьте время и деньги: отрисуем планировку под вас бесплатно, с любым количеством правок. Предлагаем в аренду Офис в бизнес-центре Мосэнка Парк Тауэрс 4 по адресу: Москва, Таганская улица, 17-23.Рабочих мест: от 129 до 228*.Площадь: 1 026 м2.Планировка:...
    • 12/12 эт.
    4 191 310 Р
    Агент
    +7 (980) Показать номер
    Посмотреть контакты

    Не нашли подходящего объявления?

    Оставьте заявку, и наши риэлторы подберут офис в районе Казани

    (0)