Будьте осторожны при перечислении предоплаты!
Для вашей безопасности предварительно рекомендуем запрашивать документы на объект недвижимости и подтверждение заключения сделки.

29 000 Р

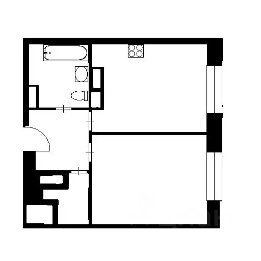
Информация о квартире

57 м2
Площадь
2
Комнаты
5
Этаж
11
Этажность

Дополнительная информация

Тип дома
кирпичный
Развернуть
Агент
+7 (986) 911-62-93
Начать чат с агентом

2-к кв. Татарстан, Казань ул. Николая Ершова, 62Вк1 (57.0 м)

Предлагается в аренду уютная двухкомнатная квартира в современном кирпичном доме, построенном в 2017 году. Общая площадь квартиры составляет 57 кв. м, она расположена на 5-м этаже 11-этажного здания. Высота потолков — 2,59 метра. До ближайшего метро можно добраться на автомобиле всего за 6 минут.В квартире сделан косметический ремонт, что создает уютную атмосферу. Просторные комнаты обставлены необходимой мебелью, а на кухне также есть все необходимое для комфортного проживания. В санузле установлена ванна. В наличии вся необходимая техника: кондиционер, холодильник, телевизор и стиральная машина. Балкон добавляет возможность наслаждаться свежим воздухом, не выходя из дома.Дом оснащен пассажирским лифтом и наземной парковкой для вашего удобства. В шаговой доступности находятся школы, детские сады, клиники и магазины, поэтому все необходимое для комфортной жизни всегда под рукой.Условия аренды: квартира сдается по договору аренды. Рассматриваем порядочных арендаторов, возможно проживание с детьми. Залог возвращается при выезде.Приглашаем вас на просмотр Записывайтесь заранее, чтобы убедиться в том, что это именно то жилье, которое вы искали.

Читать полностью

    Для того, чтобы снять двухкомнатную квартиру по адресу: Казань, м. Суконная слобода, ул. Николая Ершова, 62Вк1, позвоните по телефону +7 (986) 911-62-93. Торопитесь! Объявление №30094252378 об аренде двухкомнатной квартиры опубликовано Вчера.

    Позвонить Написать
    29 000 Р
    Агент
    +7 (986) 911-62-93
    Начать чат с агентом
    Похожие предложения
    1-комнатная квартира, общая площадь 40м², жилая 20м², кухня 15м²

    Сдам уютную однокомнатную квартиру в ЖК ART CITY.Есть всё для комфортного проживания.Сделан евро ремонт.Отличная инфраструктура, магазины, остановки-все рядом.Просмотры в любое время пишите/звоните
    • 40 м²
    • 1-ком
    • 7/11 эт.
    • кирпичный
    29 990 Р
    Агент
    +7 (986) Показать номер
    Посмотреть контакты
    1-к кв. Татарстан, Казань ул. Николая Ершова, 47/5 (33.0 м) - Фото 1
    1-к кв. Татарстан, Казань ул. Николая Ершова, 47/5 (33.0 м) - Фото 2
    1-комнатная квартира, общая площадь 33м², кухня 10м²

    Сдается уютная, светлая 1-комнатная квартира в кирпичном доме, расположенном в оживленном районе города Казани. Рядом с домом расположены парк, крупные торгово-развлекательные центры, магазины, детский сад, школа, остановка общественного транспорта. В...
    • 33 м²
    • 1-ком
    • 1/3 эт.
    • 80%
    30 000 Р
    Агент
    +7 (986) Показать номер
    Посмотреть контакты
    1-к кв. Татарстан, Казань ул. Николая Ершова, 62Г (38.0 м) - Фото 1
    1-к кв. Татарстан, Казань ул. Николая Ершова, 62Г (38.0 м) - Фото 2
    1-комнатная квартира, общая площадь 38м²

    Сдается уютная однокомнатная квартира в Казани на улице Николая Ершова, 62Г. Общая площадь — 38 кв. м, расположена на 7 этаже из 11. Дом построен в 2016 году, материал постройки — кирпич. Высота потолков — 2.59 метра. Квартира находится в 6 минутах на...
    • 38 м²
    • 1-ком
    • 7/11 эт.
    • кирпичный
    30 000 Р
    Агент
    +7 (986) Показать номер
    Посмотреть контакты
    1-к кв. Татарстан, Казань ул. Николая Ершова, 62Г (38.0 м) - Фото 1
    1-к кв. Татарстан, Казань ул. Николая Ершова, 62Г (38.0 м) - Фото 2
    1-комнатная квартира, общая площадь 38м², жилая 20м², кухня 10м²

    Сдаётся уютная однокомнатная квартира в современном доме по адресу: улица Николая Ершова, 62Г, в Казани. Квартира расположена на 4-м этаже 10-этажного кирпичного дома 2016 года постройки. Общая площадь квартиры составляет 38 кв. м, жилая площадь — 20...
    • 38 м²
    • 1-ком
    • 4/10 эт.
    • 70%
    28 000 Р
    Агент
    +7 (986) Показать номер
    Посмотреть контакты
    1-к кв. Татарстан, Казань ул. Разведчика Ахмерова, 3А (40.0 м) - Фото 1
    1-к кв. Татарстан, Казань ул. Разведчика Ахмерова, 3А (40.0 м) - Фото 2
    1-комнатная квартира, общая площадь 40м², жилая 27м², кухня 8м²

    Добрый деньСдается 1-комнатная квартира длительно Ж.К.Арт Сити40 метров9 этажКондиционер Двух спальная кроватьВидео наблюдениеЗакрытый дворПарковкаОфициальный договор аренды
    • 40 м²
    • 1-ком
    • 9/20 эт.
    • кирпичный
    30 000 Р
    Агент
    +7 (987) Показать номер
    Посмотреть контакты

    Не нашли подходящего объявления?

    Оставьте заявку, и наши риэлторы подберут квартиру в районе Казани

    (0)