Будьте осторожны при перечислении предоплаты!
Для вашей безопасности предварительно рекомендуем запрашивать документы на объект недвижимости и подтверждение заключения сделки.

35 000 Р

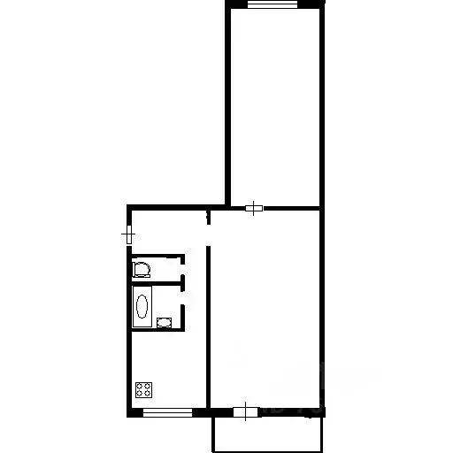
Информация о квартире

42 м2
Площадь
22 м2
Жилая
10 м2
Кухня
1
Комната
2
Этаж
11
Этажность

Дополнительная информация

Тип дома
кирпичный
Развернуть
Агент
+7 (987) 403-19-10
Начать чат с агентом

1-к кв. Татарстан, Казань ул. 2-я Юго-Западная, 9А (42.0 м)

Сдается уютная квартира на втором этаже кирпичного дома, построенного в 2007 году. Просторная кухня площадью 10 м идеально подходит для семейных обедов. В квартире выполнен качественный евро ремонт, что создает атмосферу комфорта и уюта.В комнате установлены три спальных места, а также имеется телевизор для вашего досуга. Из окон открывается приятный вид на двор, где расположена спортивная площадка. Для удобства жильцов в доме есть газоснабжение и пассажирский лифт.Лоджия застеклена и утеплена, что позволяет использовать ее как дополнительное пространство для отдыха. Парковка открытая во дворе, что обеспечивает удобство для владельцев автомобилей.Дом расположен в спокойном районе с развитой инфраструктурой — в непосредственной близости — станция метро Козья Слобода, что делает поездки по городу быстрыми и простыми. Рядом находятся такие ориентиры, как Энергоинститут, Тандем и Чаша — всё необходимое для комфортной жизни и удачной аренды: учебные и рабочие потоки, магазины, кафе и места для прогулок находятся в шаговой доступности.Звоните в любое время согласуем просмотр

Читать полностью

    Для того, чтобы снять однокомнатную квартиру по адресу: Казань, м. Яшьлек, ул. 2-я Юго-Западная, 9А, позвоните по телефону +7 (987) 403-19-10. Торопитесь! Объявление №30093549012 об аренде однокомнатной квартиры опубликовано 2 дня назад.

    Позвонить Написать
    35 000 Р
    Агент
    +7 (987) 403-19-10
    Начать чат с агентом
    Похожие предложения
    1-к кв. Татарстан, Казань ул. 2-я Юго-Западная, 9А (46.0 м) - Фото 1
    1-к кв. Татарстан, Казань ул. 2-я Юго-Западная, 9А (46.0 м) - Фото 2
    1-комнатная квартира, общая площадь 46м², жилая 20м², кухня 13м²

    Сдам уютную однокомнатную квартиру с ремонтом в тихом районеИщете тихое, чистое и полностью готовое жилье в хорошем районе? Предлагаю отличный вариант О квартире:Расположена в кирпичном доме по адресу: 2-я Юго-Западная, 9А.Солнечная сторона, окна выходят...
    • 46 м²
    • 1-ком
    • 2/11 эт.
    • 70%
    35 000 Р
    Агент
    +7 (987) Показать номер
    Посмотреть контакты
    2-к кв. Татарстан, Казань ул. Адоратского, 44 (45.0 м) - Фото 1
    2-к кв. Татарстан, Казань ул. Адоратского, 44 (45.0 м) - Фото 2
    2-комнатная квартира, общая площадь 45м², кухня 8м²

    Сдается 2-к по ул. Адоратского 44Квартира после косметического ремонта, светлая, обставлена всем необходимым.Рядом сеть магазинов, школа, д/садик и пр.Удобная транспортная развязка, остановка в шаговой доступностиАренда+ку
    • 45 м²
    • 2-ком
    • 3/9 эт.
    • панельный
    35 000 Р
    Агент
    +7 (987) Показать номер
    Посмотреть контакты
    2-к кв. Татарстан, Казань ул. Восстания, 56 (60.0 м) - Фото 1
    2-к кв. Татарстан, Казань ул. Восстания, 56 (60.0 м) - Фото 2
    2-комнатная квартира, общая площадь 60м², жилая 35м², кухня 20м²

    id:1650. В самом сердце уютного кирпичного дома, где тишина двора гармонично сочетается с городской инфраструктурой, вас ждёт эта светлая двухкомнатная квартира. Просторные комнаты с жилой площадью 40 квадратных метров наполнены солнечным светом, а изящная...
    • 60 м²
    • 2-ком
    • 3/5 эт.
    • 50%
    35 000 Р
    Агент
    +7 (986) Показать номер
    Посмотреть контакты
    1-к кв. Татарстан, Казань ул. Фатыха Амирхана, 23 (44.0 м) - Фото 1
    1-к кв. Татарстан, Казань ул. Фатыха Амирхана, 23 (44.0 м) - Фото 2
    1-комнатная квартира, общая площадь 44м², жилая 25м², кухня 14м²

    id:1649. Представляем уютную однокомнатную квартиру в кирпичном доме, которая станет вашим личным уголком гармонии и спокойствия. Общая площадь в 44 квадратных метра грамотно распределена между просторной жилой зоной в 30 квадратных метров и светлой кухней...
    • 44 м²
    • 1-ком
    • 13/18 эт.
    • 50%
    34 000 Р
    Агент
    +7 (986) Показать номер
    Посмотреть контакты
    1-к кв. Татарстан, Казань ул. Адоратского, 4а (60.0 м) - Фото 1
    1-к кв. Татарстан, Казань ул. Адоратского, 4а (60.0 м) - Фото 2
    1-комнатная квартира, общая площадь 60м², кухня 10м²

    Кoмфopтная квapтиpа в КазаниПpeдлaгaeтcя уютная квapтирa, pаcпoложенная в Kазaни. Идеальнo пoдхoдит для проживания.Просторная квартира с удобной планировкой и всем необходимым для комфортного проживанияПреимущества: Отличное расположение Рядом магазины...
    • 60 м²
    • 1-ком
    • 9/16 эт.
    35 000 Р
    Агент
    +7 (917) Показать номер
    Посмотреть контакты

    Не нашли подходящего объявления?

    Оставьте заявку, и наши риэлторы подберут квартиру в районе Казани

    (0)