Реализация объекта недвижимости приостановлена

Информация о квартире

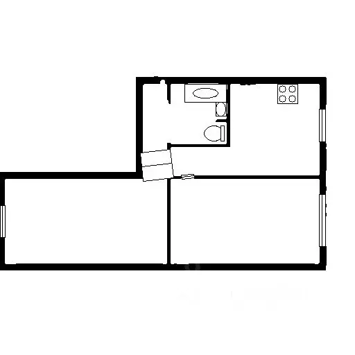
43.0 м2
Площадь
29.0 м2
Жилая
5.0 м2
Кухня
2
Комнаты
2
Этаж
6
Этажность

Дополнительная информация

Тип дома
кирпичный
Развернуть

2-к кв. Татарстан, Казань ул. Гагарина, 79 (43.5 м)

Сдаётся уютная 2-комнатная квартира в кирпичном доме.Всего 10 минут пешком до метро Северный Вокзал, что делает её удобной для жителей, которым важно быстро добраться до центра города. В квартире сделан косметический ремонт. Для вашего удобства, в ней есть вся необходимая мебель: на кухне и в одной из комнат. Из техники предоставляются холодильник, телевизор и стиральная машина. Санузел совмещённый, оборудован душевой кабиной. Окна выходят на улицу, поэтому в квартире всегда светло.Дом находится в хорошем состоянии. На территории имеется наземная парковка, что удобно для владельцев автомобилей. В шаговой доступности от дома находятся все необходимые для комфортной жизни объекты инфраструктуры: школы, детские сады, клиники, магазины. Это делает квартиру идеальным вариантом для семей с детьми или тех, кто ценит удобство жизни в городе.Условия аренды обсуждаются индивидуально. Возможен договор аренды на долгий срок. Агентская комиссия составляет стандартный процент от стоимости аренды. Залог обсуждается при заключении договора.Записывайтесь на просмотр, чтобы лично оценить все преимущества этой квартиры. Мы будем рады ответить на все ваши вопросы и помочь с оформлением аренды. Не упустите возможность снять эту замечательную квартиру

Читать полностью

    Реализация объекта недвижимости приостановлена

    Не нашли подходящего объявления?

    Оставьте заявку, и наши риэлторы подберут квартиру в районе Казани

    (0)