Будьте осторожны при перечислении предоплаты!
Для вашей безопасности предварительно рекомендуем запрашивать документы на объект недвижимости и подтверждение заключения сделки.

30 000 Р

Информация о квартире

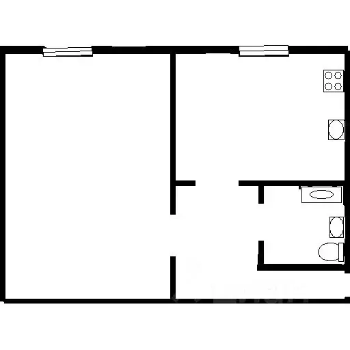
52 м2
Площадь
30 м2
Жилая
8 м2
Кухня
2
Комнаты
7
Этаж
9
Этажность

Дополнительная информация

Тип дома
панельный
Развернуть
Агент
+7 (986) 904-92-73
Начать чат с агентом

2-к кв. Татарстан, Казань ул. Маршала Чуйкова, 52 (52.0 м)

Сдаётся уютная двухкомнатная квартира площадью 52 кв. м в панельном доме на 7 этаже из 9. Светлая и просторная, с жилой площадью 30 кв. м и кухней 8 кв. м. Высота потолков 2,7 метра. В квартире есть лоджия, окна выходят во двор, поэтому вас не будут беспокоить шум и суета улиц.В квартире выполнен косметический ремонт, она полностью готова к проживанию. На кухне и в комнате есть мебель, чтобы вы могли сразу обустроиться. Для вашего комфорта установлены холодильник, телевизор и стиральная машина. В ванной комнате установлена ванна. Интернет подключён, что позволит вам оставаться на связи в любое время.Дом построен в 1977 году, оборудован пассажирским лифтом. На территории дома есть наземная парковка, поэтому можно не беспокоиться о месте для вашего автомобиля.В шаговой доступности находятся школы, детские сады, клиники и магазины, что делает район идеальным для семей с детьми. До метро Козья слобода можно добраться за 6 минут на автомобиле, что удобно для ежедневных поездок. Квартира идеально подходит для проживания семьи или пары.Приглашаем вас на просмотр квартиры, чтобы вы могли оценить её преимущества лично. Свяжитесь с нами, чтобы договориться о времени встречи.

Читать полностью

    Для того, чтобы снять двухкомнатную квартиру по адресу: Казань, м. Козья слобода, ул. Маршала Чуйкова, 52, позвоните по телефону +7 (986) 904-92-73. Торопитесь! Объявление №30091947599 об аренде двухкомнатной квартиры опубликовано 21 ноября 2025.

    Позвонить Написать
    30 000 Р
    Агент
    +7 (986) 904-92-73
    Начать чат с агентом
    Похожие предложения
    2-к кв. Татарстан, Казань Хибинская ул., 10а (55.0 м) - Фото 1
    2-к кв. Татарстан, Казань Хибинская ул., 10а (55.0 м) - Фото 2
    2-комнатная квартира, общая площадь 55м², кухня 16м²

    Сдается светлая и просторная 2-х комнатная квартира в Кировском районе. В пешей доступности множество магазинов, ресторанов и остановок общественного транспорта. Квартира в отличном состоянии с современным ремонтом. Полностью меблирована с комфортабельной...
    • 55 м²
    • 2-ком
    • 4/5 эт.
    • 70%
    30 000 Р
    Агент
    +7 (987) Показать номер
    Посмотреть контакты
    1-к кв. Татарстан, Казань ул. Четаева, 47 (31.9 м) - Фото 1
    1-к кв. Татарстан, Казань ул. Четаева, 47 (31.9 м) - Фото 2
    1-комнатная квартира, общая площадь 31м², жилая 18м², кухня 6м²

    id:1326. Однокомнатная квартира на Четаева - ваш идеальный выбор Что мы предлагаем?Приглашаем арендовать просторную и уютную квартиру, расположенную в тихом районе города.Это идеальное жилье для тех, кто хочет жить комфортно и удобно, наслаждаясь всеми...
    • 31 м²
    • 1-ком
    • 5/10 эт.
    • 100%
    29 000 Р
    Агент
    +7 (950) Показать номер
    Посмотреть контакты
    1-к кв. Татарстан, Казань ул. Абсалямова, 31 (34.0 м) - Фото 1
    1-к кв. Татарстан, Казань ул. Абсалямова, 31 (34.0 м) - Фото 2
    1-комнатная квартира, общая площадь 34м², жилая 18м², кухня 10м²

    id:569. Предложите себе возможность обрести уютное гнёздышко в прекрасном жилом комплексе Вас ждёт светлая и просторная однокомнатная квартира общей площадью 34 квадратных метра. Расположенная на втором этаже десятиэтажного дома, она обеспечит вам комфортное...
    • 34 м²
    • 1-ком
    • 2/10 эт.
    • 100%
    30 000 Р
    Агент
    +7 (987) Показать номер
    Посмотреть контакты
    1-к кв. Татарстан, Казань ул. Мусина, 57А (36.0 м) - Фото 1
    1-к кв. Татарстан, Казань ул. Мусина, 57А (36.0 м) - Фото 2
    1-комнатная квартира, общая площадь 36м², жилая 19м², кухня 7м²

    Сдается уютная однокомнатная квартира площадью 36 кв. м.В квартире есть косметический ремонт, что создает приятную атмосферу. Комната и кухня обставлены необходимой мебелью, а также в квартире есть вся нужная техника: холодильник, телевизор и стиральная...
    • 36 м²
    • 1-ком
    • 3/5 эт.
    30 000 Р
    Агент
    +7 (919) Показать номер
    Посмотреть контакты
    1-к кв. Татарстан, Казань ул. Абсалямова, 32 (36.0 м) - Фото 1
    1-к кв. Татарстан, Казань ул. Абсалямова, 32 (36.0 м) - Фото 2
    1-комнатная квартира, общая площадь 36м², кухня 7м²

    Сдается уютная однокомнатная квартира в Ново-Савиновском районе на ул.Абсалямова.В квартире имеется вся необходимая техника и мебель для комфортного проживания. Развитая инфраструктура: продуктовые магазины, аптеки, общественные парки и т.д. Остановки...
    • 36 м²
    • 1-ком
    • 6/10 эт.
    • 70%
    30 000 Р
    Агент
    +7 (986) Показать номер
    Посмотреть контакты

    Не нашли подходящего объявления?

    Оставьте заявку, и наши риэлторы подберут квартиру в районе Казани

    (0)