Россия, Республика Татарстан, Казань, ул. Центральная Константиновка, дом 72В
6 950 000 Р 88 840 $ или 75 470

Информация о таунхаусе

90 м2
Площадь
2013
Построен
2
Этажность

Состояние и оснащение

Год постройки
2013
Развернуть
Агент
ФЛЭТ
+7 (843) 231-83-44
Начать чат с агентом

Продажа таунхауса, Казань, ул. Центральная Константиновка

Объект №114382 Просторный таунхаус в удобной локацииОтличный вариант дома для семьи.
Дом разделен на 4 секции, у каждого таунхауса свой изолированный вход. Участки разделены заборами. Спокойные тихие соседи гарантируют максимально комфортное проживание.
На территории есть просторная кирпичная пристройка, которую можно переоборудовать в баню, либо перестроить и организовать гриль-зону.

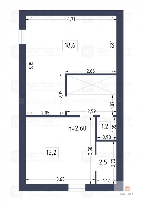
Продуманная планировка дома площадью 90 кв.м. позволяет свободно разместиться большой семье:
Кухня-гостиная - 22,7 кв.м.
Комната 1 - 17,5 кв.м.
Комната 2 - 15,2 кв.м.
Комната 3 - 18,6 кв.м.

Дом в отличном состоянии, несколько лет назад был произведен косметичсекий ремонт на первом этаже.
Низкие коммунальные платежи: летом 2,5 тыс. руб, зимой примерно, при использовании всех коммуникаций без экономии.
Коммуникации: централизованное водоснабжение, канализация - 2 септика (откачивают раз в год), газ - 2х контурный котел.
На первом этаже - теплые полы по всей площади. 2 большие гардеробные на 1м и 2м этаже.

ВАЖНО:
— Взрослый собственник – простая сделка;
— Юридически чистый проверенный объект;
— Без долгов и обременений;
— Быстрый выход на сделку.

ПРЕИMУЩECТBA района:
— транспортная доступность во все районы города, до центра 20 минут;
— на территории Жилого Массива располагаютя поликлиника, дом культуры (детские кружки), лесопарковая зона, аптеки, магазины, рынок.
— в шаговой доступности школа № 47 и гимназия № 184, детские сады № 177, 178, 148.
— на территории поселка ЕСТЬ все необходимое для комфортного проживания.

Читать полностью

    Для того, чтобы купить квартирутаунхаус по адресу: Казань, Советский, ул. Центральная Константиновка, дом 72В, позвоните по телефону +7 (843) 231-83-44. Торопитесь! Объявление №506729149 о продаже -1-комнатного таунхауса опубликовано Сегодня.

    Позвонить Написать
    6 950 000 Р88 840 $ или 75 470
    Агент
    ФЛЭТ
    +7 (843) 231-83-44
    Начать чат с агентом
    Похожие предложения
    Таунхаус в Татарстан, Казань ул. Литвинова, 14 (86 м) - Фото 1
    Таунхаус в Татарстан, Казань ул. Литвинова, 14 (86 м) - Фото 2
    1 этаж, общая площадь 86м², участок 2 сотки

    Продается просторная часть дома с полностью независимым входом, представляющая собой по сути готовое домовладение в составе добротного строения.Ключевым преимуществом является развитая инфраструктура участка: в вашем распоряжении окажется капитальный...
    • 1 эт.
    • 86 м²
    • 2 сот.
    7 000 000 Р
    Агент
    +7 (986) Показать номер
    Посмотреть контакты
    Таунхаус в Калужская область, Калуга городской округ, д. Желыбино ул. ... - Фото 1
    Таунхаус в Калужская область, Калуга городской округ, д. Желыбино ул. ... - Фото 2
    3 этажа, общая площадь 269м², участок 12 соток

    Секция 1 в трехсекционном таунхаусе расположена в живописном районе деревни Желыбино на улице Солнечной. Дом построен в 2022 году из газобетона, подъездные пути асфальтированы. Земельный участок 12.16 соток.Общая площадь секции составляет 269,5 кв.м,...
    • 3 эт.
    • 269 м²
    • 12 сот.
    7 100 000 Р
    Агент
    +7 (910) Показать номер
    Посмотреть контакты
    Таунхаус в Новосибирская область, Мошковский район, с. Новомошковское ... - Фото 1
    Таунхаус в Новосибирская область, Мошковский район, с. Новомошковское ... - Фото 2
    1 этаж, общая площадь 96м², участок 9 соток

    В продаже просторный 4 х комнатный дом (квартира на земле) Земельный участок 9,3 сотки в перспективном, активно развивающемся направлении.Дом облагораживали для собственного проживания, все делали качественно и на долгие годы.Конструктив дома выполнен...
    • 1 эт.
    • 96 м²
    • 9 сот.
    7 000 000 Р
    Агент
    +7 (934) Показать номер
    Посмотреть контакты
    Таунхаус в Пензенская область, Пенза Казанская ул., 50 (84 м) - Фото 1
    Таунхаус в Пензенская область, Пенза Казанская ул., 50 (84 м) - Фото 2
    1 этаж, общая площадь 84м², участок 994 сотки

    Код объекта: 1914035.Продается просторный таунхаус в престижном районе ГПЗ по ул. Казанская, 50Уютный и полностью готовый к проживанию таунхаус с современной отделкой и всем необходимым для комфортной жизни. Не тратьте время на ремонт — заезжайте и живите...
    • 1 эт.
    • 84 м²
    • 994 сот.
    7 000 000 Р
    Агент
    +7 (908) Показать номер
    Посмотреть контакты
    Таунхаус в Хакасия, Усть-Абаканский район, с. Калинино ул. Кремлевская ... - Фото 1
    Таунхаус в Хакасия, Усть-Абаканский район, с. Калинино ул. Кремлевская ... - Фото 2
    2 этажа, общая площадь 140м², участок 2 сотки

    Предлагаются таунхаусы каркасного типа от застройщика коттеджного поселка ДОБРЫЙ MИР .Можно приобрести таунхаус по программе СЕМЕЙHАЯ ипотека 6 СЕЛЬСКАЯ ИПОTЕKА 3 Это закрытый посёлок клубного типа, расположенный в живописном месте с развивающейся инфраструктурой,...
    • 2 эт.
    • 140 м²
    • 2 сот.
    7 000 000 Р
    Агент
    +7 (913) Показать номер
    Посмотреть контакты

    Не нашли подходящего объявления?

    Оставьте заявку, и наши риэлторы подберут таунхаус в районе Казани

    (0)