47 000 000 Р 596 800 $ или 516 300

Информация об помещении

1
Этаж

Состояние и оснащение

Количество этажей
5
Развернуть
Агент
+7 (917) 863-10-73
Начать чат с агентом

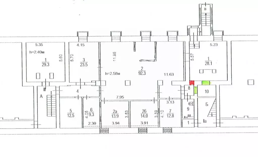
Помещение свободного назначения (162.2 м)

Продается ГАБ- нежилое помещение . Площадью 162,2 кв.м. - Первая линия, первый этаж с отдельной входной группойДоговор аренды заключен 25.10.2022 года с Сетевым Арендатором (сеть магазинов «Русалка ) сроком на 5 лет. Сеть магазинов «Русалка арендует данное помещение с 2016 года. Второй арендатор сеть магазинов «Ермолино .Соседние помещения по этому же адресу занимают: Сбербанк, Инвинтро, Аптека Вита, Универсам, Зоомагазин. Рядом расположены «Вкусно и точка , сквер с игровыми площадками. Большой пешеходный и автомобильный трафик.Постоянная Арендная плата составляет в месяц. Коммунальные платежи оплачивает Арендатор. Постоянная арендная плата по договору может изменяться один раз в год не более чем на 10 от размера постоянной арендной платы.Код пользователя: 5379Номер в базе: 3820735

Читать полностью
    Позвонить Написать
    47 000 000 Р596 800 $ или 516 300
    Агент
    +7 (917) 863-10-73
    Начать чат с агентом
    Похожие предложения
    Помещение свободного назначения в Татарстан, Казань ул. Баумана, 30 ... - Фото 1
    Помещение свободного назначения в Татарстан, Казань ул. Баумана, 30 ... - Фото 2
    Продается помещение под мини-отель (хостел) на улице Баумана.Площадь 130 м2 первый этаж + 30 м2 подвалРасположен в исторической части города. В шаговой доступности метро Кремлевская , общественный транспорт, железнодорожный вокзал.Окружение: улицы Баумана,...
    • 1/3 эт.
    46 400 000 Р
    Агент
    +7 (986) Показать номер
    Посмотреть контакты
    Помещение свободного назначения в Татарстан, Набережные Челны пос. ... - Фото 1
    Помещение свободного назначения в Татарстан, Набережные Челны пос. ... - Фото 2
    От собственника Без комиссии Продается помещение свободного назначения ул.Гагарина, д.35А- 1й, 2й этажи- С ремонтом- Высокие потолки- Имеется санузел, всё необходимое для комфортной работы - Предусмотрена большая парковка - Видеонаблюдение Данное помещение...
    • 1/2 эт.
    48 000 000 Р
    Агент
    +7 (917) Показать номер
    Посмотреть контакты
    Помещение свободного назначения в Томская область, Томск ул. 3-я ... - Фото 1
    Помещение свободного назначения в Томская область, Томск ул. 3-я ... - Фото 2
    Готовый бизнес-центр / Здание под ключ Газ, парковка, высокая проходимость. 666 кв.м. Коммерческое здание 2 этажа + цоколь 240м. 9 соток. Своя парковка. Ввод 2019г. 3. Продажа доходного здания. Отличное состояние (2019). Газ, вода, канализация. Транспортный...
    • 2/2 эт.
    48 000 000 Р
    Агент
    +7 (913) Показать номер
    Посмотреть контакты
    Помещение свободного назначения в Москва Люсиновская ул., 66 (240 м) - Фото 1
    Помещение свободного назначения в Москва Люсиновская ул., 66 (240 м) - Фото 2
    Арт.Продаётся коммерческое помещение в центре Москвы. Помещение свободного назначения, подойдёт под любой вид деятельности: магазин, спа салон, салон красоты, услуги, доставка и т. д. Как ИНВЕСТИЦИЯ, помещение сдаётся, окупаемость 13 лет. Ремонт хороший....
    • -1/6 эт.
    47 500 000 Р
    Агент
    +7 (933) Показать номер
    Посмотреть контакты
    Помещение свободного назначения в Москва Ленинский просп., 79 (31 м) - Фото 1
    Помещение свободного назначения в Москва Ленинский просп., 79 (31 м) - Фото 2
    1076237. Предлагаем помещение свободного назначения, площадью 30.6 кв. м, расположенное на первом этаже 9-этажного жилого дома. Без комиссии для покупателя.Преимущества объекта:-первая линия Ленинского проспекта;-50 м от станции метро Вавиловская ;-удобная...
    • 1/9 эт.
    46 000 000 Р
    Агент
    +7 (938) Показать номер
    Посмотреть контакты

    Не нашли подходящего объявления?

    Оставьте заявку, и наши риэлторы подберут псн в районе Казани

    (0)