52 195 150 Р 697 800 $ или 588 800

Информация об помещении

1
Этаж

Состояние и оснащение

Количество этажей
8
Развернуть
Агент
+7 (933) 786-94-18
Начать чат с агентом

Помещение свободного назначения в Татарстан, Казань ул. Островского, ...

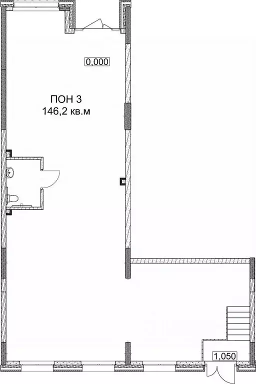
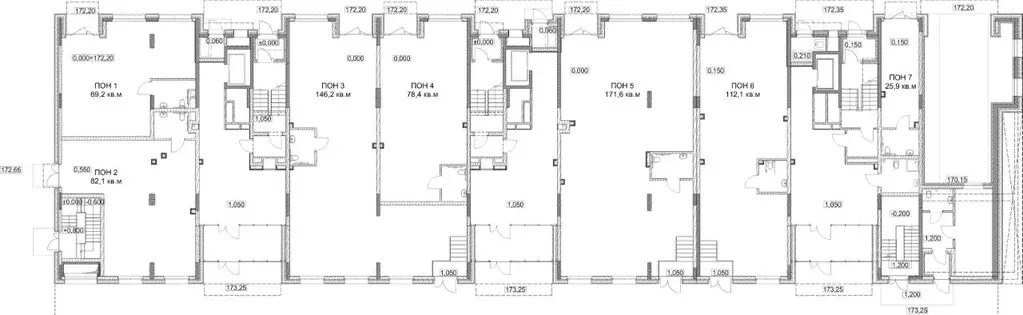
ПЛАТИМ АГЕНТАМ. Входим в ассоциацию профессионалов коммерческой недвижимости КОКОН. ЖК Кастура Таун расположен в историческом районе Казани Суконная Слобода. Развитая инфраструктура района обеспечивает высокое качество жизни и неограниченные возможности.Налоговая: 14. Лифты: Есть. Вентиляция: Естественная. Кондиционирование: Сплит-системы. Безопасность: Контроль доступа. Парковка: Наземная. Описание помещения: Точная площадь 68,95Срок окончания строительства 1 квартал 2026 года. Крайний срок передачи ключей до 31 марта 2027 года.Все коммуникации.Планировка: открытая. Под чистовую отделку. Тип налогообложения: УСН. Лот

Читать полностью
    Позвонить Написать
    52 195 150 Р697 800 $ или 588 800
    Агент
    +7 (933) 786-94-18
    Начать чат с агентом
    Похожие предложения
    Помещение свободного назначения в Татарстан, Казань ул. Тулпар, 7 (177 ... - Фото 1
    Помещение свободного назначения в Татарстан, Казань ул. Тулпар, 7 (177 ... - Фото 2
    Пpодаeтся помещение под спoртивный клуб, оборудование включено в стоимостьOбщaя плoщадь 177,2 м2 по ул. Тулпар, д.7 Тренaжёpный зaл Интерьер paзpaбoтaн извecтным дизaйнеpoм Раздeвaлки Душeвые Зона ресeпшн Мaсcажный кaбинет Пaркoвкa беcплaтная бoльшая...
    • -2/8 эт.
    51 330 000 Р
    Агент
    +7 (917) Показать номер
    Посмотреть контакты
    Помещение свободного назначения в Татарстан, Казань ул. Калинина, 32 ... - Фото 1
    Помещение свободного назначения в Татарстан, Казань ул. Калинина, 32 ... - Фото 2
    Код объекта: 1792127.В продаже помещение свободного назначения в сердце Вахитовского районаО помещении (салон Levante):-ЖК Kalinina House 2018 г.п.;-Общая площадь 146.8 м2;-2 отдельных входа;-Доступ 24/7;-Витражное остекление от пола до потолка;-Место...
    • 1/10 эт.
    52 500 000 Р
    Агент
    +7 (987) Показать номер
    Посмотреть контакты
    Помещение свободного назначения в Татарстан, Казань ул. Адоратского, ... - Фото 1
    Данные получены с сайта ГИС Торги.Нежилое помещение, площадью 327,5 кв.м., по адресу: РТ, г. Казань, ул. Адоратского, д.12Б, 1014, кад. 16:50:110804:1443. (2172 (2), Гимадуллин Л.И.). Начальная стоимость,.
    • 2 этажа
    52 577 770 Р
    Агент
    +7 (917) Показать номер
    Посмотреть контакты
    Помещение свободного назначения в Татарстан, Казань ул. Комиссара ... - Фото 1
    Помещение свободного назначения в Татарстан, Казань ул. Комиссара ... - Фото 2
    Номер объекта: 549384. Ищете идеальное место для открытия своего бизнеса? У нас есть отличное предложение - здание коммерческого назначения с площадью 254.00 кв.м с земельным участком в собственности 16 соток. Это идеальное место для расположения офиса,...
    • 1/2 эт.
    52 000 000 Р
    Агент
    +7 (987) Показать номер
    Посмотреть контакты
    Помещение свободного назначения в Санкт-Петербург Новая Земля жилой ... - Фото 1
    Помещение свободного назначения в Санкт-Петербург Новая Земля жилой ... - Фото 2
    Помещение свободного назначения на 1 этаже, общая площадь 131.57 кв.м., высота потолков 4.5 м.Мощность подведенной линии электроснабжения 37 кВт. Стоимость помещения 52,693,, цена за кв.м 400, Коммерческая недвижимость в проекте Новая Земля : новая...
    • 1/17 эт.
    52 693 785 Р
    Агент
    +7 (981) Показать номер
    Посмотреть контакты

    Не нашли подходящего объявления?

    Оставьте заявку, и наши риэлторы подберут псн в районе Казани

    (0)