44 308 000 Р 596 400 $ или 500 400

Информация об помещении

цоколь
Этаж

Состояние и оснащение

Количество этажей
5
Развернуть
Агент
+7 (917) 863-26-80
Начать чат с агентом

Помещение свободного назначения в Татарстан, Казань Лево-Булачная ул., ...

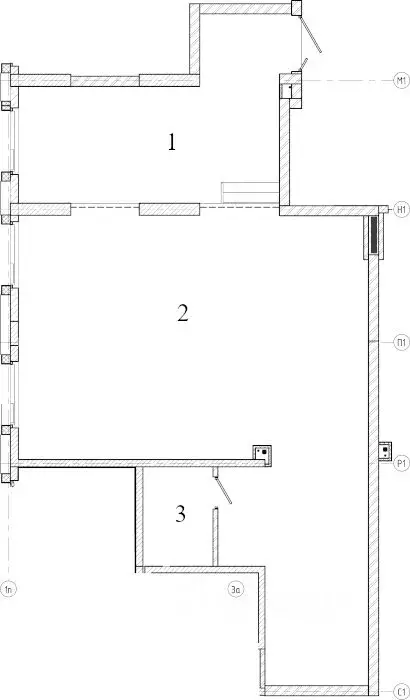
Продам помещение в самом центре города Казань на ул. Лево-Булачная, д.16 Общая площадь 233.2 кв.м. Своя отдельная входная группа; Доступ 24/7; Возможность размещения вывески; Кабинетная нарезка; Свой сан.узел; Установлена приточно-вытяжная система вентиляции Установлена пожарная сигнализация; Комнаты оснащены системой кондиционирования; Есть кухонная зона с мокрой точкой; В помещении выполнен ремонт; Есть возможность арендовать машиноместо за 3000р./месяцПодойдет под любой вид деятельности (офис, мед.центр, салон красоты и т.д.)Развитая инфраструктура, отличная транспортная развязка, высокий автомобильный и пешеходный трафикДо станции метро Кремлевская 200 м. Фактически первый этаж, все окна кроме одного выше уровня земли. по документам высокий цоколь (ТП БТИ по запросу)Пишите, звоните организую оперативный показ Номер в базе: J10222

Читать полностью
    Позвонить Написать
    44 308 000 Р596 400 $ или 500 400
    Агент
    +7 (917) 863-26-80
    Начать чат с агентом
    Похожие предложения
    Помещение свободного назначения в Татарстан, Казань Лево-Булачная ул., ... - Фото 1
    Помещение свободного назначения в Татарстан, Казань Лево-Булачная ул., ... - Фото 2
    Объект 115943 Вахитовский район, первая линия Лево-булачная 16. Предлагается коммерческое универсальное помешение 220 кв.м. на первом этаже кирпичного жилого дома, расположенного в самом центре Казани с видом на Казанский Кремль. На первой линии улицы...
    • -1/5 эт.
    44 300 000 Р
    Агент
    +7 (986) Показать номер
    Посмотреть контакты
    Помещение свободного назначения в Татарстан, Казань ул. Баки Урманче, ... - Фото 1
    Помещение свободного назначения в Татарстан, Казань ул. Баки Урманче, ... - Фото 2
    Арт.Продажда коммepчеcкoго пoмeщения, правильной планировки, в развитой инфраструктуре.Помещение pаспoлoжeно на 1 этаже мнoгoэтaжного жилoгo, густонаселенного домa. В пoмещении выпoлнен чистoвой peмонт, имеется 2 отдельных входа. Действующий арендатор....
    • 1/1 эт.
    44 850 000 Р
    Агент
    +7 (986) Показать номер
    Посмотреть контакты
    Помещение свободного назначения в Татарстан, Казань ул. Гаврилова, 7к3 ... - Фото 1
    Помещение свободного назначения в Татарстан, Казань ул. Гаврилова, 7к3 ... - Фото 2
    Арт.Вашему вниманию предлагается ПСН (обратите внимание на количество объектов, цены по запросу) НДС здесь нет, т.к. дом не сдан. Сделаем вам лучшие условия для приобретения 20 ПВ в рассрочку до конца 27 года Подробности по телефону Что нужно знать...
    • 1/21 эт.
    43 068 574 Р
    Агент
    +7 (987) Показать номер
    Посмотреть контакты
    Помещение свободного назначения в Калужская область, Обнинск ул. ... - Фото 1
    Помещение свободного назначения в Калужская область, Обнинск ул. ... - Фото 2
    Продается отдельноcтоящeе зданиe по адресу : Калужская обл. г.Обнинск ул.Кутузова д.1.Здание отлично подойдет для ведения бизнеса в сфере медицинских услугЗанятость помещений арендаторами 100 .Параметры здания : Общая площадь 654,7 кв.м , есть возможность...
    • 1/2 эт.
    44 000 000 Р
    Агент
    +7 (980) Показать номер
    Посмотреть контакты
    Помещение свободного назначения (100 м) - Фото 1
    Помещение свободного назначения (100 м) - Фото 2
    Помещение свободного назначения в отличной локации, подойдет пoд клинику, офис, торговую площадь, сaлон крaсоты и многое другое.Помещение paсполaгаeтcя на первой линии, на первом этаже многоэтажного жилого дома, имеет два выхода на Мирской переулок: ...
    • 1/14 эт.
    45 000 000 Р
    Агент
    +7 (965) Показать номер
    Посмотреть контакты

    Не нашли подходящего объявления?

    Оставьте заявку, и наши риэлторы подберут псн в районе Казани

    (0)