5 500 000 Р 72 220 $ или 60 930

Информация об помещении

цоколь
Этаж

Состояние и оснащение

Количество этажей
4
Развернуть
Агент
+7 (986) 901-46-62
Начать чат с агентом

Помещение свободного назначения в Татарстан, Казань Петербургская ул., ...

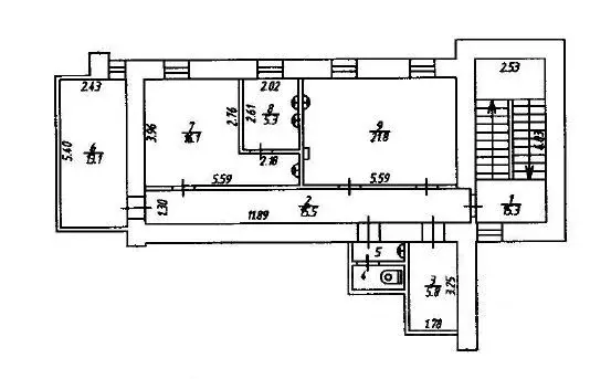
Объект 111599 Офис в самом центре г. Казань Петербургская 25В.Предлагается нежилое помещение 43,3 кв.м. на цокольном/4 этажного кирпичного, отдельно стоящего административного здания 2006 г.п., расположенного в самом центре г. Казань. На второй линии пешеходной улицы Петербургская в 100 м. от центральной станции метро Площадь Тукая . Рядом расположены, КФУ, ул. Баумана, ТЦ Кольцо и ТЦ Республика .Отлично подходит для использования под оказание услуг или офисной деятельности.Офис представлен в предчистовой отделке, стены оштукатурены и зашпаклеваны, стяжка пола, разводка лучевого отопления и электричества, выведены коммуникации (централизованные водоснабжение и канализация), установлены новые входная дверь, пластиковое окно, алюминиевый секционный радиатор. Высота потолка 3 метра.Прямой проход к зданию с ул. Петербургская и пер. Щербаковский. Парковка во дворе, подъездной путь с ул.Айдинова и Щербаковского переулка.Документы подготовлены, чистая продажа, ключи в день сделки Сохраните объявление в избранное, чтобы не потерять выгодный объект• Полное юридическое сопровождение сделки + проверка по реестрам• Электронная регистрация — быстро, без очередей и визитов в МФЦ• Поможем с оценкой доходности, назначением, подбором арендатора• Прозрачные условия — без скрытых комиссий и переплат Звоните с 8:00 до 20:00 или пишите — ответим оперативноОбъявление носит информационный характер, не является публичной офертой.

Читать полностью
    Позвонить Написать
    5 500 000 Р72 220 $ или 60 930
    Агент
    +7 (986) 901-46-62
    Начать чат с агентом
    Похожие предложения
    Помещение свободного назначения в Татарстан, Казань ул. Оренбургский ... - Фото 1
    Помещение свободного назначения в Татарстан, Казань ул. Оренбургский ... - Фото 2
    Объект 100887 Коммерческое помещение Успейте купить по выгодной цене Окупаемость всего 5 лет В продаже коммерция, на первом этаже гостиничного комплекса. Со своим отдельным входом и большой парковкой.На данный момент в нем расположена сауна с бассейном...
    • 1/5 эт.
    5 500 000 Р
    Агент
    +7 (986) Показать номер
    Посмотреть контакты
    Помещение свободного назначения в Татарстан, Лениногорск Тукая ул., 27 ... - Фото 1
    Помещение свободного назначения в Татарстан, Лениногорск Тукая ул., 27 ... - Фото 2
    Продается помещение в центре г.Лениногорска, ул.Тукая, 27Возможное использование: офисы, магазины, общепит, ПВЗ (пункт выдачи заказов), досуговый центр, ателье.Первая линия, центр города, расположено на первом этаже жилого дома, 2 входа (с улицы и со...
    • 1/4 эт.
    5 500 000 Р
    Агент
    +7 (987) Показать номер
    Посмотреть контакты
    Помещение свободного назначения в Татарстан, Зеленодольск просп. ... - Фото 1
    Помещение свободного назначения в Татарстан, Зеленодольск просп. ... - Фото 2
    Продается Готовый арендный БИЗНЕС Жилой комплекс в центре города. Помещение свободного назначения на 1 этаже 18-этажного дома. Площадь составляет 45.70 квадратных метров.Помещение с ремонтом и готовым арендатором Wildberries Отдельный вход с улицы обеспечит...
    • 1/18 эт.
    5 500 000 Р
    Агент
    +7 (987) Показать номер
    Посмотреть контакты
    Помещение свободного назначения в Мордовия, Саранск Строительная ул., ... - Фото 1
    Помещение свободного назначения в Мордовия, Саранск Строительная ул., ... - Фото 2
    Продается коммерческое помещение площадью 123.2 кв.м в центре города Саранска.Помещение свободного назначения, подойдет практически под любой вид деятельности (приоритет магазин авто-запчастей, строительные материалы, шиномонтаж и т.п.)В помещении сделан...
    • 1/1 эт.
    5 500 000 Р
    Агент
    +7 (996) Показать номер
    Посмотреть контакты
    Помещение свободного назначения в Новосибирская область, Новосибирск ... - Фото 1
    Помещение свободного назначения в Новосибирская область, Новосибирск ... - Фото 2
    Продается коммерческое помещение на первом этаже жилого дома. Сейчас размещается салон. Помещение с двумя входами, двумя санузлами.Мы предлагаем стильное и функциональное офисное помещение в спальном районе с большой плотностью населения stroyfond-9128841...
    • 1/12 эт.
    5 500 000 Р
    Агент
    +7 (983) Показать номер
    Посмотреть контакты

    Не нашли подходящего объявления?

    Оставьте заявку, и наши риэлторы подберут псн в районе Казани

    (0)