200 000 000 Р 2 630 300 $ или 2 252 500

Информация о помещении и здании

1
Этаж
2
Этажность
Развернуть
Агент
+7 (917) 223-39-04
Начать чат с агентом

Офис (2682 м)

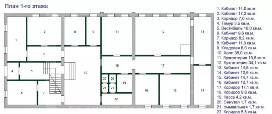
Готовый арендный бизнес с окупаемостью менее 10 лет | Приволжский район, Казань Площадь здания: 2 681,5 м Этажность: 2 этажа + цоколь Высота потолков: до 3,52 м Мощность: 149,5 кВт Коммуникации: все центральные Входов: 15 (9 на 1 этаж, 6 на 2 этаж) Год постройки: 2013 Земельный участок: 5 110 м (в аренде до 2027 г.) Огороженная территория с 6 воротами Инвестиционная привлекательность Объект полностью сдан в аренду одному крупному, надёжному арендатору Долгосрочный договор аренды на 5 лет с ежегодной индексацией по ИПЦ Арендная плата:уб/мес Все коммунальные платежи и аренда земли за счёт арендатора Окупаемость: 9 лет 8 месяцев с учётом ежегодной индексации За 5 лет чистый арендный доход составит более руб Расположение Приволжский район г. Казани Встроенно-пристроенное здание внутри жилого комплекса Солнечный город Хороший подъезд, высокая плотность населения стабильный поток клиентов Стоимость:уб Идеально подойдёт для инвестора, желающего получать пассивный доход с защитой от инфляции и высокой ликвидностью. Плюсы объекта Стратегическое расположение внутри густонаселённого района Современное здание с универсальной планировкой Надёжный арендатор с долгосрочными обязательствами Отсутствие операционных затрат для собственника Объект №.

Читать полностью
    Позвонить Написать
    200 000 000 Р2 630 300 $ или 2 252 500
    Агент
    +7 (917) 223-39-04
    Начать чат с агентом
    Похожие предложения
    1-й этаж, всего 2 этажа

    Готовый арендный бизнес (ГАБ). Доходность 5 , окупаемость до 20.49 лет.Административное здание рядом с железнодорожной станцией Boccтаниe-Гpузовaя. Высокий пешеходный и автомобильный трафик. Налоговая: 58. Лифты: Нет. Вентиляция: Приточно-вытяжная. Кондиционирование:...
    • 1/2 эт.
    209 000 000 Р
    Агент
    +7 (933) Показать номер
    Посмотреть контакты
    Офис в Татарстан, Казань ул. Карла Маркса, 12а (675 м) - Фото 1
    1-й этаж, всего 2 этажа

    Особняк в самом сердце исторического центра Казани.Налоговая: 55. Лифты: Нет. Вентиляция: Приточно-вытяжная. Кондиционирование: . Безопасность: . Парковка: . Описание помещения: Здание после реставрации.Газовое автономное отопление.Новые современные...
    • 1/2 эт.
    190 000 000 Р
    Агент
    +7 (933) Показать номер
    Посмотреть контакты
    1-й этаж, всего 2 этажа

    Особняк в самом сердце исторического центра Казани.Налоговая: 55. Лифты: Нет. Вентиляция: Приточно-вытяжная. Кондиционирование: . Безопасность: . Парковка: . Описание помещения: Здание после реставрации.Газовое автономное отопление.Новые современные...
    • 1/2 эт.
    190 000 000 Р
    Агент
    +7 (933) Показать номер
    Посмотреть контакты
    Офис в Москва Лефортовский пер., 12/50С2 (703 м) - Фото 1
    Офис в Москва Лефортовский пер., 12/50С2 (703 м) - Фото 2
    1-й этаж, всего 2 этажа

    Предложение на продажу 62972.Предлагается на продажу здание в Лефортовском переулке, ЦАО, г. Москва. Шаговая доступность от ст. метро Бауманская . Отличная видимость и транспортная доступность. Высокий рекламный потенциал и места для размещения вывесок.....
    • 1/2 эт.
    204 000 000 Р
    Агент
    +7 (989) Показать номер
    Посмотреть контакты
    Офис в Москва Большой Сухаревский пер., 17С2 (825 м) - Фото 1
    Офис в Москва Большой Сухаревский пер., 17С2 (825 м) - Фото 2
    1-й этаж, всего 2 этажа

    ID 6316. Отдельно стоящий, офисный особняк класса С, расположен в престижном деловом центре Москвы.Охраняемая территория. В ближайшем окружении офисы крупных банков и компаний, дипломатические представительства, кафе, рестораны, салоны красоты, торговые...
    • 1/2 эт.
    199 000 000 Р
    Агент
    +7 (919) Показать номер
    Посмотреть контакты

    Не нашли подходящего объявления?

    Оставьте заявку, и наши риэлторы подберут офис в районе Казани

    (0)