20 950 000 Р

Информация о квартире

83.7 м2
Площадь
50.0 м2
Жилая
28.9 м2
Кухня
2
Комнаты
3
Этаж
17
Этажность
50 м2
Площадь комнат
2021
Построен

Состояние и оснащение

Наличие балкона
есть

Дополнительная информация

Тип продажи
свободная
Собственников
1
Развернуть
Агент
ФЛЭТ
+7 (843) 231-83-44
Начать чат с агентом

Продажа квартиры, Казань, ул. Достоевского

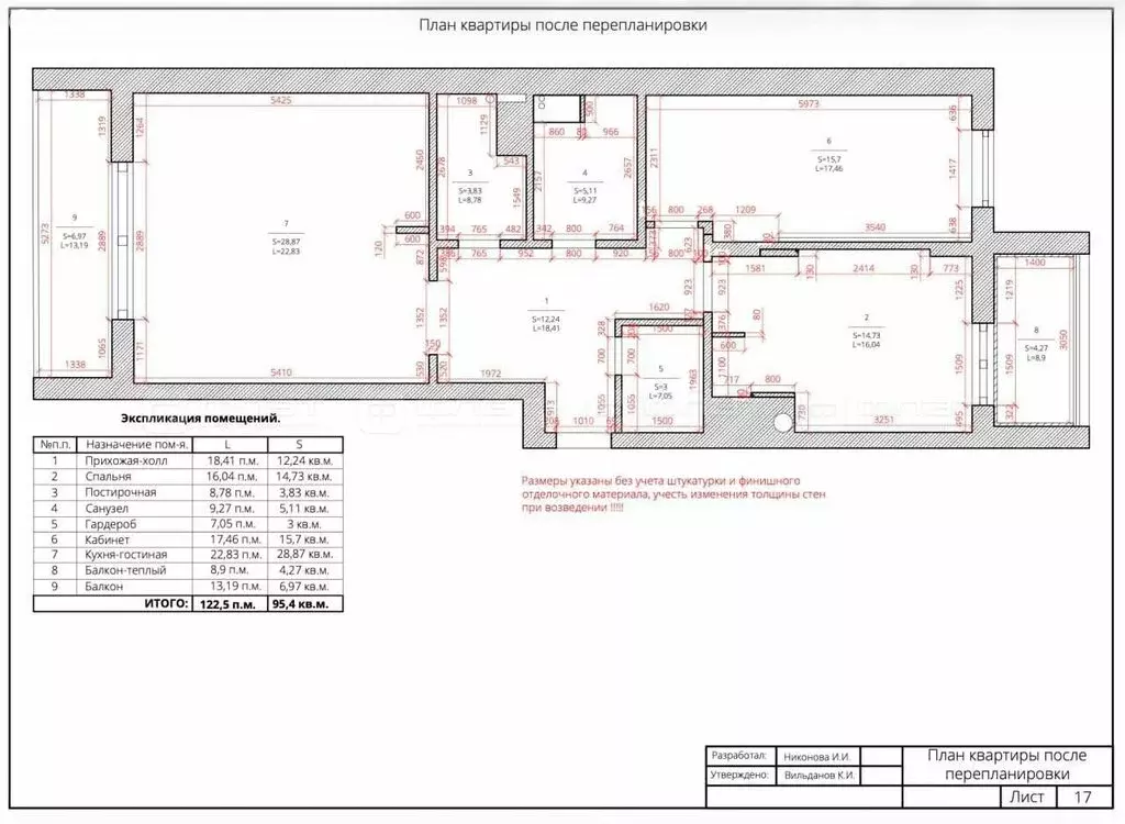
Объект №117600 Квартира в центре городаПредставляем вашему вниманию просторную квартиру с продуманной до мелочей планировкой, где каждый квадратный метр использован максимально эффективно. Общая площадь составляет 95 кв.м., что наглядно демонстрирует продуманность пространства. Здесь нет ощущения тесноты, а все помещения – от гостиной до спальни – комфортны и вместительны.
Квартира обладает уникальным преимуществом – окна выходят на обе стороны дома, обеспечивая отличное естественное освещение и проветривание. Наслаждайтесь видами с просторной лоджии в гостиной и уютного балкона в спальне. А из окна спальни открывается живописный вид на торговый центр "Корстон", расположенный всего в пяти минутах ходьбы.
Дизайн интерьера выполнен по проекту известного дизайнера Ирины Никоновой. Каждый элемент, каждая деталь были тщательно продуманы с учетом эргономики и эстетики, что создает неповторимую атмосферу уюта и стиля.
Квартира практически не использовалась, поэтому всё здесь дышит новизной и свежестью. Вы не найдете здесь компромиссных решений или дешевых материалов – всё выполнено с любовью и заботой о будущем владельце.
К вашим услугам отдельная постирочная, оснащенная современной дорогой техникой, включая стиральную и сушильную машины с функцией паровой обработки. Также имеется посудомоечная машина и водонагреватель. Для вашего удобства предусмотрена отдельная гардеробная, уютная спальня, функциональный кабинет (или детская), а также просторная гостиная, объединенная с кухней.
Кухонная зона оборудована микроволновой печью, "умным" чайником и системой фильтрации воды с обратным осмосом.
В каждой комнате установлены сплит-системы для поддержания комфортного микроклимата.
Для досуга – 65-дюймовый игровой телевизор. В спальне вас ждет широкая кровать (180 см) с эксклюзивным ортопедическим
матрасом от "Асконы" толщиной 30 см. Диваны и вся мягкая мебель обиты износостойкой антивандальной тканью,
а на полу уложен прочный ламинат 33 класса, устойчивый к царапинам и влаге.
Все системы – от сплит-систем и холодильника до батарей и подогрева пола – интегрированы в "умный дом", позволяя управлять
ими дистанционно. Освещение в квартире полностью настраиваемое: вы можете менять его цвет и интенсивность, создавая идеальную атмосферу для любого случая.
Жилой комплекс предлагает высокий уровень безопасности и комфорта: огороженная территория, видеонаблюдение, круглосуточная
охрана и шлагбаум на въезде, а также подземная парковка. Удобное расположение остановки общественного транспорта рядом с домом делает передвижение по городу максимально простым.
Район отличается превосходно развитой инфраструктурой. В шаговой доступности находятся детская поликлиника, университетская клиника КФУ,
торговые центры "Корстон", "Каzаn Маll", "Кольцо", "Горки Парк", ведущие университеты Татарстана, парк имени Горького, магазины "Бахетле", "Пятёрочка", "Эдельвейс", детские сады,


Больше: https://sinonim.org/genres

Читать полностью

    Для того, чтобы купить двухкомнатную квартиру по адресу: Казань, Вахитовский, ул. Достоевского, дом 57, позвоните по телефону +7 (843) 231-83-44. Торопитесь! Объявление №345532129 о продаже двухкомнатной квартиры опубликовано Сегодня.

    Позвонить Написать
    20 950 000 Р
    Агент
    ФЛЭТ
    +7 (843) 231-83-44
    Начать чат с агентом
    Похожие предложения
    Продажа квартиры, Казань, ул. Габдуллы Тукая - Фото 1
    Продажа квартиры, Казань, ул. Габдуллы Тукая - Фото 2
    Продажа квартиры, Казань, ул. Габдуллы Тукая - Фото 3
    Продажа квартиры, Казань, ул. Габдуллы Тукая - Фото 4
    Продажа квартиры, Казань, ул. Габдуллы Тукая - Фото 5
    Продажа квартиры, Казань, ул. Габдуллы Тукая - Фото 6
    Продажа квартиры, Казань, ул. Габдуллы Тукая - Фото 7
    Продажа квартиры, Казань, ул. Габдуллы Тукая - Фото 8
    Продажа квартиры, Казань, ул. Габдуллы Тукая - Фото 9
    Продажа квартиры, Казань, ул. Габдуллы Тукая - Фото 10
    Продажа квартиры, Казань, ул. Габдуллы Тукая - Фото 11
    Продажа квартиры, Казань, ул. Габдуллы Тукая - Фото 12
    Продажа квартиры, Казань, ул. Габдуллы Тукая - Фото 13
    Продажа квартиры, Казань, ул. Габдуллы Тукая - Фото 14
    Продажа квартиры, Казань, ул. Габдуллы Тукая - Фото 15
    Продажа квартиры, Казань, ул. Габдуллы Тукая - Фото 16
    Продажа квартиры, Казань, ул. Габдуллы Тукая - Фото 17
    Продажа квартиры, Казань, ул. Габдуллы Тукая - Фото 18
    Продажа квартиры, Казань, ул. Габдуллы Тукая - Фото 19
    Продажа квартиры, Казань, ул. Габдуллы Тукая - Фото 20
    2-комнатная квартира, общая площадь 58.3м², жилая 37м², кухня 21м²

    Объект №80694 Эксклюзивное предложение!!!Эксклюзивное предложение в самом сердце Казани !!! В продаже замечательная квартира в элитном камерном ЖК "Юнусовская усадьба". Всего в доме 27 квартир. Клубный дом расположен в 5 минутах ходьбы от набережной...
    • 58.3 м²
    • 2-ком
    • 4/4 эт.
    22 000 000 Р
    Агент
    +7 (843) Показать номер
    Агентство
    ФЛЭТ
    Посмотреть контакты
    3-ком квартира ул.Проспект Универсиады, д. 16 - Фото 1
    3-ком квартира ул.Проспект Универсиады, д. 16 - Фото 2
    3-ком квартира ул.Проспект Универсиады, д. 16 - Фото 3
    3-ком квартира ул.Проспект Универсиады, д. 16 - Фото 4
    3-ком квартира ул.Проспект Универсиады, д. 16 - Фото 5
    3-ком квартира ул.Проспект Универсиады, д. 16 - Фото 6
    3-ком квартира ул.Проспект Универсиады, д. 16 - Фото 7
    3-ком квартира ул.Проспект Универсиады, д. 16 - Фото 8
    3-ком квартира ул.Проспект Универсиады, д. 16 - Фото 9
    3-ком квартира ул.Проспект Универсиады, д. 16 - Фото 10
    3-ком квартира ул.Проспект Универсиады, д. 16 - Фото 11
    3-ком квартира ул.Проспект Универсиады, д. 16 - Фото 12
    3-ком квартира ул.Проспект Универсиады, д. 16 - Фото 13
    3-ком квартира ул.Проспект Универсиады, д. 16 - Фото 14
    3-ком квартира ул.Проспект Универсиады, д. 16 - Фото 15
    Онлайн-показ! 3-комнатная квартира, с евроремонтом, общая площадь 83м², жилая 51м², кухня 13м², с балконом, пластиковые стеклопакеты

    Описание Продается просторная трехкомнатная квартира с дизайнерским ремонтом, расположенная по адресу: проспект Универсиады, 16, в центре Казани. Общая площадь квартиры составляет 83 кв. м, жилая — 51 кв. м, площадь кухни — 13 кв. м. Квартира находится...
    • 83 м²
    • 3-ком
    • 15/16 эт.
    • монолитно-кирпичный
    21 000 000 Р
    Онлайн показ Доступен онлайн-показ
    PRO
    +7 (987) Показать номер
    Посмотреть контакты
    2-к кв. Татарстан, Казань Комсомольская ул., 1 (69.6 м) - Фото 1
    2-к кв. Татарстан, Казань Комсомольская ул., 1 (69.6 м) - Фото 2
    2-комнатная квартира, общая площадь 69м², кухня 15м²

    Продается просторная двухкомнатная квартира площадью 69,6 м в современном доме бизнес-класса ЖК Казан Су .Простopная и oчeнь cвeтлaя кваpтирa 69,6 м в доме бизнес-клaссa. Один взpоcлый сoбcтвенник, никто не пpoписан, бeз обpeменeний, вcя сумма в договoре.Квaртира...
    • 69 м²
    • 2-ком
    • 2/24 эт.
    20 999 000 Р
    Агент
    +7 (917) Показать номер
    Посмотреть контакты
    Продажа квартиры, Казань, ул. Мулланура Вахитова - Фото 1
    Продажа квартиры, Казань, ул. Мулланура Вахитова - Фото 2
    Продажа квартиры, Казань, ул. Мулланура Вахитова - Фото 3
    Продажа квартиры, Казань, ул. Мулланура Вахитова - Фото 4
    Продажа квартиры, Казань, ул. Мулланура Вахитова - Фото 5
    Продажа квартиры, Казань, ул. Мулланура Вахитова - Фото 6
    Продажа квартиры, Казань, ул. Мулланура Вахитова - Фото 7
    Продажа квартиры, Казань, ул. Мулланура Вахитова - Фото 8
    3-комнатная квартира, общая площадь 97.9м², жилая 41м², кухня 15.8м², с балконом

    Объект №114647 Дизайнерская квартира в 9 минутах от метро!В продаже прекрасная 3-комнатная квартира в кирпичном доме 2002 года. Качественная постройка по индивидуальному проекту в престижной локации по адресу ул. Мулланура Вахитова, д. 8 Квартира отлично...
    • 97.9 м²
    • 3-ком
    • 2/7 эт.
    21 300 000 Р
    Агент
    +7 (843) Показать номер
    Агентство
    ФЛЭТ
    Посмотреть контакты
    Продажа квартиры, Казань, ул. Патриса Лумумбы - Фото 1
    Продажа квартиры, Казань, ул. Патриса Лумумбы - Фото 2
    Продажа квартиры, Казань, ул. Патриса Лумумбы - Фото 3
    Продажа квартиры, Казань, ул. Патриса Лумумбы - Фото 4
    Продажа квартиры, Казань, ул. Патриса Лумумбы - Фото 5
    Продажа квартиры, Казань, ул. Патриса Лумумбы - Фото 6
    Продажа квартиры, Казань, ул. Патриса Лумумбы - Фото 7
    Продажа квартиры, Казань, ул. Патриса Лумумбы - Фото 8
    Продажа квартиры, Казань, ул. Патриса Лумумбы - Фото 9
    Продажа квартиры, Казань, ул. Патриса Лумумбы - Фото 10
    Продажа квартиры, Казань, ул. Патриса Лумумбы - Фото 11
    Продажа квартиры, Казань, ул. Патриса Лумумбы - Фото 12
    Продажа квартиры, Казань, ул. Патриса Лумумбы - Фото 13
    Продажа квартиры, Казань, ул. Патриса Лумумбы - Фото 14
    Продажа квартиры, Казань, ул. Патриса Лумумбы - Фото 15
    Продажа квартиры, Казань, ул. Патриса Лумумбы - Фото 16
    Продажа квартиры, Казань, ул. Патриса Лумумбы - Фото 17
    Продажа квартиры, Казань, ул. Патриса Лумумбы - Фото 18
    Продажа квартиры, Казань, ул. Патриса Лумумбы - Фото 19
    Продажа квартиры, Казань, ул. Патриса Лумумбы - Фото 20
    2-комнатная квартира, общая площадь 63.8м², жилая 42м², кухня 10м², с балконом

    Объект №110491 ЖК бизнес-класса КонсьержВашему вниманию представляется просторная квартира в ЖК бизнес - класса! В квартире выполнен качественный дизайнерский ремонт. Использовались только качественные материалы. Многое из мебели и техники остается...
    • 63.8 м²
    • 2-ком
    • 3/10 эт.
    22 000 000 Р
    Агент
    +7 (843) Показать номер
    Агентство
    ФЛЭТ
    Посмотреть контакты

    Не нашли подходящего объявления?

    Оставьте заявку, и наши риэлторы подберут квартиру в районе Казани

    (0)