17 489 000 Р

Информация о квартире

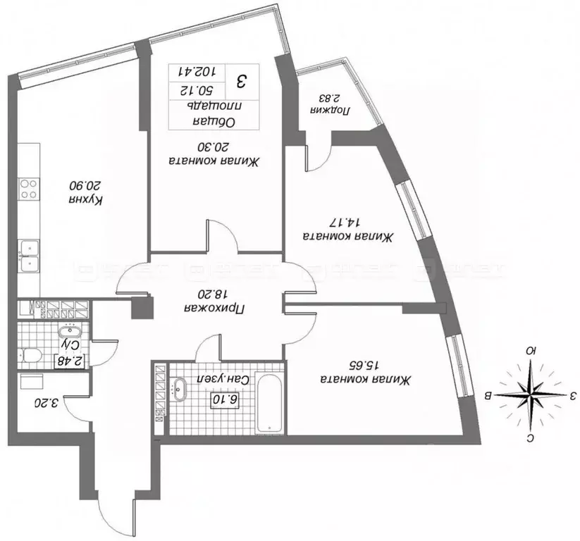
103.0 м2
Площадь
70.0 м2
Жилая
25.0 м2
Кухня
3
Комнаты
10
Этаж
23
Этажность
70 м2
Площадь комнат
2024
Построен

Состояние и оснащение

Наличие балкона
есть

Дополнительная информация

Тип продажи
свободная
Собственников
1
Развернуть
Агент
ФЛЭТ
+7 (843) 231-83-44
Начать чат с агентом

Продажа квартиры, Казань, ул. Танковая

Объект №116795 С новым ремонтом и мебелью!!!Продаю шикарную ВИДОВУЮ просторную 3-х комн. квартиру с дизайнерским ремонтом и мебелью ,
площадью 107 кв.м на 10 этаже 23 этажного монолитно-кирпичного дома, 2025 года постройки по адресу улица Танковая 2
Для комфортного проживания все продумано до мелочей: дорогой кухонный гарнитур укомплектованный встраиваемой техникой,
в каждой комнате теплые полы, сделан качественный ремонт, делали для себя не экономя на материалах.
- Квартира светлая с новым ремонтом, мебелью и техникой.
- С самой удачной планировкой в ЖК.
- Светлый просторный подъезд с грузовым и пассажирским лифтом и отдельным входом на лестницу.
- Новый ЖК расположен в Приволжском районе Казани,
- До Кремля 10 минут на машине.
- Это второй центр Казани, отсюда можно быстро добраться до любой точки города и никаких проблем с транспортом не возникает.
- В ЖК сделано всё для комфорта и безопасности жителей: закрытый двор без машин со шлагбаумом, система видеонаблюдения, полностью оборудованная детская и спортивная площадки с мягким покрытием.
- Есть наземная и подземная парковки для автомобилей, рядом с домом есть многоуровневая автомобильная парковка. - выполнен дизайнерский ремонт с использованием высококачественных материалов и многофункционального, современного освещения.
- есть вся необходимая мебель: кухонный гарнитур со встроенной техникой, двуспальная кровать, в зале диван и остальные предметы мебели.
- Никто не прописан, ключи в день сделки.
- Великолепная планировка
- Современная система отопления и умные счётчики, все показания подаются на автомате.
- Высокие потолки 3 м и просторные комнаты.
- Квартира очень светлая, с очень позитивной энергетикой, имеет окна на две стороны, окна 2-х спален и кухни выходит в тихий внутренний двор.


Покупая эту квартиру, Вы покупаете не только жилье, но и новый уровень жизни
Рядом улицы: Карбышева, Проспект Универсиады, Комарова, Танковое кольцо, Комарова, 2-я Туринская


ВАЖНО: Чистая продажа, квартира без долгов и обременений, собственник - один, взрослый.

Читать полностью

    Для того, чтобы купить трехкомнатную квартиру по адресу: Казань, Приволжский, ул. Танковая, дом 2, позвоните по телефону +7 (843) 231-83-44. Торопитесь! Объявление №345527038 о продаже трехкомнатной квартиры опубликовано Вчера.

    Позвонить Написать
    17 489 000 Р
    Агент
    ФЛЭТ
    +7 (843) 231-83-44
    Начать чат с агентом
    Похожие предложения
    Продажа квартиры, Казань, ул. Оренбургский тракт - Фото 1
    Продажа квартиры, Казань, ул. Оренбургский тракт - Фото 2
    Продажа квартиры, Казань, ул. Оренбургский тракт - Фото 3
    Продажа квартиры, Казань, ул. Оренбургский тракт - Фото 4
    Продажа квартиры, Казань, ул. Оренбургский тракт - Фото 5
    Продажа квартиры, Казань, ул. Оренбургский тракт - Фото 6
    Продажа квартиры, Казань, ул. Оренбургский тракт - Фото 7
    4-комнатная квартира, общая площадь 92.7м², жилая 60м², кухня 20м², с балконом

    Объект №118599 Продаётся светлая и уютная 4-х комнатная квартира в современном жилом комплексе «Чистое небо». Квартира расположена на комфортном 11 этаже 19-этажного дома, что обеспечивает отличный вид и достаточное количество естественного света....
    • 92.7 м²
    • 4-ком
    • 11/19 эт.
    17 500 000 Р
    Агент
    +7 (843) Показать номер
    Агентство
    ФЛЭТ
    Посмотреть контакты
    Продажа квартиры, Казань, ул. Баки Урманче - Фото 1
    Продажа квартиры, Казань, ул. Баки Урманче - Фото 2
    Продажа квартиры, Казань, ул. Баки Урманче - Фото 3
    Продажа квартиры, Казань, ул. Баки Урманче - Фото 4
    Продажа квартиры, Казань, ул. Баки Урманче - Фото 5
    Продажа квартиры, Казань, ул. Баки Урманче - Фото 6
    Продажа квартиры, Казань, ул. Баки Урманче - Фото 7
    Продажа квартиры, Казань, ул. Баки Урманче - Фото 8
    Продажа квартиры, Казань, ул. Баки Урманче - Фото 9
    Продажа квартиры, Казань, ул. Баки Урманче - Фото 10
    Продажа квартиры, Казань, ул. Баки Урманче - Фото 11
    3-комнатная квартира, с евроремонтом, общая площадь 88.2м², жилая 46.7м², кухня 13.6м², с балконом

    Объект №117401 МАМИНО СЧАСТЬЕ: ПРОСТОРНАЯ КВАРТИРАПредставьте место, где ваши дети будут расти в здоровом микроклимате, у вас будет своя зона отдыха, а утренние сборы в садик и школу перестанут быть стрессом... Эта трёхкомнатная квартира (88,2 м) в тёплом...
    • 88.2 м²
    • 3-ком
    • 3/9 эт.
    16 800 000 Р
    Агент
    +7 (843) Показать номер
    Агентство
    ФЛЭТ
    Посмотреть контакты
    Продажа квартиры, Казань, ул. Абубекира Терегулова - Фото 1
    Продажа квартиры, Казань, ул. Абубекира Терегулова - Фото 2
    Продажа квартиры, Казань, ул. Абубекира Терегулова - Фото 3
    Продажа квартиры, Казань, ул. Абубекира Терегулова - Фото 4
    Продажа квартиры, Казань, ул. Абубекира Терегулова - Фото 5
    Продажа квартиры, Казань, ул. Абубекира Терегулова - Фото 6
    Продажа квартиры, Казань, ул. Абубекира Терегулова - Фото 7
    Продажа квартиры, Казань, ул. Абубекира Терегулова - Фото 8
    Продажа квартиры, Казань, ул. Абубекира Терегулова - Фото 9
    Продажа квартиры, Казань, ул. Абубекира Терегулова - Фото 10
    Продажа квартиры, Казань, ул. Абубекира Терегулова - Фото 11
    Продажа квартиры, Казань, ул. Абубекира Терегулова - Фото 12
    Продажа квартиры, Казань, ул. Абубекира Терегулова - Фото 13
    Продажа квартиры, Казань, ул. Абубекира Терегулова - Фото 14
    Продажа квартиры, Казань, ул. Абубекира Терегулова - Фото 15
    Продажа квартиры, Казань, ул. Абубекира Терегулова - Фото 16
    Продажа квартиры, Казань, ул. Абубекира Терегулова - Фото 17
    Продажа квартиры, Казань, ул. Абубекира Терегулова - Фото 18
    Продажа квартиры, Казань, ул. Абубекира Терегулова - Фото 19
    Продажа квартиры, Казань, ул. Абубекира Терегулова - Фото 20
    3-комнатная квартира, с евроремонтом, общая площадь 83м², жилая 46.5м², кухня 12.4м², с балконом

    Объект №113869 Просторная квартира! Эко парк Дубрава Представляем вашему вниманию 3-комн. квартиру в новом доме ул. Терегулова,д.2. Расположена на 2 этаже 19-ти этажного дома. Имеет следующие параметры: Общая площадь S= 83,1кв.м., Жилая площадь S= 45,5...
    • 83 м²
    • 3-ком
    • 2/19 эт.
    16 500 000 Р
    Агент
    +7 (843) Показать номер
    Агентство
    ФЛЭТ
    Посмотреть контакты
    Продажа квартиры, Казань, ул. Оренбургский тракт - Фото 1
    Продажа квартиры, Казань, ул. Оренбургский тракт - Фото 2
    Продажа квартиры, Казань, ул. Оренбургский тракт - Фото 3
    Продажа квартиры, Казань, ул. Оренбургский тракт - Фото 4
    Продажа квартиры, Казань, ул. Оренбургский тракт - Фото 5
    Продажа квартиры, Казань, ул. Оренбургский тракт - Фото 6
    Продажа квартиры, Казань, ул. Оренбургский тракт - Фото 7
    Продажа квартиры, Казань, ул. Оренбургский тракт - Фото 8
    Продажа квартиры, Казань, ул. Оренбургский тракт - Фото 9
    Продажа квартиры, Казань, ул. Оренбургский тракт - Фото 10
    Продажа квартиры, Казань, ул. Оренбургский тракт - Фото 11
    Продажа квартиры, Казань, ул. Оренбургский тракт - Фото 12
    Продажа квартиры, Казань, ул. Оренбургский тракт - Фото 13
    Продажа квартиры, Казань, ул. Оренбургский тракт - Фото 14
    Продажа квартиры, Казань, ул. Оренбургский тракт - Фото 15
    Продажа квартиры, Казань, ул. Оренбургский тракт - Фото 16
    Продажа квартиры, Казань, ул. Оренбургский тракт - Фото 17
    Продажа квартиры, Казань, ул. Оренбургский тракт - Фото 18
    Продажа квартиры, Казань, ул. Оренбургский тракт - Фото 19
    Продажа квартиры, Казань, ул. Оренбургский тракт - Фото 20
    3-комнатная квартира, общая площадь 65м², жилая 49м², кухня 5м², с балконом

    Объект №62082 Лучший выбор!!!Продается идеальная чистая, светлая 3 комнатная квартира в элитном доме!!!Расположенном в самом экологически чистом районе Казани. Рядом с домом расположены детская площадка, парк, сквер, больница, аптека, метро, остановка...
    • 65 м²
    • 3-ком
    • 9/19 эт.
    16 200 000 Р
    Агент
    +7 (843) Показать номер
    Агентство
    ФЛЭТ
    Посмотреть контакты
    2-комнатная квартира: Казань, улица Оренбургский Тракт, 24А (67.7 м) - Фото 1
    2-комнатная квартира: Казань, улица Оренбургский Тракт, 24А (67.7 м) - Фото 2
    2-комнатная квартира, общая площадь 67м², жилая 30м², кухня 17м²

    Продается двухкомнатная квартира в охраняемом жилом комплексе «Чистое небо на 12-м этаже. Дом 2013 года постройки с одним взрослым собственником. Общая площадь квартиры 67,7м2, Просторная кухня 15,5м2 со всей техникой и мебелью, Спальня 15м2...
    • 67 м²
    • 2-ком
    • 12/19 эт.
    17 150 000 Р
    Агент
    +7 (917) Показать номер
    Посмотреть контакты

    Не нашли подходящего объявления?

    Оставьте заявку, и наши риэлторы подберут квартиру в районе Казани

    (0)