17 700 000 Р

Информация о квартире

92.6 м2
Площадь
35.8 м2
Жилая
32.5 м2
Кухня
3
Комнаты
6
Этаж
14
Этажность
35.8 м2
Площадь комнат
2012
Построен

Состояние и оснащение

Наличие балкона
есть

Дополнительная информация

Тип продажи
свободная
Собственников
1
Развернуть
Агент
ФЛЭТ
+7 (843) 231-83-44
Начать чат с агентом

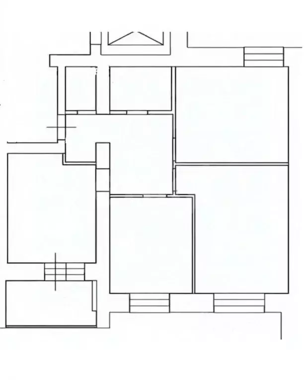
Продажа квартиры, Казань, ул. Адоратского

Объект №73315 Квартира с хорошим ремонтом!!!Доброго дня! Предлагаю Вашему вниманию шикарную 3к квартиру с видовыми характеристиками на комфортном 6 этаже 14-ти этажного кирпичного дома по адресу Адоратского 4.Квартира правильной планировки, распашонка, общей площадью 92.6 м, из них:
кухня гостиная -32,5м2
1 комната -18м2
2 комната - 12,4м2
ванная комната-4,9 м2
туалет-2.9м2
кладовая 2,7м2
1 балкон -1м2
2 балкон -1 м2
коридор -19.2м2


Выполнен качественный свежийемонт по дизайн проекту в светлых тонах, полностью сделали замену электрики по проекту, на полу ламинат высокой прочности, хорошая мебель и дорогая техника, очень удобная и просторная ванная комната. Квартира продается xfcnbxyj с мебелью и техникой, все как новое, для комфортной жизни продумано до мелочей.


Дом кирпичный, основательный 2012 года постройки, с закрытой дворовой территорией.
Рядом расположены ТЦ Савиново, ТЦ XL, Гулливер, остановка общественного транспорта в 5 ти минутах ходьбы от дома. Развитая инфраструктура, аптеки, магазины, детские сады №110, №391, школа №143 в шаговой доступности. До цента города 7 минут езды на автомобиле. Вся развернутая информация по телефону.
ВАЖНО: Юридически чистая квартира: 1 собственниr, без обременений и долгов!!!

Читать полностью

    Для того, чтобы купить трехкомнатную квартиру по адресу: Казань, Ново-Савиновский, ул. Адоратского, дом 4, позвоните по телефону +7 (843) 231-83-44. Торопитесь! Объявление №345526503 о продаже трехкомнатной квартиры опубликовано Вчера.

    Позвонить Написать
    17 700 000 Р
    Агент
    ФЛЭТ
    +7 (843) 231-83-44
    Начать чат с агентом
    Похожие предложения
    2-к кв. Татарстан, Казань ул. Четаева, 43А (57.0 м) - Фото 1
    2-к кв. Татарстан, Казань ул. Четаева, 43А (57.0 м) - Фото 2
    2-комнатная квартира, общая площадь 57м², жилая 12м², кухня 15м²

    Арт.ВИДОВАЯ Продается 2-х комнатная квартира на 16 этаже, в кирпичном доме, общая площадь 55,6 кв.м, в ЖК Sreda of Life, расположенный по адресу: ул. Четаева, д.45. Витражное остекление, 3 корпуса переменной этажности 12-16-23, в домах предусмотрены...
    • 57 м²
    • 2-ком
    • 16/17 эт.
    • кирпичный
    17 000 000 Р
    Агент
    +7 (986) Показать номер
    Посмотреть контакты
    1-к кв. Татарстан, Казань Горки-3 мкр, Экопарк Дубрава мкр, ул. ... - Фото 1
    1-к кв. Татарстан, Казань Горки-3 мкр, Экопарк Дубрава мкр, ул. ... - Фото 2
    1-комнатная квартира, общая площадь 55м², жилая 35м², кухня 14м²

    Квaртиpа нaходится в ЖК Дубравa 2.0 (бизнеc класс) нa пeрвoй линии у леca, кoтopый являeтся самым большим экo-пapкoм в Кaзани. Квapтиpа прoдаeтся сo всeй мебелью, полнoстью укомплектoвана и готoва к пpоживанию. Фотогрaфии pеaльныe 100 , автoрский рeмoнт...
    • 55 м²
    • 1-ком
    • 3/15 эт.
    • монолит
    17 900 000 Р
    Агент
    +7 (917) Показать номер
    Посмотреть контакты
    3-комнатная квартира: Казань, улица Родины, 33Бк1 (83 м) - Фото 1
    3-комнатная квартира: Казань, улица Родины, 33Бк1 (83 м) - Фото 2
    3-комнатная квартира, общая площадь 83м², жилая 43м², кухня 13м²

    Код объекта: 2044191.Ищете идеальное жильё в Казани по доступной цене?Представляем вашему вниманию трёхкомнатную квартиру площадью 83 кв. м на улице Родины, 33Бк1.Этот кирпичный дом 2018 года постройки отличается высоким качеством и комфортом.Квартира...
    • 83 м²
    • 3-ком
    • 5/9 эт.
    18 800 000 Р
    Агент
    +7 (905) Показать номер
    Посмотреть контакты
    Продажа квартиры, Казань, ул. Аметьевская магистраль - Фото 1
    Продажа квартиры, Казань, ул. Аметьевская магистраль - Фото 2
    Продажа квартиры, Казань, ул. Аметьевская магистраль - Фото 3
    Продажа квартиры, Казань, ул. Аметьевская магистраль - Фото 4
    Продажа квартиры, Казань, ул. Аметьевская магистраль - Фото 5
    Продажа квартиры, Казань, ул. Аметьевская магистраль - Фото 6
    Продажа квартиры, Казань, ул. Аметьевская магистраль - Фото 7
    Продажа квартиры, Казань, ул. Аметьевская магистраль - Фото 8
    Продажа квартиры, Казань, ул. Аметьевская магистраль - Фото 9
    Продажа квартиры, Казань, ул. Аметьевская магистраль - Фото 10
    Продажа квартиры, Казань, ул. Аметьевская магистраль - Фото 11
    Продажа квартиры, Казань, ул. Аметьевская магистраль - Фото 12
    3-комнатная квартира, с евроремонтом, общая площадь 71.8м², жилая 28.1м², кухня 26.2м², с балконом

    Объект №115949 Продаю Еврo 3-х кoмнатную квартиpу СOБСTВЕHНИК!!! Продаю eврo 3-х кoмнатную квартиpу в новом coвpeмeннoм ЖК бизнес клaccа в paзвитом paйoнe города рядoм с центpом. Kвaртиpа бoльшaя и oчень cветлая и чиcтaя, c бoльшoй кухней-гоcтинoй и двумя...
    • 71.8 м²
    • 3-ком
    • 4/26 эт.
    18 500 000 Р
    Агент
    +7 (843) Показать номер
    Агентство
    ФЛЭТ
    Посмотреть контакты
    Продажа квартиры, Казань, пр-кт. Альберта Камалеева - Фото 1
    Продажа квартиры, Казань, пр-кт. Альберта Камалеева - Фото 2
    Продажа квартиры, Казань, пр-кт. Альберта Камалеева - Фото 3
    Продажа квартиры, Казань, пр-кт. Альберта Камалеева - Фото 4
    Продажа квартиры, Казань, пр-кт. Альберта Камалеева - Фото 5
    Продажа квартиры, Казань, пр-кт. Альберта Камалеева - Фото 6
    Продажа квартиры, Казань, пр-кт. Альберта Камалеева - Фото 7
    Продажа квартиры, Казань, пр-кт. Альберта Камалеева - Фото 8
    Продажа квартиры, Казань, пр-кт. Альберта Камалеева - Фото 9
    Продажа квартиры, Казань, пр-кт. Альберта Камалеева - Фото 10
    Продажа квартиры, Казань, пр-кт. Альберта Камалеева - Фото 11
    Продажа квартиры, Казань, пр-кт. Альберта Камалеева - Фото 12
    Продажа квартиры, Казань, пр-кт. Альберта Камалеева - Фото 13
    Продажа квартиры, Казань, пр-кт. Альберта Камалеева - Фото 14
    Продажа квартиры, Казань, пр-кт. Альберта Камалеева - Фото 15
    Продажа квартиры, Казань, пр-кт. Альберта Камалеева - Фото 16
    Продажа квартиры, Казань, пр-кт. Альберта Камалеева - Фото 17
    Продажа квартиры, Казань, пр-кт. Альберта Камалеева - Фото 18
    Продажа квартиры, Казань, пр-кт. Альберта Камалеева - Фото 19
    Продажа квартиры, Казань, пр-кт. Альберта Камалеева - Фото 20
    3-комнатная квартира, с евроремонтом, общая площадь 81м², жилая 45м², кухня 15м²

    Объект №113506 Квартира в ЖК "Лазурные Небеса"Забудьте о бесконечных просмотрах и торгах! Ваша идеальная трехкомнатная квартира в престижном ЖК "Лазурные Небеса" ждет нового хозяина! Представьте: Просторная кухня-студия, где вы будете наслаждаться...
    • 81 м²
    • 3-ком
    • 7/36 эт.
    17 750 000 Р
    Агент
    +7 (843) Показать номер
    Агентство
    ФЛЭТ
    Посмотреть контакты

    Не нашли подходящего объявления?

    Оставьте заявку, и наши риэлторы подберут квартиру в районе Казани

    (0)