13 499 000 Р

Информация о квартире

90.4 м2
Площадь
53.3 м2
Жилая
11.4 м2
Кухня
3
Комнаты
2
Этаж
10
Этажность
53.3 м2
Площадь комнат
2007
Построен

Состояние и оснащение

Наличие балкона
2 лоджии
Ремонт
евроремонт

Дополнительная информация

Тип продажи
свободная
Собственников
1
Развернуть
Агент
ФЛЭТ
+7 (843) 231-83-44
Начать чат с агентом

Продажа квартиры, Казань, ул. Юлиуса Фучика

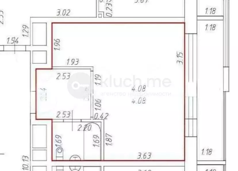
Объект №ком. квартира по ул. Ю. Фучика д. 82 у метро! Продается 3-к квартира по ул. Ю. Фучика д. 82 улучшенной планировки площадью 87,7 м на 2 этаже 10 этажного кирпичного дома 2007 года постройки.

Скидка на ДОМКЛИК 0.7% получена.


Свободна от проживания.


Квартира светлая и уютная, с ремонтом, С/у раздельный в кафеле.


Две лоджии застеклены. Не торцевая. Остается вся мебель и техника.


Кухня - 11,2 м2.

Зал - 25,2 м2.


Спальня - 16,2 м2.


Спальня - 12,1 м2.


Сан узел - 3 м2.


Сан узел - 1,5 м2.


Коридор 2,5 м2.


Холл - 16 м2.


Рядом ТЦ “Франт”, "Азино", фитнес-центр "Акимбо", магазины, школы, детские сады, бильярдный и банкетный зал "Зилант".

Остановка общественного транспорта в шаговой доступности, строится станция метро.

Уютный охраняемый двор с несколькими огромными детскими площадками и футбольно-баскетбольным полем, зимой во дворе заливается каток.

По периметру двора ведется видео наблюдение, заезд на территорию двора через шлагбаум.

Без обременений и занижений, срок владения с 2008 года.

Любая форма оплаты. Звоните!!!

Читать полностью

    Для того, чтобы купить трехкомнатную квартиру по адресу: Казань, Советский, ул. Юлиуса Фучика, дом 82, позвоните по телефону +7 (843) 231-83-44. Торопитесь! Объявление №345510569 о продаже трехкомнатной квартиры опубликовано Вчера.

    Позвонить Написать
    13 499 000 Р
    Агент
    ФЛЭТ
    +7 (843) 231-83-44
    Начать чат с агентом
    Похожие предложения
    Продажа квартиры, Казань, ул. Юлиуса Фучика - Фото 1
    Продажа квартиры, Казань, ул. Юлиуса Фучика - Фото 2
    Продажа квартиры, Казань, ул. Юлиуса Фучика - Фото 3
    Продажа квартиры, Казань, ул. Юлиуса Фучика - Фото 4
    Продажа квартиры, Казань, ул. Юлиуса Фучика - Фото 5
    Продажа квартиры, Казань, ул. Юлиуса Фучика - Фото 6
    Продажа квартиры, Казань, ул. Юлиуса Фучика - Фото 7
    Продажа квартиры, Казань, ул. Юлиуса Фучика - Фото 8
    Продажа квартиры, Казань, ул. Юлиуса Фучика - Фото 9
    Продажа квартиры, Казань, ул. Юлиуса Фучика - Фото 10
    Продажа квартиры, Казань, ул. Юлиуса Фучика - Фото 11
    Продажа квартиры, Казань, ул. Юлиуса Фучика - Фото 12
    Продажа квартиры, Казань, ул. Юлиуса Фучика - Фото 13
    Продажа квартиры, Казань, ул. Юлиуса Фучика - Фото 14
    Продажа квартиры, Казань, ул. Юлиуса Фучика - Фото 15
    Продажа квартиры, Казань, ул. Юлиуса Фучика - Фото 16
    3-комнатная квартира, общая площадь 88.6м², жилая 53.2м², кухня 10.6м², с балконом

    Объект №88715 3 ком квартира в кирпичном доме. Продается уютная, теплая и светлая 3-комнатная квартира на 2 этаже 10 этажного кирпичного дома. Общая площадь 88.6 кв.м. Большие светлые комнаты: 25 кв.м., 16,2 кв.м. и 12,0 кв.м. Хороший ремонт, стены...
    • 88.6 м²
    • 3-ком
    • 2/10 эт.
    13 800 000 Р
    Агент
    +7 (843) Показать номер
    Агентство
    ФЛЭТ
    Посмотреть контакты
    Продажа квартиры, Казань, ул. Натана Рахлина - Фото 1
    Продажа квартиры, Казань, ул. Натана Рахлина - Фото 2
    Продажа квартиры, Казань, ул. Натана Рахлина - Фото 3
    Продажа квартиры, Казань, ул. Натана Рахлина - Фото 4
    Продажа квартиры, Казань, ул. Натана Рахлина - Фото 5
    Продажа квартиры, Казань, ул. Натана Рахлина - Фото 6
    Продажа квартиры, Казань, ул. Натана Рахлина - Фото 7
    Продажа квартиры, Казань, ул. Натана Рахлина - Фото 8
    Продажа квартиры, Казань, ул. Натана Рахлина - Фото 9
    Продажа квартиры, Казань, ул. Натана Рахлина - Фото 10
    Продажа квартиры, Казань, ул. Натана Рахлина - Фото 11
    Продажа квартиры, Казань, ул. Натана Рахлина - Фото 12
    Продажа квартиры, Казань, ул. Натана Рахлина - Фото 13
    Продажа квартиры, Казань, ул. Натана Рахлина - Фото 14
    Продажа квартиры, Казань, ул. Натана Рахлина - Фото 15
    Продажа квартиры, Казань, ул. Натана Рахлина - Фото 16
    Продажа квартиры, Казань, ул. Натана Рахлина - Фото 17
    Продажа квартиры, Казань, ул. Натана Рахлина - Фото 18
    Продажа квартиры, Казань, ул. Натана Рахлина - Фото 19
    Продажа квартиры, Казань, ул. Натана Рахлина - Фото 20
    3-комнатная квартира, общая площадь 81.9м², жилая 50м², кухня 13.6м², с балконом

    Объект №116177 Продается 3х кк квартира в ЖК "Светлая долина"Продается просторная 3х комнатная квартира в современном жилом комплексе "Светлая долина ". Общая площадь 81.9 кв.м. Квартира расположена на 11 этаже 17 этажного дома, построенного в 2018...
    • 81.9 м²
    • 3-ком
    • 11/17 эт.
    12 800 000 Р
    Агент
    +7 (843) Показать номер
    Агентство
    ФЛЭТ
    Посмотреть контакты
    Продажа квартиры, Казань, ул. Тулпар - Фото 1
    Продажа квартиры, Казань, ул. Тулпар - Фото 2
    Продажа квартиры, Казань, ул. Тулпар - Фото 3
    Продажа квартиры, Казань, ул. Тулпар - Фото 4
    Продажа квартиры, Казань, ул. Тулпар - Фото 5
    Продажа квартиры, Казань, ул. Тулпар - Фото 6
    Продажа квартиры, Казань, ул. Тулпар - Фото 7
    Продажа квартиры, Казань, ул. Тулпар - Фото 8
    Продажа квартиры, Казань, ул. Тулпар - Фото 9
    Продажа квартиры, Казань, ул. Тулпар - Фото 10
    Продажа квартиры, Казань, ул. Тулпар - Фото 11
    Продажа квартиры, Казань, ул. Тулпар - Фото 12
    Продажа квартиры, Казань, ул. Тулпар - Фото 13
    Продажа квартиры, Казань, ул. Тулпар - Фото 14
    Продажа квартиры, Казань, ул. Тулпар - Фото 15
    Продажа квартиры, Казань, ул. Тулпар - Фото 16
    Продажа квартиры, Казань, ул. Тулпар - Фото 17
    Продажа квартиры, Казань, ул. Тулпар - Фото 18
    Продажа квартиры, Казань, ул. Тулпар - Фото 19
    Продажа квартиры, Казань, ул. Тулпар - Фото 20
    2-комнатная квартира, общая площадь 51м², жилая 30м², кухня 12м², с балконом

    Объект №115649 ЖК комфорт класса с дизайнерским ремонтомПродаётся просторная квартира 50,6 м в ЖК «21 Век», ул. Тулпар, 5 О квартире: * Дизайнерский ремонт премиум-класса * 3 этаж (всего 9 этажей) * Кухня со встроенной техникой (посудомоечная машина,...
    • 51 м²
    • 2-ком
    • 3/7 эт.
    13 490 000 Р
    Агент
    +7 (843) Показать номер
    Агентство
    ФЛЭТ
    Посмотреть контакты
    Продажа квартиры, Казань, ул. Ноксинский Спуск - Фото 1
    Продажа квартиры, Казань, ул. Ноксинский Спуск - Фото 2
    Продажа квартиры, Казань, ул. Ноксинский Спуск - Фото 3
    Продажа квартиры, Казань, ул. Ноксинский Спуск - Фото 4
    Продажа квартиры, Казань, ул. Ноксинский Спуск - Фото 5
    Продажа квартиры, Казань, ул. Ноксинский Спуск - Фото 6
    Продажа квартиры, Казань, ул. Ноксинский Спуск - Фото 7
    Продажа квартиры, Казань, ул. Ноксинский Спуск - Фото 8
    Продажа квартиры, Казань, ул. Ноксинский Спуск - Фото 9
    Продажа квартиры, Казань, ул. Ноксинский Спуск - Фото 10
    Продажа квартиры, Казань, ул. Ноксинский Спуск - Фото 11
    Продажа квартиры, Казань, ул. Ноксинский Спуск - Фото 12
    Продажа квартиры, Казань, ул. Ноксинский Спуск - Фото 13
    Продажа квартиры, Казань, ул. Ноксинский Спуск - Фото 14
    Продажа квартиры, Казань, ул. Ноксинский Спуск - Фото 15
    Продажа квартиры, Казань, ул. Ноксинский Спуск - Фото 16
    Продажа квартиры, Казань, ул. Ноксинский Спуск - Фото 17
    Продажа квартиры, Казань, ул. Ноксинский Спуск - Фото 18
    Продажа квартиры, Казань, ул. Ноксинский Спуск - Фото 19
    Продажа квартиры, Казань, ул. Ноксинский Спуск - Фото 20
    2-комнатная квартира, общая площадь 64.8м², жилая 26.8м², кухня 18.1м², с балконом

    Объект №115630 Квартира находиться в удобном и развитом районе. Продаётся стильная квартира в новом кирпичном доме,расположенная в ЖК Вознесение. Уютная и современная квартира,качественный ремонт,был сделан 2022 году,частично остается мебель и техники,Стиральная...
    • 64.8 м²
    • 2-ком
    • 6/10 эт.
    13 160 000 Р
    Агент
    +7 (843) Показать номер
    Агентство
    ФЛЭТ
    Посмотреть контакты
    Продажа квартиры, Казань, ул. Рихарда Зорге - Фото 1
    Продажа квартиры, Казань, ул. Рихарда Зорге - Фото 2
    Продажа квартиры, Казань, ул. Рихарда Зорге - Фото 3
    Продажа квартиры, Казань, ул. Рихарда Зорге - Фото 4
    Продажа квартиры, Казань, ул. Рихарда Зорге - Фото 5
    Продажа квартиры, Казань, ул. Рихарда Зорге - Фото 6
    Продажа квартиры, Казань, ул. Рихарда Зорге - Фото 7
    Продажа квартиры, Казань, ул. Рихарда Зорге - Фото 8
    Продажа квартиры, Казань, ул. Рихарда Зорге - Фото 9
    Продажа квартиры, Казань, ул. Рихарда Зорге - Фото 10
    Продажа квартиры, Казань, ул. Рихарда Зорге - Фото 11
    Продажа квартиры, Казань, ул. Рихарда Зорге - Фото 12
    Продажа квартиры, Казань, ул. Рихарда Зорге - Фото 13
    Продажа квартиры, Казань, ул. Рихарда Зорге - Фото 14
    Продажа квартиры, Казань, ул. Рихарда Зорге - Фото 15
    Продажа квартиры, Казань, ул. Рихарда Зорге - Фото 16
    Продажа квартиры, Казань, ул. Рихарда Зорге - Фото 17
    Продажа квартиры, Казань, ул. Рихарда Зорге - Фото 18
    Продажа квартиры, Казань, ул. Рихарда Зорге - Фото 19
    Продажа квартиры, Казань, ул. Рихарда Зорге - Фото 20
    4-комнатная квартира, общая площадь 83.1м², жилая 50.4м², кухня 9.3м², с балконом

    Объект №103997 Лучшая квартира и цена в данной локации!В продаже уютная и солнечная квартира в кирпичном доме с отличной транспортной развязкой и развитой инфраструктурой на улице Р.Зорге Приволжского района города казани.В шаговой доступности: станции...
    • 83.1 м²
    • 4-ком
    • 8/14 эт.
    12 390 000 Р
    Агент
    +7 (843) Показать номер
    Агентство
    ФЛЭТ
    Посмотреть контакты

    Не нашли подходящего объявления?

    Оставьте заявку, и наши риэлторы подберут квартиру в районе Казани

    (0)