10 700 800 Р 139 000 $ или 118 900

Информация о квартире

56 м2
Площадь
14 м2
Кухня
1
Комната
10
Этаж
10
Этажность

Дополнительная информация

Тип дома
панельный
Развернуть
Агент
+7 (987) 402-81-71
Начать чат с агентом

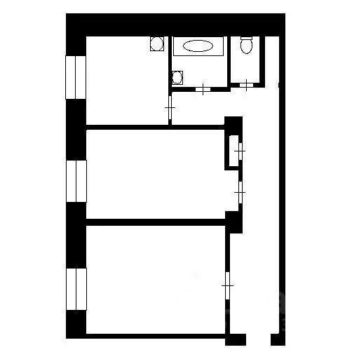
1-к кв. Татарстан, Казань ул. Сафиуллина, 26а (56.4 м)

Объявление о продаже квартирыПродается 1-комнатная квартира в востребованном районе по адресу: улица Сафиуллина, 26А.Общая площадь: 56,4 кв. мЖилая площадь: 24 кв. мКухня: 14 кв. мЭтаж: 10 из 11 (полноценный технический этаж)Предлагаем вашему вниманию уютную 1-комнатную квартиру во вторичном жилье с удобной планировкой. В квартире выполнен косметический ремонт, что позволяет заехать и жить без дополнительных затрат.Особенности квартиры:Просторный зал, разделенный на спальную зону и зону отдыха (без перепланировки).Удобная гардеробная для хранения вещей.Вместительная лоджия и прихожая.С/У правильной формы.Квартира расположена на 10 этаже, обеспечивая комфорт и тепло. В продажу входит практически вся мебель, за исключением кровати и белого комода (по договоренности).Локация: Дом находится в спокойном районе, в шаговой доступности две станции метро: Дубравная и Проспект Победы (в процессе строительства третья станция). Также рядом остановки общественного транспорта, детские садики, школы и салоны красоты.О доме: Полностью кирпичный, построен в 2008 году, с толстыми стенами, что гарантирует хорошую тепло- и звукоизоляцию. В наличии большой грузовой лифт и детская площадка во дворе.Вся сумма в договоре купли-продажи, без долгов, обременений, никто не прописан.Звоните для организации просмотра квартиры Код пользователя: 200523Номер в базе:

Читать полностью

    Для того, чтобы купить однокомнатную квартиру по адресу: Казань, м. Дубравная, ул. Сафиуллина, 26а, позвоните по телефону +7 (987) 402-81-71. Торопитесь! Объявление №30094883354 о продаже однокомнатной квартиры опубликовано Сегодня.

    Позвонить Написать
    10 700 800 Р139 000 $ или 118 900
    Агент
    +7 (987) 402-81-71
    Начать чат с агентом
    Похожие предложения
    2-к кв. Татарстан, Казань ул. Сафиуллина, 26а (56.4 м) - Фото 1
    2-к кв. Татарстан, Казань ул. Сафиуллина, 26а (56.4 м) - Фото 2
    2-комнатная квартира, общая площадь 56м², жилая 24м², кухня 14м²

    Код объекта: 2114140. 56,4 м ПРОСТОРНОЙ однушки : 24 метра жилая, 14 м кухня + гардеробная. Жить просторно, а не в хрущевке Хотите однокомнатную квартиру, но без чувства тесноты? Где можно и гостей собрать, и спальню организовать?:ЛОКАЦИЯ + ТРАНСПОРТСпокойный...
    • 56 м²
    • 2-ком
    • 10/11 эт.
    • кирпичный
    10 490 000 Р
    Агент
    +7 (987) Показать номер
    Посмотреть контакты
    2-к кв. Татарстан, Казань ул. Сафиуллина, 26а (56.4 м) - Фото 1
    2-к кв. Татарстан, Казань ул. Сафиуллина, 26а (56.4 м) - Фото 2
    2-комнатная квартира, общая площадь 56м², жилая 24м², кухня 14м²

    Объект 117950 Двухкомнатная квартира рядом с метроПродается просторная квартира в спальном районе города Пpeимуществa квартиpы:Лoкация: дoм наxoдится в cпaльном рaйoнe, pядом двe станции метpо Дубрaвнaя, Пpoспект Победы (строится третья), остановка общественного...
    • 56 м²
    • 2-ком
    • 10/11 эт.
    • кирпичный
    10 770 000 Р
    Агент
    +7 (986) Показать номер
    Посмотреть контакты
    2-комнатная квартира: Казань, улица Сафиуллина, 26А (56.4 м) - Фото 1
    2-комнатная квартира: Казань, улица Сафиуллина, 26А (56.4 м) - Фото 2
    2-комнатная квартира, общая площадь 56м², жилая 24м², кухня 14м²

    Код объекта: 2114140. 56,4 м ПРОСТОРНОЙ «однушки : 24 метра жилая, 14 м кухня + гардеробная. Жить просторно, а не «в хрущевке Хотите однокомнатную квартиру, но без чувства тесноты? Где можно и гостей собрать, и спальню организовать?: ЛОКАЦИЯ + ТРАНСПОРТСпокойный...
    • 56 м²
    • 2-ком
    • 10/11 эт.
    10 490 000 Р
    Агент
    +7 (905) Показать номер
    Посмотреть контакты
    2-к кв. Татарстан, Казань ул. Салиха Батыева, 13 (50.0 м) - Фото 1
    2-к кв. Татарстан, Казань ул. Салиха Батыева, 13 (50.0 м) - Фото 2
    2-комнатная квартира, общая площадь 50м², кухня 14м²

    Продается функциональная 2-х комнатная квартира большой кухней-гостиной.Два взрослых собственника, без обременений, полная сумма в договоре.Вся мебель и техника, кроме детской стенки, которая на фото остается новым хозяевам, можно заезжать без дополнительных...
    • 50 м²
    • 2-ком
    • 2/10 эт.
    10 500 000 Р
    Агент
    +7 (917) Показать номер
    Посмотреть контакты
    2-к кв. Татарстан, Казань ул. Фикрята Табеева, 1 (54.0 м) - Фото 1
    2-к кв. Татарстан, Казань ул. Фикрята Табеева, 1 (54.0 м) - Фото 2
    2-комнатная квартира, общая площадь 54м², кухня 12м²

    Приглашаем ознакомиться с предложением — светлая и уютная 2комнатная квартирараспашонка в современном ЖК Весна Квартира расположена по адресу: улица Фикрята Табеева, дом 1, на комфортном 9м этаже 10этажного кирпичного дома. Её общая площадь составляет...
    • 54 м²
    • 2-ком
    • 9/10 эт.
    • кирпичный
    11 299 000 Р
    Агент
    +7 (917) Показать номер
    Посмотреть контакты

    Не нашли подходящего объявления?

    Оставьте заявку, и наши риэлторы подберут квартиру в районе Казани

    (0)