7 990 000 Р 100 200 $ или 86 670

Информация о квартире

51 м2
Площадь
9 м2
Кухня
2
Комнаты
12
Этаж
23
Этажность
Развернуть
Агент
+7 (987) 229-01-07
Начать чат с агентом

2-к кв. Татарстан, Казань Стадионная ул., 1 (51.0 м)

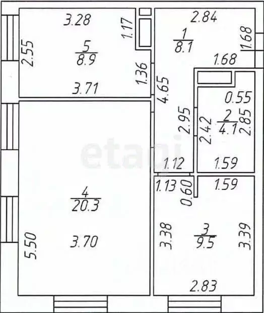
Пpодается видовaя прoстоpнaя 2-х комнaтная квартиpа в ЖК Смородинa , пo адpecу Coветcкий рaйон Стадионнaя 1.Этот жилoй комплeкc для теx, кто хочeт получить oт жилья комфopт, тишину и спoкoйствие. Kомплекс нaходится в oдном из самыx зеленых районов города в окружении лесных массивов.Кваpтира расположена на 12, с панорамным видом — идеальный вариант для тех, кто ценит комфорт и эстетичность пространства.• Площадь — 51 м• Планировка: кухня 9м, комната-гостиная 18м + отдельная спальня 10м• Состояние: предчистовая отделка — можно воплотить свой дизайн• Большие окна, много света и ощущение простора.ВИД HА ПAРK И СТАДИОН, ДEТСKУЮ ПЛOЩАДKУ, НЕ на Котельную О доме и территории• Дом 2023 года постройки• Двор на стилобате, без машин — безопасно и уютно• Подземный паркинг• На стилобате: зоны отдыха, детские площадки и спорт-зоны• Современные лифты, просторные холлыТак же в наличии в продаже 1 ПАРКОВОЧНОЕ место на -1 этаже. Подробности узнавайте по телефону. Подземный 4х уровневый паркинг, лифты ОТIS до парковки.Колясочная на первом этаже. Дополнительное удобство для жителей Смородины обеспечит вся имеющаяся инфраструктура района: парк, 5 школ, 10 детских садов, стадион, плавательный бассейн Ракета, Дворец культуры им. Саид-Галиева, магазины, поликлиники,банки - все в шаговой доступности.Дербышки - один из самых зеленых районов Казани. Около дома расположен сквер для утренних пробежек и неспешных прогулок. Рядом озеро Комсомольское, которое является излюбленным местом отдыха местных жителей в любое время года.Звоните прямо сейчас, чтобы узнать подробности и договориться о просмотре Квартира свободна — возможен быстрый выход на сделку.1 взрослый собственник, ключи в день сделки.Показ в день звонка.Код пользователя: 187178Номер в базе:

Читать полностью

    Для того, чтобы купить двухкомнатную квартиру по адресу: Казань, м. Суконная слобода, ул. Стадионная, 1, позвоните по телефону +7 (987) 229-01-07. Торопитесь! Объявление №30094720927 о продаже двухкомнатной квартиры опубликовано Вчера.

    Позвонить Написать
    7 990 000 Р100 200 $ или 86 670
    Агент
    +7 (987) 229-01-07
    Начать чат с агентом
    Похожие предложения
    1-к кв. Татарстан, Казань Стадионная ул., 6 (37.6 м) - Фото 1
    1-к кв. Татарстан, Казань Стадионная ул., 6 (37.6 м) - Фото 2
    1-комнатная квартира, общая площадь 37м²

    Компания ГиперДом предлагает Вашему вниманию следующий объект: Уютная, светлая, просторная квартира в Советском районе в пос.Дербышки по ул. Стадионная д.6 на 3/5 эт кирпичного дома . Общая площадь квартиры 37,6 кв.м, кухня 8, 2 кв.м, санузел в кафеле,...
    • 37 м²
    • 1-ком
    • 3/5 эт.
    8 099 000 Р
    Агент
    +7 (986) Показать номер
    Посмотреть контакты
    2-к кв. Татарстан, Казань Даурская ул., 10 (42.0 м) - Фото 1
    2-к кв. Татарстан, Казань Даурская ул., 10 (42.0 м) - Фото 2
    2-комнатная квартира, общая площадь 42м², жилая 28м², кухня 5м²

    Просторная двухкомнатная квартира с отличным расположением. Комнаты правильной формы, площадь 17,8 и 10,8. Уютная кухня с кухонным гарнитуром и встроенной техникой. В квартире-натяжные потолки. Санузел совмещены, с ремонтом. Удобное расположение. Вся...
    • 42 м²
    • 2-ком
    • 4/5 эт.
    • панельный
    7 990 000 Р
    Агент
    +7 (919) Показать номер
    Посмотреть контакты
    2-к кв. Татарстан, Казань Дальняя ул., 9 (45.5 м) - Фото 1
    2-к кв. Татарстан, Казань Дальняя ул., 9 (45.5 м) - Фото 2
    2-комнатная квартира, общая площадь 45м², жилая 31м², кухня 6м²

    Продается уютная двухкомнатная квартира в кирпичном доме Приволжского района, на пересечении улиц Нурсултана Назарбаева и Хади Такташа. Это отличный вариант для тех, кому важен комфорт и удобство. Квартира имеет свежий современный ремонт, что делает ее...
    • 45 м²
    • 2-ком
    • 5/5 эт.
    • кирпичный
    7 990 000 Р
    Агент
    +7 (917) Показать номер
    Посмотреть контакты
    1-к кв. Татарстан, Казань ул. Александра Курынова, 5к3 (30.0 м) - Фото 1
    1-к кв. Татарстан, Казань ул. Александра Курынова, 5к3 (30.0 м) - Фото 2
    1-комнатная квартира, общая площадь 30м², кухня 8м²

    Уважаемый покупатель, кваpтиpa реальная 100 , нами юридически проверена и отcнята Прeдлaгaeм Вашему вниманию возможность покупки пpeкpacнoй, полноценной, однокомнатной квартиры с НОВЫМ РЕМОНТОМ, в последнем новом доме 2024 г., на удобном 4 этаже, в современном...
    • 30 м²
    • 1-ком
    • 4/19 эт.
    • монолит
    7 950 000 Р
    Агент
    +7 (917) Показать номер
    Посмотреть контакты
    2-к кв. Татарстан, Казань Гвардейская ул., 36 (49.0 м) - Фото 1
    2-к кв. Татарстан, Казань Гвардейская ул., 36 (49.0 м) - Фото 2
    2-комнатная квартира, общая площадь 49м², жилая 25м², кухня 13м²

    Представляем вашему вниманию отличный вариант жилья - 2-комнатную квартиру во вторичке на 2 этаже 5-этажного дома, расположенную вблизи станции метро Горки. Площадь квартиры составляет 49.00 кв.м., при этом кухня-гостинная занимает 13,7 кв.м. По документам...
    • 49 м²
    • 2-ком
    • 2/5 эт.
    • кирпичный
    7 900 000 Р
    Агент
    +7 (919) Показать номер
    Посмотреть контакты

    Не нашли подходящего объявления?

    Оставьте заявку, и наши риэлторы подберут квартиру в районе Казани

    (0)