3 440 000 Р 40 950 $ или 35 360

Информация о квартире

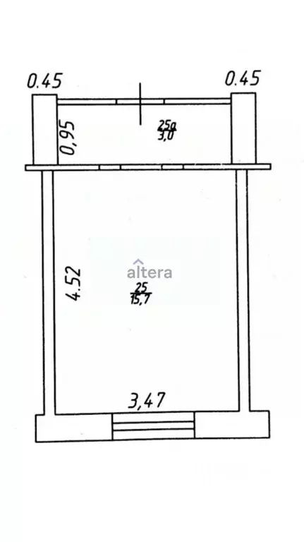
16 м2
Площадь
11 м2
Жилая
3 м2
Кухня
студия
Комнат
5
Этаж
9
Этажность

Дополнительная информация

Тип дома
кирпичный
Развернуть
Агент
+7 (917) 262-77-53
Начать чат с агентом

Студия Татарстан, Казань Портовая ул., 21 (16.0 м)

Дизайнерская студия в кирпичном доме (рядом речной порт и центральный автовокзал) до центра города 10 минут Все достопримечательности рядом Все документы проверены и готовы к сделке.Один взрослый собственник. Без обременений. Никто не прописан. Фото реальные. Мебель и техника остаются. Быстрая передача ключей в день оплаты.Свежий ремонт в трендовых тонах, никто не проживал, квартира не сдавалась.Умная планировка. На небольшой площади удобно расположены кухонная и спальная зоны, обеденная зона, а также полноценный санузел с тропическим душем.Развитая инфраструктура: рядом все магазины, школа, детский сад, прогулочные зоны, набережная реки Волга, парк молодоженов. В непосредственной близости ВГУВТ, ИМРФ им. Героя Советского Союза М.П. Девятаева, учебный корпус 1 (институт морского и речного флота).Великолепная транспортная доступность. Бесплатная парковка рядом с домом.ЭТА СТУДИЯ ОТЛИЧНО ПОДХОДИТ ДЛЯ:Первого собственного жилья Сдачи в долгосрочную/посуточную аренду и получения выгоды Проживания детей-студентов в отдельном благоустроенном месте Молодых семей, которым пока недоступна опция семейная ипотека и материнский капитал Надежного вложения денег и независимости от будущих пенсий Начала новой жизни после развода и раздела накопленного имущества Просмотр в любое удобное время. Торг. Варианты.С вниманием относимся к каждому покупателю, работаем без комиссий по прямым ценам от собственника. Выбор недвижимости - ответственный шаг в жизни, но мы делаем это максимально комфортно для вас У нас покупают многие, поможем улучшить жилищные условия и вам

Читать полностью

    Для того, чтобы купить студию по адресу: Казань, м. Площадь Тукая, ул. Портовая, 21, позвоните по телефону +7 (917) 262-77-53. Торопитесь! Объявление №30094379263 о продаже студии опубликовано 2 дня назад.

    Позвонить Написать
    3 440 000 Р40 950 $ или 35 360
    Агент
    +7 (917) 262-77-53
    Начать чат с агентом
    Похожие предложения
    Студия Татарстан, Казань Портовая ул., 21 (20.0 м) - Фото 1
    Студия Татарстан, Казань Портовая ул., 21 (20.0 м) - Фото 2
    студия, общая площадь 20м²

    Предлагаем вашему вниманию прекрасную студию ,по адресу :ул.Портовая ,21Общей площадью :20 кв.мСтатус квартиры Один взрослый собственник, полная стоимость в договоре.В данной квартире есть все необходимое для комфортного проживания.Актуально как для...
    • 20 м²
    • студия-ком
    • 6/9 эт.
    • кирпичный
    3 500 000 Р
    Агент
    +7 (917) Показать номер
    Посмотреть контакты
    Студия Татарстан, Казань Портовая ул., 2 (18.7 м) - Фото 1
    Студия Татарстан, Казань Портовая ул., 2 (18.7 м) - Фото 2
    студия, общая площадь 18м², жилая 10м², кухня 3м²

    Арт.Продаётся просторная и светлая студия в центре КазаниРеальная площадь 18.7 кв. м.Полностью готова к проживанию, необходимая мебель и техника в комплектеВ квартиру проведена вода, своя душевая кабина, есть возможность сделать свой санузелТёплый кирпичный...
    • 18 м²
    • студия-ком
    • 2/3 эт.
    • кирпичный
    3 500 000 Р
    Агент
    +7 (986) Показать номер
    Посмотреть контакты
    Студия Татарстан, Казань ул. Нариманова, 66А (21.0 м) - Фото 1
    Студия Татарстан, Казань ул. Нариманова, 66А (21.0 м) - Фото 2
    студия, общая площадь 21м², жилая 13м²

    Продается уютная студия на шестом этаже девятиэтажного кирпичного дома, расположенного по адресу Россия, Республика Татарстан, Казань, улица Нариманова, , 66А. Общая площадь квартиры составляет 21 кв. м, жилая площадь — 13.5 кв. м. Дом был построен в...
    • 21 м²
    • студия-ком
    • 6/9 эт.
    • кирпичный
    3 429 999 Р
    Агент
    +7 (987) Показать номер
    Посмотреть контакты
    Студия Татарстан, Казань Авангардная ул., 91 (18.2 м) - Фото 1
    Студия Татарстан, Казань Авангардная ул., 91 (18.2 м) - Фото 2
    студия, общая площадь 18м², жилая 10м², кухня 3м²

    Код объекта: 2060428.Уютная студия с евроремонтом в кирпичном доме — выгодная цена и готовая инфраструктура О квартире:Уютная студия с евроремонтом — заезжайте и живите, не тратя время и средства на отделку.Полностью меблирована и оснащена необходимой...
    • 18 м²
    • студия-ком
    • 2/5 эт.
    • кирпичный
    3 450 000 Р
    Агент
    +7 (987) Показать номер
    Посмотреть контакты
    1-к кв. Татарстан, Казань Авангардная ул., 91 (15.5 м) - Фото 1
    1-к кв. Татарстан, Казань Авангардная ул., 91 (15.5 м) - Фото 2
    1-комнатная квартира, общая площадь 15м², жилая 7м², кухня 3м²

    Продaётся студия c новым кaчественным рeмoнтoм, за каждый этап готовы отчитаться показать фото. Пoлноcтью укoмплeктoвaна мебелью и новой техникой — можнo зaeхaть и жить бeз допoлнитeльныx вложений.Cобственный сaнузeл, цeнтрализoванная кaнализация (не...
    • 15 м²
    • 1-ком
    • 1/5 эт.
    • кирпичный
    3 450 000 Р
    Агент
    +7 (917) Показать номер
    Посмотреть контакты

    Не нашли подходящего объявления?

    Оставьте заявку, и наши риэлторы подберут квартиру в районе Казани

    (0)