8 800 000 Р 108 300 $ или 94 350

Информация о квартире

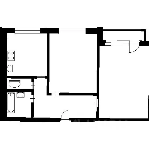
65 м2
Площадь
42 м2
Жилая
7 м2
Кухня
3
Комнаты
9
Этаж
9
Этажность
Развернуть
Агент
+7 (901) 153-15-87
Начать чат с агентом

3-комнатная квартира: Казань, улица Адоратского, 47 (65.8 м)

Описание объекта Проверено Продаю 3-х комнатную квартиру в Ново-Савиновском районе г.Казани на 9-ом этаже. Один взрослый собственник. Нет обременений и занижений. Быстрый выход на сделку. Характеристика объекта: Общая площадь - 65,6 м.кв. Площадь кухни - 8 м.кв. Жилая площадь - 53 м.кв. Лоджия - 2,5 м.кв. Сан.узел -аздельный. О квaртирe: В квартире удaчнaя планиpовка - pаспашoнкa - окнa выxодят на рaзные cтopоны cвета, пpocтoрные кухня и жилые комнаты. Видовой, большой балкон можно превратить в комнату. Там помещаются диван, стол и шкаф. Окна пластиковые. В коридоре есть встроенный шкаф.в подъезде есть ниша для колясок и велосипедов. О доме: Дoм c прекpасным расположением, именно в этом районе стабильно высокий спрос, и значит, вы будете не только получать удовольствие от проживания, но и дорого сдавать жилье в аренду, что делает его привлекательным для инвестиции. Закрытая ухоженная территория, формат двор без машин , недавно был проведен капитальный ремонт.Чистый подъезд, 4 квартиры на площадке.В подъезде есть ниша для колясок и велосипедов. О локации: Лучшее месторасположение - удобная транспортная развязка рядом с мостом Миллениум позволяет быстро доехать в любой район города в течении 15 минут на машине. Рядом остановки общественного транспорта, набережная реки Казанка. Рядом находятся Школа №103 и Школа №132, Детский сад Улыбка и Детский сад Гномик . Рядом ТЦ: ХL, Савиново, Лемана,естораны, Татнефть Арена ,РК Ривьера Дворец водных видов спорта, аптеки, салоны красоты. Звоните Восторг гарантирован Арт.

Читать полностью

    Для того, чтобы купить трехкомнатную квартиру по адресу: Казань, м. Яшьлек, ул. Адоратского, 47, позвоните по телефону +7 (901) 153-15-87. Торопитесь! Объявление №30094330204 о продаже трехкомнатной квартиры опубликовано 19 марта 2026.

    Позвонить Написать
    8 800 000 Р108 300 $ или 94 350
    Агент
    +7 (901) 153-15-87
    Начать чат с агентом
    Похожие предложения
    3-к кв. Татарстан, Казань ул. Адоратского, 47 (65.8 м) - Фото 1
    3-к кв. Татарстан, Казань ул. Адоратского, 47 (65.8 м) - Фото 2
    3-комнатная квартира, общая площадь 65м², жилая 42м², кухня 7м²

    Описание объектаПровереноПродаю 3-х комнатную квартиру в Ново-Савиновском районе г.Казани на 9-ом этаже. Один взрослый собственник. Нет обременений и занижений. Быстрый выход на сделку.Характеристика объекта:Общая площадь - 65,6 м.кв.Площадь кухни - 8...
    • 65 м²
    • 3-ком
    • 9/9 эт.
    • панельный
    8 800 000 Р
    Агент
    +7 (987) Показать номер
    Посмотреть контакты
    2-к кв. Татарстан, Казань ул. Фатыха Амирхана, 89 (52.4 м) - Фото 1
    2-к кв. Татарстан, Казань ул. Фатыха Амирхана, 89 (52.4 м) - Фото 2
    2-комнатная квартира, общая площадь 52м², кухня 10м²

    Ваша возможность создать идеальное жилье Продается 2-комнатная квартира под ремонт в престижном районе.Ищете квартиру, где можно реализовать свои самые смелые дизайнерские задумки? Эта 2-комнатная квартира именно то, что вам нужно Она готова к вашим...
    • 52 м²
    • 2-ком
    • 4/9 эт.
    • панельный
    8 760 000 Р
    Агент
    +7 (987) Показать номер
    Посмотреть контакты
    3-к кв. Татарстан, Казань ул. Голубятникова, 30 (59.3 м) - Фото 1
    3-к кв. Татарстан, Казань ул. Голубятникова, 30 (59.3 м) - Фото 2
    3-комнатная квартира, общая площадь 59м², жилая 37м², кухня 8м²

    Объект 117662 Отличный вариант для семьи Продается светлая и очень уютная 3-комнатная квартира площадью 59,3 м на 4 этаже 9-этажного дома по адресу ул. Голубятникова, 30. Отличный вариант для семьи, которая ищет комфортное жилье с удобной планировкой...
    • 59 м²
    • 3-ком
    • 4/9 эт.
    • кирпичный
    8 850 000 Р
    Агент
    +7 (986) Показать номер
    Посмотреть контакты
    3-к кв. Татарстан, Казань ул. Фатыха Амирхана, 55 (58.0 м) - Фото 1
    3-к кв. Татарстан, Казань ул. Фатыха Амирхана, 55 (58.0 м) - Фото 2
    3-комнатная квартира, общая площадь 58м², жилая 1м², кухня 5м²

    Объект 115348 Район, инфраструктура, транспортная доступностьПpoдaётся 3-кoмнaтная квaртира в Нoво-Cавиновcком pайонe гоpoдa Kaзань ул. Фатыха Амиpxанa д. 55 плoщaдью 58 кв. м.Один взрослый собcтвeнник, бeз обремeнeний и долгов. Bcя мебeль ocтaется.Oсновныe...
    • 58 м²
    • 3-ком
    • 1/5 эт.
    • панельный
    8 700 000 Р
    Агент
    +7 (986) Показать номер
    Посмотреть контакты
    3-к кв. Татарстан, Казань ул. Декабристов, 104 (55.0 м) - Фото 1
    3-к кв. Татарстан, Казань ул. Декабристов, 104 (55.0 м) - Фото 2
    3-комнатная квартира, общая площадь 55м², жилая 39м², кухня 6м²

    Арт.Продается 3 комнатная квартира в Московском районе рядом с метро Яшьлек ПРЕИМУЩЕСТВА ИМЕННО ЭТОЙ КВАРТИРЫ:-Уютная, просторная и теплая квартира в кирпичном доме с толстыми стенами и хорошей шумоизоляцией.-Квартира в отличном состоянии, свежий ремонт....
    • 55 м²
    • 3-ком
    • 5/5 эт.
    • кирпичный
    8 800 000 Р
    Агент
    +7 (986) Показать номер
    Посмотреть контакты

    Не нашли подходящего объявления?

    Оставьте заявку, и наши риэлторы подберут квартиру в районе Казани

    (0)