9 150 000 Р 115 700 $ или 100 100

Информация о квартире

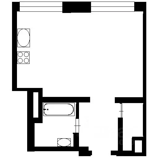
42 м2
Площадь
12 м2
Кухня
1
Комната
7
Этаж
10
Этажность

Дополнительная информация

Тип дома
кирпичный
Развернуть
Агент
+7 (917) 871-07-23
Начать чат с агентом

1-к кв. Татарстан, Казань ул. Космонавтов, 6А (42.7 м)

Продаётся просторная однокомнатная квартира в центре Советского района по ул. Космонавтов, д. 6а. О квартире:- квартира с функциональной планировкой: просторная кухня, большая комната , совмещенный санузел, балкон. -комфортный 7 этаж из 10. В доме грузовой лифт.Квартира прекрасно подходит для семейной пары с детьми, поскольку в шаговой доступности расположены школы, детские сады. О доме: -толстые стены, очень теплый дом 2011 года постройки -детская площадка, уютный двор -большая парковка во дворе дома-свое ТСЖ, очень качественное содержание территории и мест общего пользования. -низкие коммунальные платежи - собственная парковка во дворе Меторасположение: -очень удачное расположение дома,не у дороги,спрятан во дворе,тихо и спокойно,но при этом близко к остановке. - богатая инфраструктура позволяет разнообразить свой досуг. Рядом с домом кафе,рестораны, магазины, пекарни, аптеки, фитнес-клуб. Комплекс Арт Ситиасположен в 5 минутах от дома. -хорошая транспортная развязка. -остановка в трех минутах от дома. 10 минут на машине и вы в центре города. По документам:-более 5 лет в собственности- 1 взрослый собственник- без долгов и лбременений- квартира с положительной энергетикой- быстрый выход на сделку Звоните С удовольствием отвечу на все интересующие вопросы и согласуем просмотр Код пользователя: 64670Номер в базе:

Читать полностью

    Для того, чтобы купить однокомнатную квартиру по адресу: Казань, м. Суконная слобода, ул. Космонавтов, 6А, позвоните по телефону +7 (917) 871-07-23. Торопитесь! Объявление №30094090960 о продаже однокомнатной квартиры опубликовано Сегодня.

    Позвонить Написать
    9 150 000 Р115 700 $ или 100 100
    Агент
    +7 (917) 871-07-23
    Начать чат с агентом
    Похожие предложения
    1-к кв. Татарстан, Казань ул. Зур Урам, 1Кк3 (38.0 м) - Фото 1
    1-к кв. Татарстан, Казань ул. Зур Урам, 1Кк3 (38.0 м) - Фото 2
    1-комнатная квартира, общая площадь 38м², жилая 18м², кухня 9м²

    Продаётся видовая однокомнатная квартира с панорамными окнами и видом на лес, в экологически чистом районе центра города Казани ,по адресу :ул.Зур Урам 1к к3ПЛАНИРОВКА:- общая площадь — 38 м- комната — 18, 5м - Кухня 9.0м- санузел совмещенный - 3,4 м-...
    • 38 м²
    • 1-ком
    • 7/9 эт.
    • кирпичный
    9 200 000 Р
    Агент
    +7 (917) Показать номер
    Посмотреть контакты
    1-к кв. Татарстан, Казань ул. Зур Урам, 1Г (34.4 м) - Фото 1
    1-к кв. Татарстан, Казань ул. Зур Урам, 1Г (34.4 м) - Фото 2
    1-комнатная квартира, общая площадь 34м², кухня 8м²

    Представляем вашему вниманию 1к квартиру площадью 34,4 м на 1 этаже кирпичного дома по улице Зур Урам. Это идеальное место для тех, кто ценит комфорт, удобство и близость к центру города всего 10 минут пешком, и вы уже в самом центре событий Квартира,...
    • 34 м²
    • 1-ком
    • 1/10 эт.
    • кирпичный
    9 150 000 Р
    Агент
    +7 (987) Показать номер
    Посмотреть контакты
    1-к кв. Татарстан, Казань ул. 2-я Азинская, 1В (43.5 м) - Фото 1
    1-к кв. Татарстан, Казань ул. 2-я Азинская, 1В (43.5 м) - Фото 2
    1-комнатная квартира, общая площадь 43м², жилая 19м², кухня 12м²

    Код объекта: 2002171.Продается 1к квартира расположенная на 7 этаже по адресу 2-Азинская, д. 1ВО квартире:Функциональная планировка (общая площадь 43 м2) - кухня-гостиная, просторная жилая комната, есть помещение для второго санузла, либо под гардеробную,...
    • 43 м²
    • 1-ком
    • 7/10 эт.
    • кирпичный
    9 200 000 Р
    Агент
    +7 (987) Показать номер
    Посмотреть контакты
    1-к кв. Татарстан, Казань ул. Зур Урам, 1Г (34.4 м) - Фото 1
    1-к кв. Татарстан, Казань ул. Зур Урам, 1Г (34.4 м) - Фото 2
    1-комнатная квартира, общая площадь 34м², жилая 15м², кухня 9м²

    Объект 117437 квартира с индивидуальным отоплениемпродается квартира в новом кирпичном доме с котлом индивидуального отопления что редкость в нашем городе.Высокий первый этаж в окна заглянуть не возможно,просторная лоджия тихий двор.Дом полностью огорожен...
    • 34 м²
    • 1-ком
    • 1/10 эт.
    • кирпичный
    9 150 000 Р
    Агент
    +7 (986) Показать номер
    Посмотреть контакты
    1-к кв. Татарстан, Казань просп. Альберта Камалеева, 34 (39.5 м) - Фото 1
    1-к кв. Татарстан, Казань просп. Альберта Камалеева, 34 (39.5 м) - Фото 2
    1-комнатная квартира, общая площадь 39м², кухня 10м²

    Продается стильная однокоматная квартира в современном ЖК 21 ВЕК (2017 г.) Центр Советского района Казани, проспект Альберта Камалеева, 34 Почему это идеальное место для жизни?Экология: Дом расположен на самой высокой точке города, вдали от промышленных...
    • 39 м²
    • 1-ком
    • 8/18 эт.
    9 200 000 Р
    Агент
    +7 (987) Показать номер
    Посмотреть контакты

    Не нашли подходящего объявления?

    Оставьте заявку, и наши риэлторы подберут квартиру в районе Казани

    (0)